静岡県中部エリア
他のエリア
工務店・新築・一戸建て・注文住宅・リノベ会社を検索できるくふうイエタテ
1LDK / 平屋
施工事例あり
19坪・平屋 | 省エネ×収納×心地よさ、GX志向型の木の家
19坪のコンパクトな平屋に、暮らしやすさと心地よさをぎゅっと凝縮。18帖のLDKを中心に、収納力のあるWICや納戸、PCコーナーなど、日々の快適な動線を支える工夫が詰まっています。階段のないワンフロア設計で、家族の気配を感じながら穏やかに過ごせる住まいです。 太陽と風を活かすパッシブデザインも取り入れ、環境にも人にもやさしいGX志向型の「木の家」です。
1LDK・平屋
延床面積:63.76m² [19.28坪]
アクトホーム
静岡県島田市島76-1アクトホーム株式会社 / 木の住まいづくり研究所
050-5851-0474
3LDK / 2階建
施工事例あり
ペットと一緒にくつろげる低酸素住宅
ご夫婦の夢をそのままカタチにした「ペットとの暮らしを考えた一棟」。お施主様の希望に応えつつ、家族が心地よく暮らすための空間を大切に設計しました。 ペットと一緒に暮らすことを考慮し、ドックルームを設けました。寝室にはミニキッチンを設け、ここでのんびりとした時間を過ごせます。 お施主様の好きが詰まったお家が完成しました♪
3LDK・2階建
延床面積:115.93m² [35.06坪]
シバタ建設
静岡県静岡市清水区七ツ新屋420-2
050-5851-0601
3LDK / 平屋
施工事例あり
ペットと一緒に開放的な平屋住まい
広々とした敷地に建つこちらの平屋は、ペットと快適に共に暮らせる環境です。ご夫婦それぞれ趣味部屋を確保し、気兼ねなく好きなことに集中できるように設計しました。さらにリビングから庭やバルコニーとのつながりを重視し、自然光を取り入れた明るい空間を実現しています。お施主様のお家のイメージの赤毛のアンのお家のように、活気と温かみに満ちた暮らしを叶えるこの平屋の住まいは、お施主様のライフスタイルにぴったりの一軒です。
3LDK・平屋
延床面積:78.67m² [23.79坪]
シバタ建設
静岡県静岡市清水区七ツ新屋420-2
050-5851-0601
4LDK / 2階建
施工事例あり
広々とくつろげるシンプルモダンな4LDK
この提案された4LDKの間取りは、施主の要望をしっかりと反映しています。ゆったりとくつろげるリビングは、家族のコミュニケーションやリラックスを重視しました。また、ダイニングキッチンや洗面室、トイレなどが効率的に配置されており、家事をスムーズに行うことができます。さらに、シンプルモダンなデザインとエコカラットの取り入れにより、環境に配慮したお家となっています。施主のニーズに応え、快適で家計にも優しい生活を実現する間取りとなっています。お施主様の思いが詰まった魅力的なお家です。
4LDK・2階建
延床面積:114.19m² [34.54坪]
シバタ建設
静岡県静岡市清水区七ツ新屋420-2
050-5851-0601
3LDK / 平屋
施工事例あり
プライバシーを確保しつつ中庭や家事ラク動線を叶えた25坪の平屋
「プライバシーを確保できる中庭や家事ラク動線が欲しい」というお施主様のご要望で実現した開放的な平屋づくりです。延床25坪の平屋は、中の様子が想像できないほどコンパクトながら、一歩入れば光に満ちたスペースが広がっています。また、空間を有効活用するために工夫したダイニングを兼ねる大きな造作カウンターも見どころ。さらに、玄関からトイレ、クローゼット、水回り、LDKへ回遊できる動線も便利です。
3LDK・平屋
延床面積:84.05m² [25.42坪]
SEIEN ARCHITECT
静岡県浜松市中央区富屋町153番地
050-5871-8795
3LDK / 2階建
施工事例あり
デザイン性×高性能内外を“斜め”でつなぐ建築家と建てた家
ご主人がどこかに取り入れたいと希望された“斜め”を、LDKとウッドデッキの関係に用いることで、外部を室内に大きく取り組むことに成功しています。帰宅動線と家事動線に周遊性と収納力を掛け合わせ、暮らしやすさを高めていることもポイントです。
3LDK・2階建
延床面積:97.77m² [29.57坪]
クラフトハウス
静岡県静岡市葵区瀬名中央3丁目5-45 コイズミビル1階
050-5851-0452
3LDK / 2階建
モデルハウス
光と影を操った美術館のような洗練されたお家
南側が道路に面した立地ながら、視線への配慮から開口部の確保が難しい条件。しかし、巧みなプランニングにより採光をしっかり確保。外からの視線を遮りつつ、室内にはやわらかな光が届く“光と影の完全攻略”を実現した、プライバシーと快適な明るさを兼ね備えた上質な住まいです
3LDK・2階建
延床面積:99.36m² [30.05坪]
クラフトハウス
静岡県静岡市葵区瀬名中央3丁目5-45 コイズミビル1階
050-5851-0452
3LDK / 2階建
モデルハウス
デザインも、性能も、暮らしやすさも叶えた上質な家
デザイン、性能、暮らし心地のすべてを追求したモデルハウスが完成しました。高価なものを使うのではなく、いつも親しんでいる素材をチープにならずに、高見えするよう工夫しました。ありきたりな家ではなく、非日常を感じられるホテルライクな雰囲気を感じていただけます。
3LDK・2階建
延床面積:105.99m² [32.06坪]
オレンジハウス
静岡県静岡市葵区沓谷5-9-14
0120-965-924
3LDK / 2階建
施工事例あり
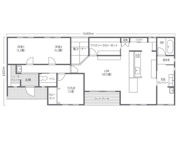
共働き夫婦が叶えた、リビング階段のある間取り
1階には家事ラクに繋がるランドリールーム、2階の南面には洗濯物をたっぷり干せるサンルームやファミリークローゼットを配置し、ご家族の生活の仕方に合せながら動線計画することで、暮らしやすさを確保しながら余分なスペースを省略し、趣味室や小上がりの和室など、追加で希望するスペースをしっかりと確保。 優先順位をしっかりと決めることでデザインにもこだわることが出来た素敵な住まいとなりました。
3LDK・2階建 (個室3,LDK,和室,洗面脱衣室,ファミクロ,シューズクローク)
延床面積:133.52m² [40.38坪]
KUREKEN HAUS(榑林建設)
静岡県牧之原市菅ヶ谷1533
050-5851-0697
3LDK / 2階建
施工事例あり
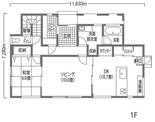
老後も安心な1階主寝室、3LDKの間取り
あえて部屋の仕切りを少なくすることで、家族の様子が感じ取れ、つながりを大切に出来ます。 リビングの吹抜けからは明るい光がたっぷりと入り込み、2階まで明るく開放的。 2階は子供室のみなので、家事は全て1階で完結する、平屋のような暮らしが実現しました。
3LDK・2階建 (個室3,LDK,洗面脱衣室,ファミクロ,シューズクローク)
延床面積:121.72m² [36.82坪]
KUREKEN HAUS(榑林建設)
静岡県牧之原市菅ヶ谷1533
050-5851-0697
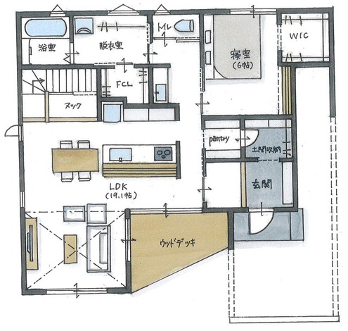
3LDK / 平屋
施工事例あり
ママ目線で使いやすい31坪の平屋
敷地の前に桜並木があり、そちらも楽しめるような間取り構成になっています。敷地の大きさに合わせてコンパクトに出来るところはまとめながら、家事効率アップにつなげられるよう計画しています。
3LDK・平屋 (ファミクロやシューズクロークで収納も充実。)
延床面積:102.47m² [30.99坪]
KUREKEN HAUS(榑林建設)
静岡県牧之原市菅ヶ谷1533
050-5851-0697
3LDK / 2階建
施工事例あり
回遊動線と計画的な収納。暮らしやすさが最優先!
「暮らしやすさを大切にしたホテルライクな住まい」と、当初から明確な希望をお持ちだったKさま。必要に応じて現場監督やコーディネーターとも相談しながら、打合せを重ねて納得感の高いプランへと練り上げていきました。
3LDK・2階建
延床面積:110.81m² [33.52坪]
イシカワ
静岡県静岡市駿河区桃園町SBSマイホームセンター静岡展示場内
050-5268-8478
3LDK / 2階建
施工事例あり
子どもと愛猫が楽しめる「面白い家」
新居での暮らしを明確にイメージしていたOさま。エリアを限定せず広く土地探しをされたことで、夢を叶える土地に出会えました。入居1か月後に訪問した際、お子さんが早速新しい友人を招いて遊んでいる姿を見て、私もうれしくなりました。
3LDK・2階建
延床面積:129.3m² [39.11坪]
イシカワ
静岡県静岡市駿河区桃園町SBSマイホームセンター静岡展示場内
050-5268-8478
4LDK / 2階建
施工事例あり
2つの回遊動線で効率的で使いやすい間取りのお家
廊下などのデッドスペースを極力少なくし、効率的で使いやすい間取りを実現したO邸。土地探しからお手伝いさせていただきましたが、入居後にご夫妻から「夏も冬も快適で、子どもものびのび過ごしています」と伺って安心しました。
4LDK・2階建
延床面積:108.89m² [32.93坪]
イシカワ
静岡県静岡市駿河区桃園町SBSマイホームセンター静岡展示場内
050-5268-8478
4LDK / 2階建
施工事例あり
完全自由設計で手に入れたのは、理想以上の暮らし
人の往来がある立地なので、窓も含めた外観デザインを吟味しました。最初のきっかけは気密や断熱が気になり、寒い新潟で実績のある当社に興味を持たれたとのことでしたが、新居では快適に過ごされていて、光熱費も軽減されたそうです。
4LDK・2階建
延床面積:137.87m² [41.7坪]
イシカワ
静岡県静岡市駿河区桃園町SBSマイホームセンター静岡展示場内
050-5268-8478
3LDK / 2階建
モデルハウス
土間リビングがある31坪のスキップフロアの家
暮らす人がどんな空間で、何をしてくつろぎたいのか。それを丁寧にヒアリングしながら形にするために、多彩な住宅ラインナップと豊富なアイデアをストックしています。「家にいる時間が一番好き」そう感じていただけるような、遊び心あふれるモデルハウスを用意。家に求めるもの、こだわり、好きな時間など、思いつくままにお聞かせください!
3LDK・2階建
延床面積:104.33m² [31.55坪]
オレンジハウス
静岡県静岡市葵区沓谷5-9-14
0120-965-924
2LDK / 平屋
モデルハウス
22坪の大容量の収納のあるコンパクトな平屋
家族と心地よく暮らせる平屋「FIKA(フィーカ)」。無駄のない間取りと天井の高いLDKが広さを演出し、アンティークな内装もカフェのように居心地がよく、集約した水回りと大容量の収納のおかげで暮らしやすさは十分です。
2LDK・平屋
延床面積:74.52m² [22.54坪]
オレンジハウス
静岡県静岡市葵区沓谷5-9-14
0120-965-924
5LDK / 2階建
施工事例あり
充実した収納ですっきりと ホテルライクな住まい
ご紹介した土地を「めぐりあえた」と表現されたことが印象に残っています。プランニング段階から着工後の現場打合せまで、しっかりとコミュニケーションをとりながら進めることができ、やさしい光が包み込む素敵な新居になりました。
5LDK・2階建
延床面積:119.1m² [36.02坪]
イシカワ
静岡県静岡市駿河区桃園町SBSマイホームセンター静岡展示場内
050-5268-8478
3LDK / 2階建
施工事例あり
敷地の間口7m!回遊式キッチンとロフトのある町家型の住まい
間口7mの敷地に建つ、32坪・2階建ての住宅です。 玄関横の和室は、来客時にも便利。休日に子どもの友だちが遊びに来ても、他の家族は気にせずリビングでくつろげます。 キッチンから洗濯場まで一直線の家事ラク動線もポイントです!
3LDK・2階建
延床面積:105.99m² [32.06坪]
アクトホーム
静岡県島田市島76-1アクトホーム株式会社 / 木の住まいづくり研究所
050-5851-0474
5LDK / 2階建
モデルハウス
開放感とつながりが心地いい家族を育む土間のある家
吹抜けを通して2階まで一体になった間取りは開放感抜群。土間から直接リビングや和室につながる贅沢を味わって。
5LDK・2階建
延床面積:141.18m² [42.7坪]
福工房
静岡県静岡市駿河区下川原6丁目26-8
050-5268-8510
3LDK / 2階建
施工事例あり
犬・猫と暮らす、明るい吹抜けリビングのある住まい
ご夫婦+お子さまと、犬・猫が暮らす家です。南側には2つの吹き抜けがあり、リビングに光が射し込みます。
3LDK・2階建
延床面積:107.65m² [32.56坪]
アクトホーム
静岡県島田市島76-1アクトホーム株式会社 / 木の住まいづくり研究所
050-5851-0474
3LDK / 2階建
モデルハウス
ワンフロアで暮らしが完結する平屋感覚の家
雨でも車の乗りおりしやすいガレージスペースのある家は、忙しい共働き夫婦を応援する工夫がいっぱい。シューズクロークから直結するパントリー、キッチン隣のランドリールームとクローゼットなど、使いやすいつくりや配置で、毎日の家事の時短を叶える設計になっています。
3LDK・2階建
延床面積:120.69m² [36.5坪]
アイフルホーム焼津店 (三住建設)
静岡県焼津市八楠3-10-13
050-5851-0563
2LDK / 2階建
施工事例あり
trunk house
時間の移ろいを楽しめる明るい吹き抜け玄関のある家。LDKの一角にはヌックを取り入れるなど、随所にこだわりを散りばめたご家族自慢の住まいが完成しました。
2LDK・2階建
延床面積:107.23m² [32.43坪]
住家 JYUKA
静岡県静岡市駿河区大谷2丁目25-24 住家スタジオ「THE PORT」
050-5871-8788
3LDK / 2階建
施工事例あり
静の家
ホテルライクな洗練空間に、おこもり感のあるダウンリビングやウォークスルースタイルのクローゼットを組み込み、つながりや利便性を添えました。家族が安心して住み続けられる性能こだわったデザイン住宅です。
3LDK・2階建
延床面積:132.9m² [40.2坪]
住家 JYUKA
静岡県静岡市駿河区大谷2丁目25-24 住家スタジオ「THE PORT」
050-5871-8788
2LDK / 平屋
施工事例あり
つながる家~絆~
空間がフラットにつながり、家族の時間を育む平屋です。開放的な吹き抜けリビングや外とつながりを感じるテラススーペースなど、家族だんらんの時間がより特別に、日々の暮らしを心地良く過ごせる快適な設計です。
2LDK・平屋
延床面積:146.77m² [44.39坪]
住家 JYUKA
静岡県静岡市駿河区大谷2丁目25-24 住家スタジオ「THE PORT」
050-5871-8788
4LDK / 2階建
施工事例あり
一生暮らす家だから、飽きないようシンプルに
土地探しからお付き合いいただき、お二人が重視していた日当たりのいい、静かで便利な場所をご紹介できました。技術に詳しいご主人と生活動線を大事にする奥さまとで、お互いを尊重しながらの家づくりになりました。
4LDK・2階建
延床面積:115.09m² [34.81坪]
イデキョウホーム
静岡県富士市伝法1335番地
050-5851-0378
4LDK / 2階建
モデルハウス
全館空調と屋上庭園で豊かな暮らしを省エネ住宅のフルスペックモデル
沼津市西添町(富士市内から車で5分)にオープンした『イデキョウホーム』のモデルハウスは、ZEHと耐震等級3の長期優良住宅が標準の「フォーレ」シリーズに、全館空調と屋上庭園、クールなデザインをプラスしたフラッグシップモデル。
4LDK・2階建
延床面積:128.34m² [38.82坪]
イデキョウホーム
静岡県富士市伝法1335番地
050-5851-0378
4LDK / 2階建
施工事例あり
家族の要望を詰め込んだアジアンテイストのLDK
2017年にご主人のお姉さまの家を新築した際、イメージ通りの完成度に大変満足してくださって、今回のお声がけをいただきました。車好きのご主人とアジアンテイスト好みの奥さまのご要望が融合した家です。
4LDK・2階建 (小屋裏収納)
延床面積:119.24m² [36.07坪]
さくらホーム
静岡県静岡市葵区巴町72-11
050-5851-0371
4LDK / 2階建
モデルハウス
完全自由設計&高性能な家
私たちは、性能・デザイン・価格すべての要望を叶えた“本当に価値のある住まい”を日々追求し、常にお客さま目線での家づくりをご提案しています。お気軽に「静岡展示場」にお越しください。
4LDK・2階建
延床面積:203.65m² [61.6坪]
イシカワ
静岡県静岡市駿河区桃園町SBSマイホームセンター静岡展示場内
050-5268-8478
3LDK / 平屋
施工事例あり
寛ぎの平屋
シンプルな動線と住み心地を存分に感じる住まいは、プライバシーを守りつつも遊び心をプラスしたこだわりのデザインです。陽の光が心地よく、家族の時間が増える間取りは平屋だからこそ。
3LDK・平屋
延床面積:86.12m² [26.05坪]
住家 JYUKA
静岡県静岡市駿河区大谷2丁目25-24 住家スタジオ「THE PORT」
050-5871-8788