静岡県中部エリア
他のエリア
工務店・新築・一戸建て・注文住宅・リノベ会社を検索できるくふうイエタテ
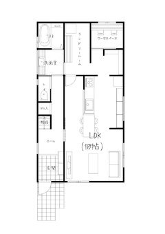
1階
66.66m² (20.16坪)
2階
49.27m² (14.9坪)
ペットと過ごすLDK
LDKの床材は、ワンちゃんや猫ちゃんの足腰に負担がかからないフローリング材を使用。
汚れにくく、傷つきにくいので、気にせず快適な暮らしができます。
リビングにドックルームを併設
壁にホーロー材を使用し匂いが染みつくのを防ぎ、耐久性にも優れています。
玄関収納
広い土間で収納力を確保しました。
寝室にミニキッチンを設置
ちょっとしたくつろぎ空間に♪
オリジナルの造作洗面台
デザインも機能も優れた造作洗面台
施主からの希望・要望
ご夫婦の夢をそのままカタチにした「ペットとの暮らしを考えた一棟」。お施主様の希望に応えつつ、家族が心地よく暮らすための空間を大切に設計しました。 ペットと一緒に暮らすことを考慮し、ドックルームを設けました。寝室にはミニキッチンを設け、ここでのんびりとした時間を過ごせます。 お施主様の好きが詰まったお家が完成しました♪
| 階数 2階建 | 延床面積 115.93m² [35.06坪] | 敷地面積 153.78m² [46.51坪] |
| 間取り 3LDK |
1階
66.66m² [20.16坪]
2階
49.27m² [14.9坪]
|
施工面積 --- |
| 家族構成 --- | 設計者名 (有)シバタ建設 |
この間取りはこちらの施工例でご覧いただけます
モスグリーン色のガルバニウム鋼板がシンプルモダンな印象を与えるこの家は、細部にまで拘ったデザインが特徴。リビングには個性的な木材を使用しており、ペットと共に過ごす時間も快適である。ダイニングスペースは温かみのある木材が用いられ、中央のテーブルが家族の団らんを支える。キッチンは背後に配置され、実用的である。自然光が差し込む和室や、造作洗面台のある洗面スペースも見どころで、全体的に統一感のある空間になっている。耐震等級3を取得し、安全性も確保した完全自由設計の住まいである。
施工例を詳しくみる4LDK / 2階建
家事ラク動線と収納充実の、快適2階リビングのお家
”家族で集う場所”と”自分の時間を過ごす場所”をバランスよく分けた間取り。2階LDKは解放感たっぷりで、ヌックコーナーは読書やお子さまの宿題などにもぴったり。1階は3つの洋室と大容量のWICで収納力も◎。家事動線もしっかり整え、忙しい日もゆったり暮らせる住まいに。
4LDK・2階建
延床面積:119.24m² [36.07坪]
3LDK / 2階建
キッチン中心動線で毎日がスムーズな暮らし
キッチンを中心に回遊できる家事ラク動線で、調理・洗濯・衛星動線がスムーズ。18帖のLDKは家族が集う大空間で、ワークスペースも確保。2階は3部屋+大容量WIC、さらに4帖の物入も設置。衣替え用品や季節家電など大きな荷物もまとめて収納でき、家中がスッキリ片付く。 ホール中心のレイアウトで、家族の気配を自然に感じられる、ちょうどいい距離感の住まいです。
3LDK・2階建
延床面積:129.18m² [39.07坪]
4LDK / 2階建
施工事例あり
広々とくつろげるシンプルモダンな4LDK
この提案された4LDKの間取りは、施主の要望をしっかりと反映しています。ゆったりとくつろげるリビングは、家族のコミュニケーションやリラックスを重視しました。また、ダイニングキッチンや洗面室、トイレなどが効率的に配置されており、家事をスムーズに行うことができます。さらに、シンプルモダンなデザインとエコカラットの取り入れにより、環境に配慮したお家となっています。施主のニーズに応え、快適で家計にも優しい生活を実現する間取りとなっています。お施主様の思いが詰まった魅力的なお家です。
4LDK・2階建
延床面積:114.19m² [34.54坪]
3LDK / 2階建
ただいま!がすぐ聞こえるお家
お家全体が光に包まれる明るい空間で、リビングやダイニング、寝室まで家族それぞれの居場所をしっかり確保。広々としたホールや収納もあって、将来部屋を分けることも可能。家全体を通して、家族みんなが自然に集まれる、温かみのあるお家です。
3LDK・2階建