静岡県中部エリア

工務店・新築・一戸建て・注文住宅・リノベ会社を検索できるくふうイエタテ

注文住宅、リフォーム住宅会社を探す

住宅会社 住宅イベント モデルハウス リフォーム・リノベーション 土地・建売 住まいのプロ 動画 家づくりガイド くふうイエタテカウンター
静岡中部 ランキング TOP10
施工対応エリア
静岡、焼津、藤枝、島田
電話番号
050-5268-8478
ジャンル
新築 、 土地相談
資料請求無料 検討会社に追加する
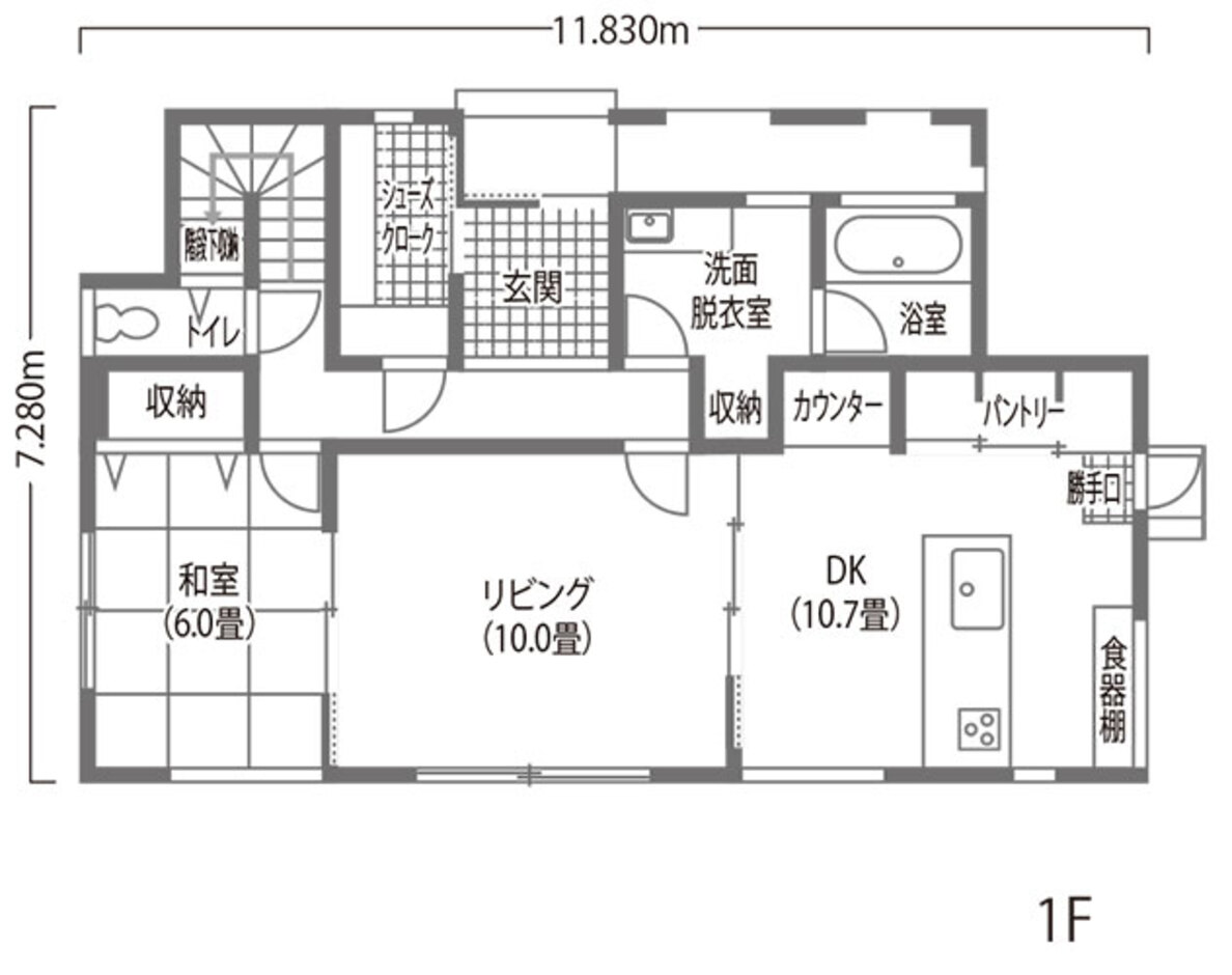
4LDK | 2階建

完全自由設計で手に入れたのは、理想以上の暮らし

1階

74.11m² (22.41坪)

2階

63.76m² (19.28坪)

イシカワ 完全自由設計で手に入れたのは、理想以上の暮らし 1階 チェックポイント1 チェックポイント2 チェックポイント3 玄関 勝手口1
  • Check.1

    最大で27畳の大空間

    ダイニングキッチン・リビング・和室は、2枚片引き戸と3枚片引き戸で状況に応じて自由に開閉。最大で27畳の大空間として利用できる


  • Check.2

    テレビコーナー

    ダイニングキッチンでもテレビが見られるようにと、上下の収納も含めて機能的に造作した


  • Check.3

    エコカラット

    玄関を入るとグレーの濃淡でデザインされたエコカラットが目の前に。調湿機能もうれしい

イシカワ 完全自由設計で手に入れたのは、理想以上の暮らし 2階 チェックポイント1 チェックポイント2 チェックポイント3
  • Check.1

    納戸

    大きな納戸を設け、大容量の収納も可能


  • Check.2

    バルコニー

    BBQが楽しめるくらいのゆったり広々としたバルコニー


  • Check.3

    3つの個室には収納も配置

    2階には寝室と子ども部屋で3つの個室がある。生活音が気にならないように、各部屋の間に収納を配置した

間取り提案

施主からの希望・要望

  • ゆったりとくつろげるリビング
  • 子供が集中して勉強できる
  • 収納スペースが豊富で整理整頓しやすい

スタッフからのコメント

人の往来がある立地なので、窓も含めた外観デザインを吟味しました。最初のきっかけは気密や断熱が気になり、寒い新潟で実績のある当社に興味を持たれたとのことでしたが、新居では快適に過ごされていて、光熱費も軽減されたそうです。

DATA

階数 2階建 延床面積 137.87m² [41.7坪] 敷地面積 225.54m² [68.22坪]
間取り 4LDK
1階 74.11m² [22.41坪]
2階 63.76m² [19.28坪]
施工面積 ---
家族構成 --- 設計者名 イシカワ
#和室 #シューズクローク #バルコニー #ウォークインクローゼット #子ども部屋 #パントリー #納戸

イシカワに「間取り」や「家づくりの相談」ができます。 この会社に来店予約をする

この間取りはこちらの施工例でご覧いただけます

完全自由設計で手に入れたのは、理想以上の暮らし

40代のKさんが建てた家の間取りには、リアルな生活スタイルが反映されている。まず、LDKにはダイニングキッチンとリビングを仕切れる3枚片引き戸。急な来客時にはリビングだけで対応でき、空調も効きやすい。また、Kさん家族はテレビを見ながら食事をするため、ダイニングにも収納を兼ねたTV台を設置した。和室は休日が不定期なご主人のくつろぎスペースとして。さらに、1階でも洗濯物が干せるようにと、キッチン裏からつながるサンルームをつくる予定だ。2階には大きな納戸と、BBQが楽しめそうなゆったりバルコニーもある。「完全自由設計にこだわりました」というKさん。たくさんあった理想に耳を傾け、しっかりと向き合ってくれた『イシカワ』と「理想以上」の新居を実現した。「住み始めて1か月経ちますが、不満や後悔は一つもありません」と、笑顔で話してくれた。

施工例を詳しくみる
  • 本体価格 2000万〜2499万
    ※金額は購入当時のものです
  • 竣工 2022年7月
  • 施工期間 5か月
  • 住宅性能 耐久性(耐風等級2取得)、耐震性(耐震等級3取得)、省エネルギー性(太陽光発電)、通風・換気性(換気システム 第一種換気)、劣化対策(劣化対策等級3相当)、遮音性(ドア・サッシ)、バリアフリー

似ている間取りはこちら