静岡県中部エリア
他のエリア
工務店・新築・一戸建て・注文住宅・リノベ会社を検索できるくふうイエタテ
4LDK / 2階建
施工事例あり
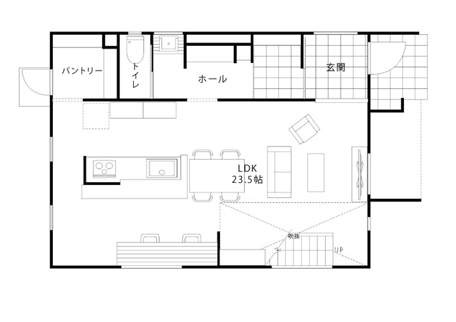
広々とくつろげるシンプルモダンな4LDK
この提案された4LDKの間取りは、施主の要望をしっかりと反映しています。ゆったりとくつろげるリビングは、家族のコミュニケーションやリラックスを重視しました。また、ダイニングキッチンや洗面室、トイレなどが効率的に配置されており、家事をスムーズに行うことができます。さらに、シンプルモダンなデザインとエコカラットの取り入れにより、環境に配慮したお家となっています。施主のニーズに応え、快適で家計にも優しい生活を実現する間取りとなっています。お施主様の思いが詰まった魅力的なお家です。
4LDK・2階建
延床面積:114.19m² [34.54坪]
3LDK / 2階建
ただいま!がすぐ聞こえるお家
お家全体が光に包まれる明るい空間で、リビングやダイニング、寝室まで家族それぞれの居場所をしっかり確保。広々としたホールや収納もあって、将来部屋を分けることも可能。家全体を通して、家族みんなが自然に集まれる、温かみのあるお家です。
3LDK・2階建
3LDK / 平屋
施工事例あり
ペットと一緒に開放的な平屋住まい
広々とした敷地に建つこちらの平屋は、ペットと快適に共に暮らせる環境です。ご夫婦それぞれ趣味部屋を確保し、気兼ねなく好きなことに集中できるように設計しました。さらにリビングから庭やバルコニーとのつながりを重視し、自然光を取り入れた明るい空間を実現しています。お施主様のお家のイメージの赤毛のアンのお家のように、活気と温かみに満ちた暮らしを叶えるこの平屋の住まいは、お施主様のライフスタイルにぴったりの一軒です。
3LDK・平屋
延床面積:78.67m² [23.79坪]
3LDK / 2階建
心地よさと機能が調和する住まい
この提案では、施主のライフスタイルを深く考慮し、心地よさと実用性が共存する間取りを実現しました。リビングはゆったりとくつろぐ憩いの場となり、リラックスするのに最適です。これに加えて、多目的に設計された収納スペースが各階に配置され、整理整頓の手助けをします。趣味や仕事の道具などを効率よく収め、生活の利便性を高めます。この3LDKのプランは、ライフスタイルに柔軟に対応できる設計で、日々の暮らしを豊かに彩ります。
3LDK・2階建
延床面積:103.52m² [31.31坪]
3LDK / 2階建
施工事例あり
ペットと一緒にくつろげる低酸素住宅
ご夫婦の夢をそのままカタチにした「ペットとの暮らしを考えた一棟」。お施主様の希望に応えつつ、家族が心地よく暮らすための空間を大切に設計しました。 ペットと一緒に暮らすことを考慮し、ドックルームを設けました。寝室にはミニキッチンを設け、ここでのんびりとした時間を過ごせます。 お施主様の好きが詰まったお家が完成しました♪
3LDK・2階建
延床面積:115.93m² [35.06坪]
2LDK / 2階建
ゆとりの暮らしを叶える開放的な空間
この2LDKの家は、施主の心地よい生活空間へのこだわりを具現化しています。ゆったりとくつろげるリビングは、家族が集まる憩いの場となり、大きな窓から差し込む自然光が温かさと開放感を演出します。また、キッチンとリビングが一続きになっていることで、調理や片付けをしながらも家族の会話を楽しむことができ、家事の効率を高めます。さらに各部屋への動線を工夫することで、プライバシーの確保にも配慮しました。これにより、施主の多様な生活ニーズに応えた、快適で心安らぐ住空間を実現しています。
2LDK・2階建
延床面積:76.38m² [23.1坪]
3LDK / 2階建
"家事の効率を高めるフレンチナチュラルなお家"
この2階建ての3LDKの間取りは、家事を効率的にこなせる快適な生活を提供します。リビングダイニングとキッチンの配置は、料理をしながら家族とのコミュニケーションを楽しめるように配慮されています。また、主寝室と子供部屋の間にはプライバシーが保たれるようなレイアウトが取られています。家事動線も考慮されており、家族がストレスなく暮らせるように設計されています。この間取りは、施主の要望に応えながら、やさしい暮らしと家族の幸せを叶えることができます。
3LDK・2階建
延床面積:89.44m² [27.05坪]