静岡県西部エリア

工務店・新築・一戸建て・注文住宅・リノベ会社を検索できるくふうイエタテ

注文住宅、リフォーム住宅会社を探す

住宅会社 住宅イベント モデルハウス リフォーム・リノベーション 土地・建売 住まいのプロ 動画 家づくりガイド くふうイエタテカウンター
施工対応エリア
静岡県全域、愛知県全域
電話番号
050-5851-0666
ジャンル
新築 、 土地相談
資料請求無料 検討会社に追加する

テーマはカラフル!真壁とアメリカンがほどよく融合した家

お気入り
クリップ
M邸  物件エリア:浜松市中央区  家族構成:夫+妻+長女+次女+三女
サイエンスホーム【子育て、自然素材、間取り】Mさん家族のシンボルカラーである黄色をふんだんに取り入れたLDK。ビビッドイエローのクロスが、同社の特徴である真壁づくりの空間とぴったり馴染み、楽しい雰囲気に仕上がった
サイエンスホーム【子育て、自然素材、間取り】家族のつながりを育む吹抜け。これほど大きな空間があっても上下階の温度差がなく、外張り断熱の効果で外気温の影響も受けないため、快適に過ごせる
サイエンスホーム【子育て、自然素材、間取り】ゆったりとした土間玄関。女子率が高い家族なので、将来に備えてシューズクローゼットを大きめに造作した
サイエンスホーム【子育て、自然素材、間取り】照明、鏡、タイル、深底シンクなど、ディテールにまでこだわった洗面脱衣室
サイエンスホーム【子育て、自然素材、間取り】長女の部屋はピンクのクロス、次女の部屋はブルーのクロスでコーディネート
サイエンスホーム【子育て、自然素材、間取り】さまざまな過ごし方ができる2階のフリースペース。将来的には間仕切りして、三女の部屋を作る予定
サイエンスホーム【子育て、自然素材、間取り】広い庭のある暮らしこそ、一戸建ての醍醐味。ウッドデッキと芝生の庭でBBQや子どもプールなど、おうち時間を存分に楽しめる。遊びに来る友人家族も毎回大喜びだ
サイエンスホーム【子育て、自然素材、間取り】カバードポーチが印象的なアメリカンスタイルの外観。ブルーと白の組み合わせが上品で、外構のフェンスもかわいらしく仕上がっている。真壁づくりの室内とのギャップが面白い
Mさん家族のシンボルカラーである黄色をふんだんに取り入れたLDK。ビビッドイエローのクロスが、同社の特徴である真壁づくりの空間とぴったり馴染み、楽しい雰囲気に仕上がった
家族のつながりを育む吹抜け。これほど大きな空間があっても上下階の温度差がなく、外張り断熱の効果で外気温の影響も受けないため、快適に過ごせる
ゆったりとした土間玄関。女子率が高い家族なので、将来に備えてシューズクローゼットを大きめに造作した
照明、鏡、タイル、深底シンクなど、ディテールにまでこだわった洗面脱衣室
長女の部屋はピンクのクロス、次女の部屋はブルーのクロスでコーディネート
さまざまな過ごし方ができる2階のフリースペース。将来的には間仕切りして、三女の部屋を作る予定
広い庭のある暮らしこそ、一戸建ての醍醐味。ウッドデッキと芝生の庭でBBQや子どもプールなど、おうち時間を存分に楽しめる。遊びに来る友人家族も毎回大喜びだ
カバードポーチが印象的なアメリカンスタイルの外観。ブルーと白の組み合わせが上品で、外構のフェンスもかわいらしく仕上がっている。真壁づくりの室内とのギャップが面白い

富塚展示場を訪れ、天然木をふんだんに使った家の雰囲気と、住みやすい家事動線にひかれて『サイエンスホーム』を選んだMさん。完成した住まいは、ブルーを基調としたアメリカンスタイルの外観が特徴。室内は柱と梁を現しにした真壁づくりの和モダンなデザインで、鮮やかなイエローのクロスが映える。寝室からクローゼット、洗面室へと続く動線や適所適量の収納を備えたことで、子どもたちに自主性が生まれ、共働き夫婦の時短にもつながった。2階はイエロー・ピンク・ブルーのクロスを使い分け、カラフルでワクワクする空間に。「木の質感と好きな色に囲まれて、動線も収納も使いやすいので、毎日楽しく暮らしています」と奥さまも大満足の仕上がりとなった。

資料・カタログをもらう無料 来店予約をする
送付内容: 会社パンフレット・商品カタログ・工法、技術カタログ・施工例集・その他
スタッフ写真

スタッフからのコメント

笑顔の絶えないMさまご家族。土地探しからお手伝いさせていただき、デザインと間取りは一つ一つ細かく丁寧に打合せしました。ご夫婦と3人のお子さんたちに満足してもらえて大変うれしく思います。

家づくりアドバイザー 村木 綾子さん

物件情報

設計者名 サイエンスホーム
施工社名 サイエンスホーム
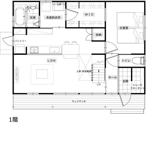
敷地面積 280.10㎡ [84.73坪]
延床面積 120.00㎡ [36.30坪](1階 80.00㎡、2階 40.00㎡)
構造・工法 木造軸組工法(真壁工法)
竣工 2022年3月
施工期間 4か月
外部仕上げ(屋根) ガルバリウム鋼板
外部仕上げ(外壁) サイディング+塗装
内部仕上げ(床) 無垢クリ
内部仕上げ(内壁) クロス
内部仕上げ(天井) クロス
内部仕上げ(断熱材) 外張り断熱
資料・カタログをもらう無料 来店予約をする
送付内容: 会社パンフレット・商品カタログ・工法、技術カタログ・施工例集・その他

その他の新築施工例 ({{max}}件)

サイエンスホーム

外張り断熱の木の家で1,000万円台~を実現!
  • 本社所在地 静岡県浜松市中央区萩丘3-4-27-1(本部お客様係)
  • 施工対応エリア 静岡県全域、愛知県全域
  • 電話番号 050-5851-0666
  • ジャンル 新築、 土地相談

お客さまの声

お客さまの写真

ログハウスに憧れていたので、富塚展示場を見て感動しました。決め手は村木さんの人柄と提案力です。「家族で楽しく過ごしたい」「友達がくつろげる家にしたい」という夢が実現して、とても満足しています♪

新築したきっかけ

子どもたちの成長に伴って、アパートが窮屈に。収納の多い広い家に住みたくなりました。

ロード中