静岡県西部エリア

工務店・新築・一戸建て・注文住宅・リノベ会社を検索できるくふうイエタテ

注文住宅、リフォーム住宅会社を探す

住宅会社 住宅イベント モデルハウス リフォーム・リノベーション 土地・建売 住まいのプロ 動画 家づくりガイド くふうイエタテカウンター
施工対応エリア
静岡県全域、愛知県全域
電話番号
050-5851-0666
ジャンル
新築 、 土地相談
資料請求無料 検討会社に追加する

ヒノキの香りに癒やされる飛騨高山の温泉旅館のような家

お気入り
クリップ
N邸  家族構成:夫+妻+長男+長女
サイエンスホーム【デザイン住宅、自然素材、間取り】新色の黒で柱や梁を自然塗装したLDKは、飛騨高山の鄙びた温泉旅館をイメージ。古民家のような落ち着いた空間に、吹抜けから柔らかな光が降り注ぎ、心からリラックスできる。べんがら色のクロスがアクセントになっている
サイエンスホーム【デザイン住宅、自然素材、間取り】家族がどこにいてもつながりを感じる大きな吹抜けのLDK。アカシアの床の経年変化も楽しみ
サイエンスホーム【デザイン住宅、自然素材、間取り】小上がりの畳コーナー。子どもと遊んだり、お昼寝させたり、多用途に使えて便利。畳の下は収納スペース
サイエンスホーム【デザイン住宅、自然素材、間取り】日当たりのいい子ども部屋。木の香りに包まれてすくすく育ちそう
サイエンスホーム【デザイン住宅、自然素材、間取り】ダイニングの一角にカウンターと収納棚を造作して、夫婦のワークスペースに。リモートワーク、オンライン会議でも重宝した。子どもたちのスタディコーナーとしても使い、キッチンのママに見守られながら安心して勉強できる
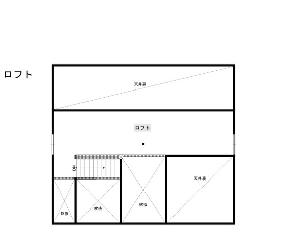
サイエンスホーム【デザイン住宅、自然素材、間取り】ご主人が「お一人さま」の時間を楽しむために設けた小屋裏のロフトは10.5畳。ときどき、子どもたちにとっての秘密基地にもなっている。天井高1,400mm以下の空間は、固定資産税の対象にならないボーナス空間♪
サイエンスホーム【デザイン住宅、自然素材、間取り】玄関からスムーズにつながる洗面脱衣室。新築して子どもたちが外から帰って来たらすぐ手を洗う習慣が身についていたので、コロナ禍でも安心できたそう。キッチン、浴室へとつながる動線が子育て夫婦の家事時間を短縮する
サイエンスホーム【デザイン住宅、自然素材、間取り】飽きのこない和モダンスタイルの外観。ワイドスパンのベランダは、家族全員の布団を一度に干せる
新色の黒で柱や梁を自然塗装したLDKは、飛騨高山の鄙びた温泉旅館をイメージ。古民家のような落ち着いた空間に、吹抜けから柔らかな光が降り注ぎ、心からリラックスできる。べんがら色のクロスがアクセントになっている
家族がどこにいてもつながりを感じる大きな吹抜けのLDK。アカシアの床の経年変化も楽しみ
小上がりの畳コーナー。子どもと遊んだり、お昼寝させたり、多用途に使えて便利。畳の下は収納スペース
日当たりのいい子ども部屋。木の香りに包まれてすくすく育ちそう
ダイニングの一角にカウンターと収納棚を造作して、夫婦のワークスペースに。リモートワーク、オンライン会議でも重宝した。子どもたちのスタディコーナーとしても使い、キッチンのママに見守られながら安心して勉強できる
ご主人が「お一人さま」の時間を楽しむために設けた小屋裏のロフトは10.5畳。ときどき、子どもたちにとっての秘密基地にもなっている。天井高1,400mm以下の空間は、固定資産税の対象にならないボーナス空間♪
玄関からスムーズにつながる洗面脱衣室。新築して子どもたちが外から帰って来たらすぐ手を洗う習慣が身についていたので、コロナ禍でも安心できたそう。キッチン、浴室へとつながる動線が子育て夫婦の家事時間を短縮する
飽きのこない和モダンスタイルの外観。ワイドスパンのベランダは、家族全員の布団を一度に干せる

仕事をしながら、子育てと家事に追われる忙しい日々。そんなNさん夫婦が『サイエンスホーム』に望んだのは、老舗旅館のような雰囲気のリラックスできる家だった。ヒノキの香りに癒やされる室内は、開放感あふれる吹抜けのLDKが広がり、黒い柱と梁を現しにした空間はまさに飛騨高山の温泉旅館のよう。また、帰宅してから家事に時間をかけずにすむよう、玄関から水回り、リビングへと行き止まりなく続く生活動線と大容量の収納スペースを設けた。ダイニング脇のワークスペースや広いロフトも備え、仕事も遊びも思いのまま。「世の中が落ち着いたら、たくさんの友人を招いてホームパーティをしたいです」とほほ笑む奥さま。懐かしさと新しさが同居する真壁づくりのN邸は、人をもてなしたくなる自慢の家だ。

資料・カタログをもらう無料 来店予約をする
送付内容: 会社パンフレット・商品カタログ・工法、技術カタログ・施工例集・その他
スタッフ写真

スタッフからのコメント

“懐かしいのに新しい”弊社の家づくりが、ご夫婦の理想とする住まいにぴったりマッチしました。黒い柱と梁を採用したことで、家全体が落ち着いた雰囲気に。吹抜け、小上がりの畳スペース、ロフト、さらに大容量の収納など、ご夫婦の想いをすべてカタチにすることができて嬉しく思います。

建築アドバイザー 中村 京哉さん

物件情報

本体価格 1500万〜1999万 ※金額は購入当時のものです
設計者名 サイエンスホーム
施工社名 サイエンスホーム
敷地面積 222.31㎡ [67.25坪]
延床面積 127.00㎡ [38.42坪](1階 56.00㎡、2階 52.00㎡、ロフト19.00㎡)
構造・工法 木造軸組工法(真壁工法)
竣工 2019年1月
施工期間 5か月
外部仕上げ(屋根) コロニアル
外部仕上げ(外壁) サイディング
内部仕上げ(床) 無垢アカシア
内部仕上げ(内壁) クロス
内部仕上げ(天井) クロス
内部仕上げ(断熱材) 外張り断熱
内部仕上げ(柱) 無垢ヒノキ
資料・カタログをもらう無料 来店予約をする
送付内容: 会社パンフレット・商品カタログ・工法、技術カタログ・施工例集・その他

その他の新築施工例 ({{max}}件)

サイエンスホーム

外張り断熱の木の家で1,000万円台~を実現!
  • 本社所在地 静岡県浜松市中央区萩丘3-4-27-1(本部お客様係)
  • 施工対応エリア 静岡県全域、愛知県全域
  • 電話番号 050-5851-0666
  • ジャンル 新築、 土地相談

お客さまの声

お客さまの写真

モデルハウスを見て、真壁づくりの家に一目惚れしました。吹抜けの開放感、木の香りとぬくもり。自分たちもこんな家に住みたいと思いました。私たちの希望がすべて叶った最高の家ができて満足しています。毎日楽しく生活できて、人を呼びたくなるほど自慢のマイホームになりました。

新築したきっかけ

アパート住まいでしたが、2人目の子どもが生まれて手狭になってきたことです。階下に響く生活音を気にしないで、のびのび暮らしたいと思いました。

ロード中