静岡県西部エリア

工務店・新築・一戸建て・注文住宅・リノベ会社を検索できるくふうイエタテ

注文住宅、リフォーム住宅会社を探す

住宅会社 住宅イベント モデルハウス リフォーム・リノベーション 土地・建売 住まいのプロ 動画 家づくりガイド くふうイエタテカウンター
施工対応エリア
静岡県全域、愛知県全域
電話番号
050-5851-0666
ジャンル
新築 、 土地相談
資料請求無料 検討会社に追加する

英国車と犬と楽しく暮らす 木の香りに癒されるガレージハウス

お気入り
クリップ
M邸  家族構成:単身世帯
サイエンスホーム【デザイン住宅、ペット、ガレージ】国産ひのきとアイアンでコーディネートされたLDK。柱と梁を現しにした真壁づくりの空間にきれいな空気がゆっくりと流れる。10年以上連れ添ってきた愛犬のさくらちゃんは、広い芝生の庭とリビングを自由に行き来できて毎日ゴキゲン
サイエンスホーム【デザイン住宅、ペット、ガレージ】庭と室内の一体感が心地いい真壁づくりのLDK。自分の好きなモノだけに囲まれて、毎日ワクワクしながら暮らしているそう
サイエンスホーム【デザイン住宅、ペット、ガレージ】リビングからFIXの窓越しにインナーガレージ内の愛車が見える。「こんな家で暮らすことに憧れていたんです!」 
サイエンスホーム【デザイン住宅、ペット、ガレージ】コーヒーを淹れるのが趣味のご主人は、休日に友人を招いてカフェスペースに
サイエンスホーム【デザイン住宅、ペット、ガレージ】パントリーの扉もひのきで造作
サイエンスホーム【デザイン住宅、ペット、ガレージ】便利なリビングイン収納。棚はご
主人の造作
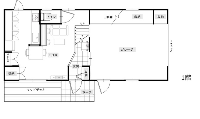
サイエンスホーム【デザイン住宅、ペット、ガレージ】1階のほぼ半分の面積を占めるインナーガレージ。施工実績の豊富な『サイエンスホーム』だからこそ、イメージ通りのカタチになった。休日はほぼ一日中ガレージにこもって、車いじりを楽しむそう。インテリアは引渡し後も徐々にカスタマイズされ、進化を続けている
サイエンスホーム【デザイン住宅、ペット、ガレージ】外観のデザインもご主人がラフスケッチを描いた。車を3台所有するため、カーポートとインナーガレージを併設。ダークグレーのガルバリウムに、白い軒天と窓枠が映える
国産ひのきとアイアンでコーディネートされたLDK。柱と梁を現しにした真壁づくりの空間にきれいな空気がゆっくりと流れる。10年以上連れ添ってきた愛犬のさくらちゃんは、広い芝生の庭とリビングを自由に行き来できて毎日ゴキゲン
庭と室内の一体感が心地いい真壁づくりのLDK。自分の好きなモノだけに囲まれて、毎日ワクワクしながら暮らしているそう
リビングからFIXの窓越しにインナーガレージ内の愛車が見える。「こんな家で暮らすことに憧れていたんです!」 
コーヒーを淹れるのが趣味のご主人は、休日に友人を招いてカフェスペースに
パントリーの扉もひのきで造作
便利なリビングイン収納。棚はご
主人の造作
1階のほぼ半分の面積を占めるインナーガレージ。施工実績の豊富な『サイエンスホーム』だからこそ、イメージ通りのカタチになった。休日はほぼ一日中ガレージにこもって、車いじりを楽しむそう。インテリアは引渡し後も徐々にカスタマイズされ、進化を続けている
外観のデザインもご主人がラフスケッチを描いた。車を3台所有するため、カーポートとインナーガレージを併設。ダークグレーのガルバリウムに、白い軒天と窓枠が映える

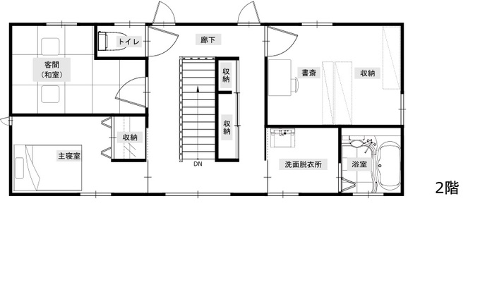
大な雑貨や本に囲まれて、3台の車と犬と楽しく暮らしたい。そんなMさんの夢を叶えてくれたのが『サイエンスホーム』だ。家具も作ってしまうほどDIY が得意なご主人は、自ら外装・内装のイメージをデザインし、同社にガレージハウスを委ねた。浜松展示場で一目惚れしたという真壁づくりの室内はオールひのき造りで、玄関を開いた瞬間から天然木のやさしい香りに包まれる。木とアイアンでコーディネートされたLDK からはガレージ内の英国車ロータス・エリーゼが見え、「常に愛車を身近に感じながら暮らしたい」という夢を実現した。リビングの大開口を開けると芝生の庭とつながり、愛犬が自由に行き来する。水回りと寝室、書斎は2階に配置し、ユーティリティスペースに部屋干ししたまま出勤できるので安心。「時とともに朽ちていくのではなく、ヴィンテージへと熟成していくのが『サイエンスホーム』の家の魅力だと思います」と少年のような瞳で話すご主人。その笑顔が新築の満足度を物語っている。

資料・カタログをもらう無料 来店予約をする
送付内容: 会社パンフレット・商品カタログ・工法、技術カタログ・施工例集・その他

間取り

  • サイエンスホーム 英国車と犬と楽しく暮らす 木の香りに癒されるガレージハウス
  • サイエンスホーム 英国車と犬と楽しく暮らす 木の香りに癒されるガレージハウス
スタッフ写真

スタッフからのコメント

Mさんは新しい暮らしのイメージがはっきりとされていたので、そのイメージを壊さないよう、理想を現実の建物にするよう心がけました。

住宅アドバイザー 村木 綾子さん

物件情報

設計者名 サイエンスホーム
施工社名 サイエンスホーム
敷地面積 200.26㎡[60.58 坪]
延床面積 15.00㎡[34.72 坪] (1階 57.50㎡、2階 57.50㎡)
構造・工法 木造軸組工法(真壁工法)
竣工 2017 年11 月
施工期間 4 か月
内部仕上げ(床) 無垢ひのき
内部仕上げ(内壁) 無垢ひのき
内部仕上げ(断熱材) グラスウール
使用メーカー(バス) TOTO
使用メーカー(トイレ) TOTO
使用メーカー(キッチン) TOTO
使用メーカー(照明) ODELIC
使用メーカー(窓・サッシ) YKK
資料・カタログをもらう無料 来店予約をする
送付内容: 会社パンフレット・商品カタログ・工法、技術カタログ・施工例集・その他

その他の新築施工例 ({{max}}件)

サイエンスホーム

外張り断熱の木の家で1,000万円台~を実現!
  • 本社所在地 静岡県浜松市中央区萩丘3-4-27-1(本部お客様係)
  • 施工対応エリア 静岡県全域、愛知県全域
  • 電話番号 050-5851-0666
  • ジャンル 新築、 土地相談

お客さまの声

お客さまの写真

全国雑誌に載っていた広告に目が留まり、モデルハウスに行ったのがきっかけです。真壁づくりが気に入ったのと、ガレージハウスの建築実績が豊富なことが決め手になりました。最後まで諦めず、妥協せず、こだわって良かったと思っています。自分でもSNSや雑誌で知識を増やし、どんな暮らしをしたいのかを明確にしてから工務店さんに伝えましょう。

新築したきっかけ

実家に住んでいたのですが、3台の車を置くスペースがなく、別の場所を借りていました。大事な車を風雨にさらしたくないので、インナーガレージのある家を建てようと思いました。

ロード中