静岡県西部エリア

工務店・新築・一戸建て・注文住宅・リノベ会社を検索できるくふうイエタテ

注文住宅、リフォーム住宅会社を探す

住宅会社 住宅イベント モデルハウス リフォーム・リノベーション 土地・建売 住まいのプロ 動画 家づくりガイド くふうイエタテカウンター
施工対応エリア
静岡県全域、愛知県全域
電話番号
050-5851-0666
ジャンル
新築 、 土地相談
資料請求無料 検討会社に追加する
2LDK | 平屋

20代夫婦が無理なく叶えた有効活用できるロフト付き平屋

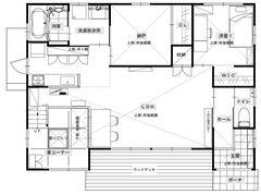
1階

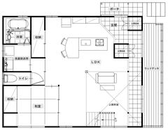
ロフト

サイエンスホーム 20代夫婦が無理なく叶えた有効活用できるロフト付き平屋 1階
サイエンスホーム 20代夫婦が無理なく叶えた有効活用できるロフト付き平屋 ロフト

間取り提案

施主からの希望・要望

  • ゆったりとくつろげるリビング
  • 趣味、仕事スペースを確保
  • ペットと一緒に暮らしやすい

スタッフからのコメント

20代前半のご夫婦とかわいい赤ちゃんが笑顔で快適に暮らせる平屋です。吹抜けのリビング、家事ラク動線、散髪ができるフリースペースなど、ご要望をすべてカタチにしました。

DATA

階数 平屋 延床面積 94m² [28.43坪] 敷地面積 330.57m² [99.99坪]
間取り 2LDK
1階 ---
ロフト ---
施工面積 ---
家族構成 --- 設計者名 ---
#子育て #ペット #ロフト #平屋 #吹き抜け #カットルーム

サイエンスホームに「間取り」や「家づくりの相談」ができます。 この会社に来店予約をする

この間取りはこちらの施工例でご覧いただけます

20代夫婦が無理なく叶えた有効活用できるロフト付き平屋

ありきたりな家は建てたくないと、真壁づくりの『サイエンスホーム』を選んだTさん。100坪の土地を 購入できたため、担当アドバイザーからロフト付き平屋を提案され決めたそう。完成したのは風情ある和モダンの外観が特徴で、帰ってくるたびにホッとする住まい。リビングは吹抜けを採用し、家族がどこにいても気配を感じられる。キッチンから水回りへの動線もシンプルで暮らしやすい。ロフトスペースは自由度の高いフリー空間で、家族の髪を切る本格的なカットルームに仕上げた。「新築して2年経ちましたが、満足度はまったく変わっていません」と奥さま。ひのきの床が娘さんの成長とともに飴色に変化してきて、ますます我が家への愛着が深まったそうだ。

施工例を詳しくみる
  • 本体価格 指定なし
    ※金額は購入当時のものです
  • 竣工 2020年3月
  • 施工期間 5か月
  • 住宅性能

似ている間取りはこちら