静岡県西部エリア

工務店・新築・一戸建て・注文住宅・リノベ会社を検索できるくふうイエタテ

注文住宅、リフォーム住宅会社を探す

住宅会社 住宅イベント モデルハウス リフォーム・リノベーション 土地・建売 住まいのプロ 動画 家づくりガイド くふうイエタテカウンター
施工対応エリア
静岡県全域、愛知県全域
電話番号
050-5851-0666
ジャンル
新築 、 土地相談
資料請求無料 検討会社に追加する
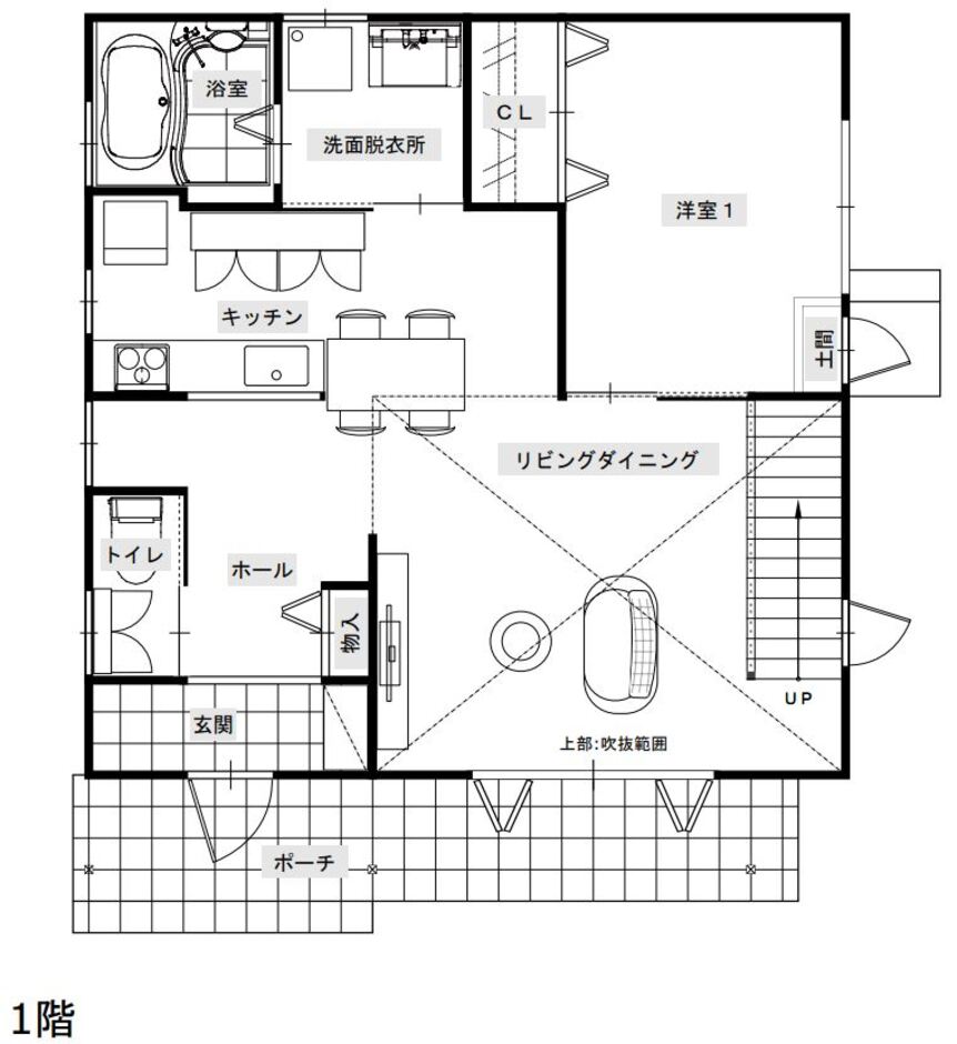
2LDK | 1.5階建

本体価格1,000万円台で叶えた 1.5階建て・国産ひのきの家

1階

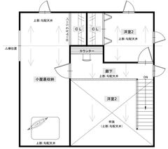
2階

サイエンスホーム 本体価格1,000万円台で叶えた 1.5階建て・国産ひのきの家 1階
サイエンスホーム 本体価格1,000万円台で叶えた 1.5階建て・国産ひのきの家 2階

間取り提案

施主からの希望・要望

  • 自然光がたくさん入る明るい設計
  • 開放感のある吹き抜け
  • 庭やバルコニーとのつながり

スタッフからのコメント

セミオーダーメイドでつくる「ひのきづくしの家」は、1,000万円台で「優れた品質」「ぬくもり」「癒やし」の我が家を建てられます。

DATA

階数 1.5階建 延床面積 111m² [33.57坪] 敷地面積 297.52m² [89.99坪]
間取り 2LDK
1階 ---
2階 ---
施工面積 ---
家族構成 --- 設計者名 ---
#子育て #吹き抜け #アジアン #リビング #大屋根 #収納

サイエンスホームに「間取り」や「家づくりの相談」ができます。 この会社に来店予約をする

この間取りはこちらの施工例でご覧いただけます

本体価格1,000万円台で叶えた 1.5階建て・国産ひのきの家

アジアンリゾートのような開放感と癒やしを日常に取り入れたいと望んだKさん。広い敷地を活かして完成した1.5階建ての家は、外国のリゾート地にあるコテージのような佇まいで、友だちみんなから「どこで建てたの?」と聞かれるそう。玄関を一歩入ると、ひのきならではのやさしい香りが漂い、大きな吹抜けのLDKに時間がゆっくりと流れる。リビングの全開口サッシを開けるとテラスとつながり、室内なのに屋外にいるような感覚が心地いい。1階はキッチンを起点としたオープンな間取りで、無駄な動きを省ける家事ラク動線を実現。固定階段で上がる小屋裏のロフトは、家族共有のフリースペースで、ハンモックを吊って読書や昼寝を楽しむことも。「毎日森林浴気分を味わいながら気持ち良く暮らしています。これだけ贅沢にひのきを使いながら1,000万円台で新築できたなんて夢のようです」。こう話す奥さまのとびきりの笑顔が満足度の高さを物語っている。

施工例を詳しくみる
  • 本体価格 指定なし
    ※金額は購入当時のものです
  • 竣工 2019年11月
  • 施工期間 4か月
  • 住宅性能