静岡県西部エリア
他のエリア
工務店・新築・一戸建て・注文住宅・リノベ会社を検索できるくふうイエタテ
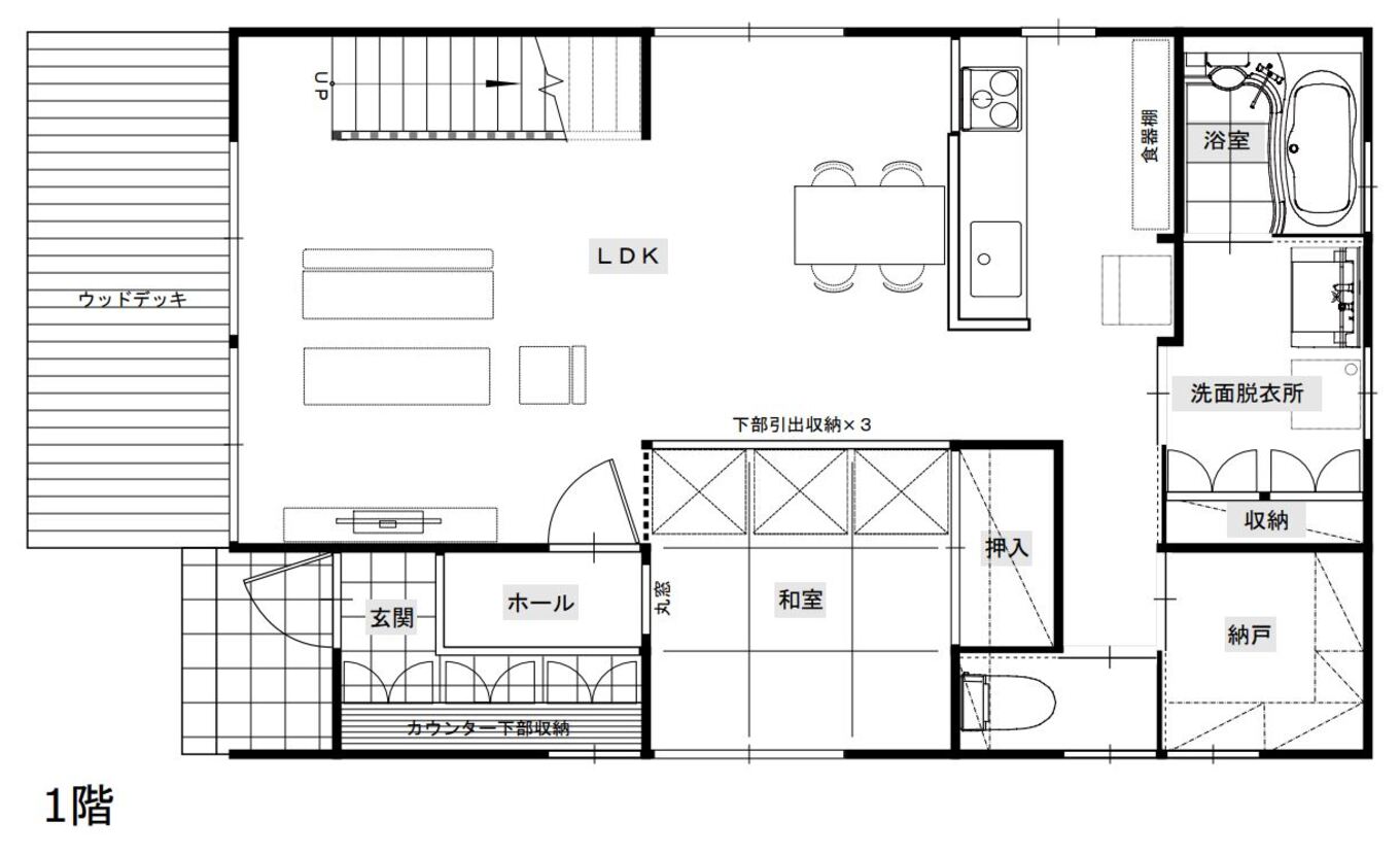
1階
2階
ロフト
施主からの希望・要望
Y様ご家族が木の家に喜んで住んでいる姿をイメージしながら提案させていただきました。和の魅力もY様好みに仕上げる事ができ、世界に1つだけの癒し空間が完成しました。
| 階数 2階建 | 延床面積 133m² [40.23坪] | 敷地面積 269.6m² [81.55坪] |
| 間取り 5LDK |
1階
---
2階
---
ロフト
---
|
施工面積 --- |
| 家族構成 --- | 設計者名 --- |
この間取りはこちらの施工例でご覧いただけます
『サイエンスホーム』のモデルハウスを訪れ、柱と梁が現しになった真壁づくりの雰囲気、レトロモダンなデザインに一目惚れしたYさん夫妻。担当の大石さんと楽しみながら創り上げた大屋根の家は、スケールの大きな吹抜けのリビングを中心に、ひのきを贅沢に使った心地いい空間だ。1階に水回り設備をコンパクトにまとめたり、適量適所の収納スペース、さらには寝室としても使える和室を設けるなど、今だけでなく、子どもが巣立った後も快適に暮らせるよう設計されている。建てたら終わりではなく、アフターメンテナンスの対応もスピーディーで、安心して暮らせるそうだ。
施工例を詳しくみる1LDK / 2階建
施工事例あり
ヒノキのおうちで毎日楽しむ 森林浴とホームシアター
暮らしを楽しむセンス抜群のM様ご夫妻。私たちも改めて自由設計の醍醐味を堪能させていただきました。
1LDK・2階建
延床面積:117m² [35.39坪]
4LDK / 2階建
施工事例あり
子育て世代が無理なく建てた 森林浴しながら暮らせる家
奥さまが「こうしたい!」というイメージを具体的に持っていたので、一つひとつ細かくヒアリングしながら、コストが極力かからない方法をご提案しました。
4LDK・2階建
延床面積:110m² [33.27坪]
3LDK / 2階建
施工事例あり
ヒノキの香りに癒やされる飛騨高山の温泉旅館のような家
“懐かしいのに新しい”弊社の家づくりが、ご夫婦の理想とする住まいにぴったりマッチしました。黒い柱と梁を採用したことで、家全体が落ち着いた雰囲気に。吹抜け、小上がりの畳スペース、ロフト、さらに大容量の収納など、ご夫婦の想いをすべてカタチにすることができて嬉しく思います。
3LDK・2階建
延床面積:127m² [38.41坪]
4LDK / 2階建
施工事例あり
町家の雰囲気と門のある佇まい 私たちらしい「和の家」が完成
「とことん和風で」と明確にイメージをお持ちだったN夫妻。ご要望に当社の強みをブレンドし、丁寧に形にしていきました。照明計画もポイント。やさしい光が無垢のぬくもりとほどよい懐かしさを包む夜の雰囲気も素敵です。
4LDK・2階建
延床面積:124.15m² [37.55坪]