静岡県中部エリア
他のエリア
工務店・新築・一戸建て・注文住宅・リノベ会社を検索できるくふうイエタテ
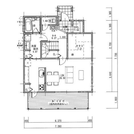
3LDK / 2階建
家事のしやすい間取り
大容量の収納やお施主様の家事の動線を考えた設計です。注文住宅では、お施主様の数だけ間取りがあります! お子様の成長に合わせて部屋の数を増やせます☆
3LDK・2階建
延床面積:115.91m² [35.06坪]
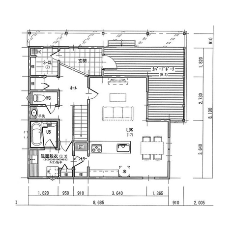
3LDK / 2階建
カバードポーチがオシャレなアメリカンスタイルのお家
キッチンにはサブウェイタイルを施工しました。デザイン性だけでなく、タッチレス水栓や食洗機など機能性も充実しています。 収納もたっぷり!玄関手洗いやシューズクローゼットなど家事動線や暮らし易さを考えたお家です☆
3LDK・2階建
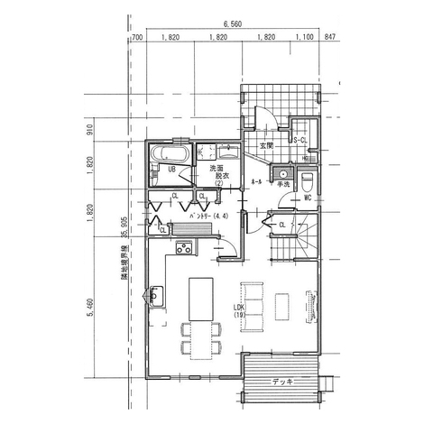
2LDK / 2階建
【34坪】アメリカンスタイルのお家
アメリカンスタイルをご要望のお施主様のリクエストは広いカバードポーチ、ラップサイディング、広々とした玄関ホールでした。お施主様が家事をし易い動線をプランニングさせていただきました。
2LDK・2階建
延床面積:113.21m² [34.24坪]