静岡県中部エリア
他のエリア
工務店・新築・一戸建て・注文住宅・リノベ会社を検索できるくふうイエタテ
家族構成:30代夫婦 4歳、1歳のお子様の4人家族
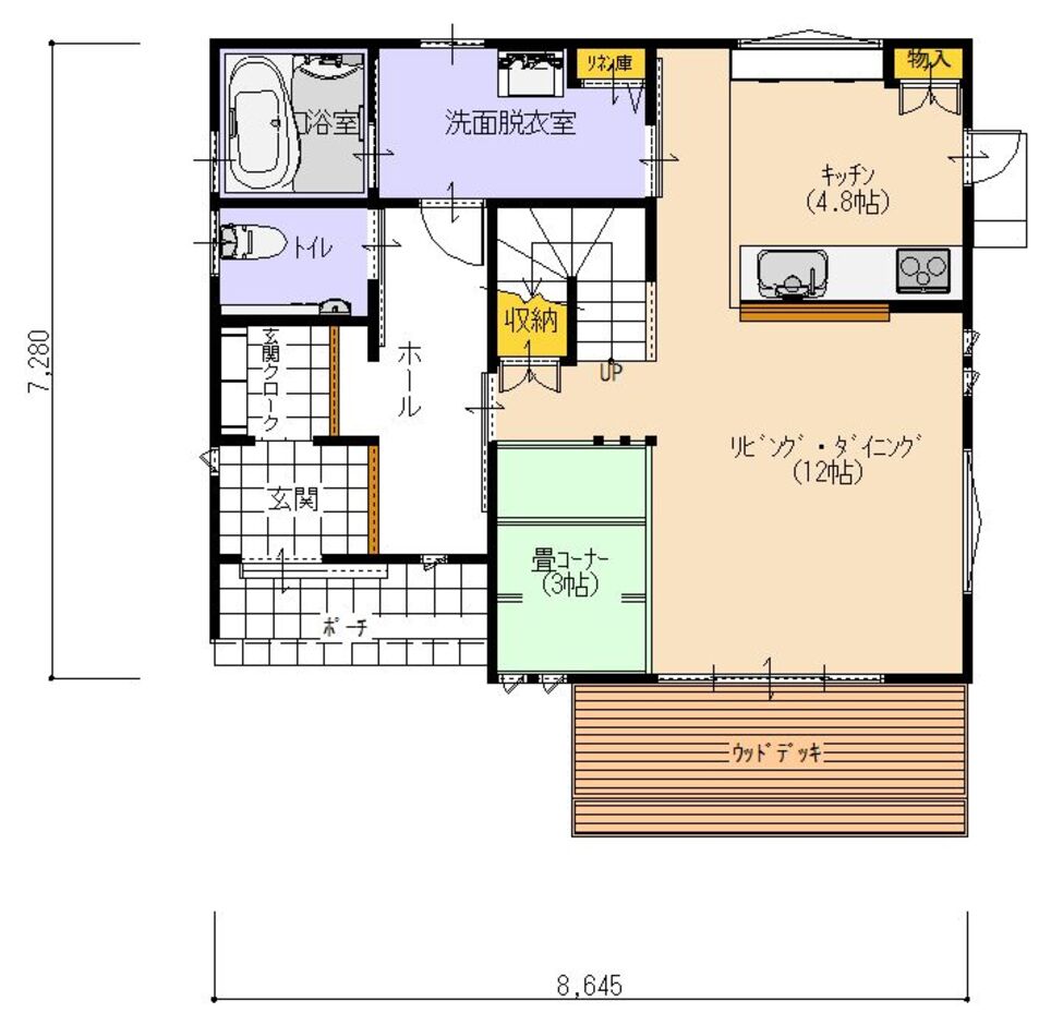
1階
61.48m² (18.59坪)
2階
59.83m² (18.09坪)
回遊導線
家の中の行き止まりを少なくし、スムーズに移動できることでストレスなく生活ができます。仕事に家事に忙しい夫婦にはピッタリです。 回遊導線の中心の階段はリビング入口に設置したおかけで、家を出入りするときに声をかけやすくなりますね。
小上がり畳コーナー
リビングより一段高く設置した畳コーナー。 下部に収納スペースを設けることができるのでリビングに収納棚を作らなくても大丈夫。 また、柔らかく温かみのある素材である畳で、リラックスできる空間を演出できます。
ウッドデッキ
リビングから直接出入りできるウッドデッキは、室内空間を拡張し、開放感を与えてくれます。 天気のいい日にはBBQの場や、子どもの遊び場として活用可能です。
収納
二階にはたっぷりの収納スペースを確保しました。 各部屋についているクローゼットに加え、廊下には納戸を設置。 大きな季節ものの荷物や、家族共有のものを保管できます。
バルコニー
三か所から出入りできるバルコニー。 三か所とも大きな窓を設置しているので、採光の役割を果たしています。 また、インナーバルコニーとして屋根がついているので急な雨でショックを受けることもありません。
施主からの希望・要望
必要なところに必要なだけの収納を配置しました。 シンプルだけど使いやすい。いくらでも自分好みのテイストに変えて行ける…家族と共に成長するお家です。
| 階数 2階建 | 延床面積 110.75m² [33.5坪] | 敷地面積 165.28m² [49.99坪] |
| 間取り 3LDK |
1階
61.48m² [18.59坪]
2階
59.83m² [18.09坪]
|
施工面積 121.31m² [36.69坪] |
| 家族構成 30代夫婦 4歳、1歳のお子様の4人家族 | 設計者名 HAPPY HOUSE(山田工務店) |
4LDK / 2階建
施工事例あり
広がりを体感できる空間で、心まで解放される暮らしを
土地探しからお手伝いさせていただき、候補地で一緒にロープを敷いてシミュレーションしたことも印象に残っています。ご夫妻がイメージしていたたくさんの夢を100%に近い形で叶えられるよう、私たちの持てる技と工夫を集結させた住まいです。
4LDK・2階建
延床面積:128.62m² [38.9坪]
4LDK / 2階建
施工事例あり
緑とシンプルな小物が似合う、洗練&ナチュラルハウス
黒いキッチン、スキップフロア、吹き抜けとアイアン手すりの組み合わせなど、さまざまなご要望を形にするため、打ち合わせに多くの時間をいただきました。特に奥さまのリサーチ力は、私たちも勉強に。ご夫婦のセンスと利便性が調和する一棟に仕上がりました。
4LDK・2階建
延床面積:122.75m² [37.13坪]
3LDK / 2階建
3.4mの天井高と中庭がつながる、明るく開放的なリビングに暮らす
今、家を建てるなら…こんな間取りがいい!をカタチにしています。 1階にシューズクローク、ファミクロ、パントリーはもちろん、ランドリーコーナーも設け、それを回遊動線で繋ぐことで子育てファミリーの「家事ラク」を実現。きっと「真似したくなる」間取りです。
3LDK・2階建
延床面積:120.06m² [36.31坪]
3LDK / 2階建
北道路に面しているからこそ出来る、こんな間取りと外観
道路に面する外観は入口以外の窓を無くし、スタイリッシュに仕上げました。 代わりにリビングに面している南側は沢山の光が入ってくる設計となっています。 北道路に面しているため避けられがちな土地ですが、あえてそこを活かしたかっこいいお家となりました。
3LDK・2階建
(3LDK+納戸)
延床面積:114.06m² [34.5坪]
【完全予約制】家まつり@焼津市小屋敷
【予約制】40坪4LDKの等身大サイズ! @藤枝市高洲モデルハウス
【完全予約制】子育て世代を応援するアイデアがカタチになったモデルハウス @掛川住宅公園