静岡県中部エリア
他のエリア
工務店・新築・一戸建て・注文住宅・リノベ会社を検索できるくふうイエタテ
家族構成:母 子世帯夫婦 子供1人 4人家族
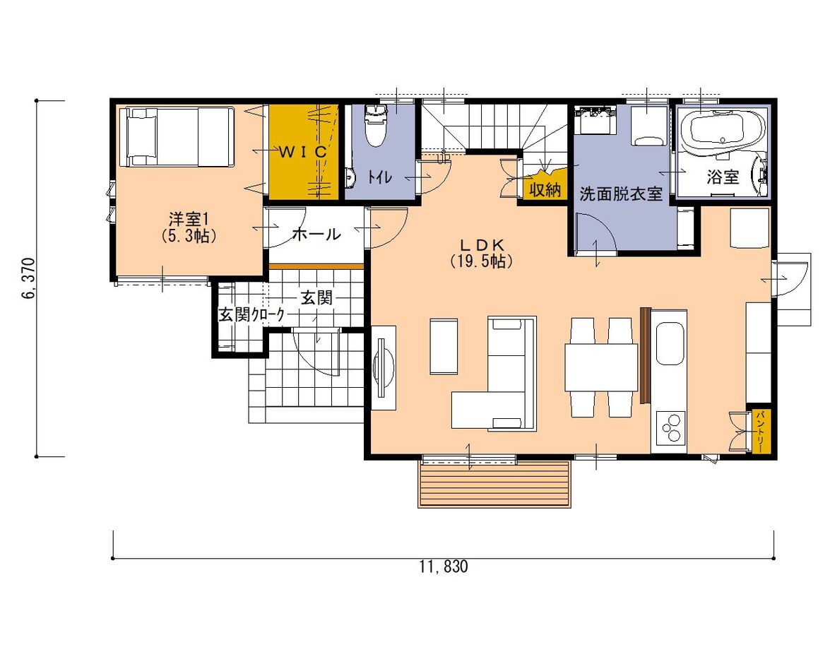
1階
64.59m² (19.53坪)
2階
46.37m² (14.02坪)
1階洋室
親が高齢になり、階段の上り下りが大変になっても1階で生活を完結させることができます。 他にも客間として利用したり、流行りウイルスの隔離部屋としても利用可能です。
広々LDK
LDKは19.5帖を確保しました。 リビングはウッドデッキに繋がっており、より開放感を味わえます。 家族団らんの場所として大活躍です。
1.5帖のトイレ空間
トイレ空間は少し広めにとってあります。 将来介護が必要になった場合、大人2人入っても十分な広さがあります。 手洗いを設置し、洗面所との行き来も不要です。
納戸
2帖の広さを確保した納戸です。 普段使いしないものや大きな荷物を入れておくことができるので部屋のクローゼットを圧迫しないで済みます。 季節ものなどを保管しておくにもピッタリですね。
洋室
一見、二部屋あるように見えますが、10.5帖の広いワンルームの洋室です。 将来家族が増えた時には仕切りをつけて二部屋に分けることができます。
施主からの希望・要望
親と同居する暮らしや、将来1階で生活を完結したいご家族にフィットした間取りです。
| 階数 2階建 | 延床面積 110.96m² [33.56坪] | 敷地面積 --- |
| 間取り 4LDK |
1階
64.59m² [19.53坪]
2階
46.37m² [14.02坪]
|
施工面積 --- |
| 家族構成 母 子世帯夫婦 子供1人 4人家族 | 設計者名 HAPPY HOUSE(山田工務店) |
4LDK / 2階建
施工事例あり
広がりを体感できる空間で、心まで解放される暮らしを
土地探しからお手伝いさせていただき、候補地で一緒にロープを敷いてシミュレーションしたことも印象に残っています。ご夫妻がイメージしていたたくさんの夢を100%に近い形で叶えられるよう、私たちの持てる技と工夫を集結させた住まいです。
4LDK・2階建
延床面積:128.62m² [38.9坪]
4LDK / 2階建
施工事例あり
緑とシンプルな小物が似合う、洗練&ナチュラルハウス
黒いキッチン、スキップフロア、吹き抜けとアイアン手すりの組み合わせなど、さまざまなご要望を形にするため、打ち合わせに多くの時間をいただきました。特に奥さまのリサーチ力は、私たちも勉強に。ご夫婦のセンスと利便性が調和する一棟に仕上がりました。
4LDK・2階建
延床面積:122.75m² [37.13坪]
3LDK / 2階建
3.4mの天井高と中庭がつながる、明るく開放的なリビングに暮らす
今、家を建てるなら…こんな間取りがいい!をカタチにしています。 1階にシューズクローク、ファミクロ、パントリーはもちろん、ランドリーコーナーも設け、それを回遊動線で繋ぐことで子育てファミリーの「家事ラク」を実現。きっと「真似したくなる」間取りです。
3LDK・2階建
延床面積:120.06m² [36.31坪]
3LDK / 2階建
北道路に面しているからこそ出来る、こんな間取りと外観
道路に面する外観は入口以外の窓を無くし、スタイリッシュに仕上げました。 代わりにリビングに面している南側は沢山の光が入ってくる設計となっています。 北道路に面しているため避けられがちな土地ですが、あえてそこを活かしたかっこいいお家となりました。
3LDK・2階建
(3LDK+納戸)
延床面積:114.06m² [34.5坪]
【予約制】40坪4LDKの等身大サイズ! @藤枝市高洲モデルハウス
【完全予約制】子育て世代を応援するアイデアがカタチになったモデルハウス @掛川住宅公園
【予約制】家事楽を叶える平屋@焼津市中根新田モデルハウス「ヴェロニカ」