静岡県中部エリア

工務店・新築・一戸建て・注文住宅・リノベ会社を検索できるくふうイエタテ

注文住宅、リフォーム住宅会社を探す

住宅会社 住宅イベント モデルハウス リフォーム・リノベーション 土地・建売 住まいのプロ 動画 家づくりガイド くふうイエタテカウンター
施工対応エリア
中部(静岡)
電話番号
050-5851-0450
ジャンル
新築 、 リフォーム 、 土地相談
資料請求無料 検討会社に追加する
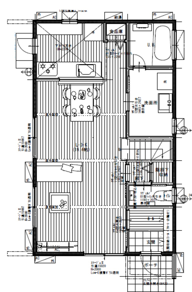
3LDK | 2階建

自然光溢れる開放的な3LDKの住まい

1階

アキヤマ 自然光溢れる開放的な3LDKの住まい 1階

間取り提案

施主からの希望・要望

  • ゆったりとくつろげるリビング
  • 自然光がたくさん入る明るい設計
  • 開放感のある吹き抜け

スタッフからのコメント

3LDKの間取りは、ゆったりとくつろげるリビングスペースを重視しています。 明るい設計と吹き抜けにより、自然光がたくさん入り込み、開放感あふれる居住空間を実現しました。 リビングエリアは家族や友人との交流を楽しむ場所として最適であり、豊かな自然光に包まれて快適にくつろぐことができます。 各部屋は個別のプライベート空間として設計されており、家族のプライバシーをしっかりと確保しながらも、快適なくつろぎの場所として活用できます。この間取りを選ぶことで、施主の要望を満たし、明るく開放的なライフスタイルを実現することができます。

DATA

階数 2階建 延床面積 --- 敷地面積 ---
間取り 3LDK
1階 ---
施工面積 ---
家族構成 --- 設計者名 ---

アキヤマに「間取り」や「家づくりの相談」ができます。 この会社に来店予約をする

似ている間取りはこちら