静岡県東部エリア

工務店・新築・一戸建て・注文住宅・リノベ会社を検索できるくふうイエタテ

注文住宅、リフォーム住宅会社を探す

住宅会社 住宅イベント モデルハウス リフォーム・リノベーション 土地・建売 住まいのプロ 動画 家づくりガイド くふうイエタテカウンター
静岡東部 ランキング 1
施工対応エリア
伊豆全域~藤枝(その他は応相談)
電話番号
050-5268-8286
ジャンル
新築 、 リフォーム 、 土地相談
資料請求無料 検討会社に追加する

間取りもコストも妥協なし!無理なく自由設計&高品質の家を実現

お気入り
クリップ
M邸  物件エリア:駿東郡清水町  家族構成:夫+妻+長女
irohaco(アヴァンス)【デザイン住宅、子育て、間取り】小上がりの畳コーナーと合わせると24畳もの大空間LDK。存在感のあるキッチンは美しいクリスタルトップに心躍るTOTOの「ザ・クラッソ」。フローリングと同じ色合いの下がり天井で空間にアクセントを
irohaco(アヴァンス)【デザイン住宅、子育て、間取り】TVコーナーの壁面は、間接照明とエコカラットでアクセントをつけ造作仕様に
irohaco(アヴァンス)【デザイン住宅、子育て、間取り】手洗いコーナーを造作した玄関ホール。正面の壁に調湿・消臭効果の高いエコカラットを贅沢に張った
irohaco(アヴァンス)【デザイン住宅、子育て、間取り】10畳のインナーバルコニーは、BBQや子どもプールなど、アウトドアリビングとして大活躍
irohaco(アヴァンス)【デザイン住宅、子育て、間取り】細かに散りばめた石調と木目のサイディングがバランス良く調和した外観。駐車場もゆとりの4台分を確保
irohaco(アヴァンス)【デザイン住宅、子育て、間取り】キッチンのバックヤードに設けたランドリールーム。部屋干しポールとアイロン台を造作したほか、靴をガシガシ洗えるスロップシンクも設置した
irohaco(アヴァンス)【デザイン住宅、子育て、間取り】フローリングと同じ素材を使ったテレビステーション。間接照明がサイドのエコカラットにあたり、高級感を出している
irohaco(アヴァンス)【デザイン住宅、子育て、間取り】畳コーナーの照明は幻想的な「月」をイメージ。ゲストからも大好評!
小上がりの畳コーナーと合わせると24畳もの大空間LDK。存在感のあるキッチンは美しいクリスタルトップに心躍るTOTOの「ザ・クラッソ」。フローリングと同じ色合いの下がり天井で空間にアクセントを
TVコーナーの壁面は、間接照明とエコカラットでアクセントをつけ造作仕様に
手洗いコーナーを造作した玄関ホール。正面の壁に調湿・消臭効果の高いエコカラットを贅沢に張った
10畳のインナーバルコニーは、BBQや子どもプールなど、アウトドアリビングとして大活躍
細かに散りばめた石調と木目のサイディングがバランス良く調和した外観。駐車場もゆとりの4台分を確保
キッチンのバックヤードに設けたランドリールーム。部屋干しポールとアイロン台を造作したほか、靴をガシガシ洗えるスロップシンクも設置した
フローリングと同じ素材を使ったテレビステーション。間接照明がサイドのエコカラットにあたり、高級感を出している
畳コーナーの照明は幻想的な「月」をイメージ。ゲストからも大好評!

ブラックの外観とナチュラル&モダンなLDKが特徴のM邸。『いろはこ』ショールームの“いいとこ取り”も含め、ローコストとは思えない上質な空間に仕上がった。駐車場確保のため十分な庭がとれなかったが、2階に広いインナーバルコニーを採用しBBQやプールを楽しめる形に。「予算内でやりたいことがすべて叶えられたのは『いろはこ』さんだからこそ」。こう話す夫婦の笑顔は、高い満足感で満たされていた。

資料・カタログをもらう無料 オンライン相談・来店予約
お届けするカタログ・資料の内容
会社パンフレット&施工事例集 いろはこの家づくりがわかる会社パンフレットと、実際にいろはこが建築したステキなお家の施工事例カタログを郵送いたします♪
資料・カタログをもらう
送付資料

住宅性能

  • 耐震性

    耐震等級3相当

  • 通風・換気性

    換気システム 第三種換気

  • 遮音性

    ドア・サッシ

間取り

間取りタイプ
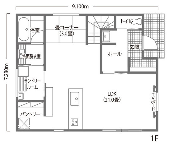
3LDK / 2階建
(広々インナーバルコニー)
  • 1階
    irohaco(アヴァンス) 間取りもコストも妥協なし!無理なく自由設計&高品質の家を実現 1階
  • 2階
    irohaco(アヴァンス) 間取りもコストも妥協なし!無理なく自由設計&高品質の家を実現 2階

スタッフからのコメント

とてもセンスのいいご夫婦で、細かい部分に至るまでこだわりました。弊社の自由設計と性能の高さを評価していただき、ご期待に応えることができました。もうすぐ新しいご家族も増え、ますます賑やかになりそうですね!

物件情報

本体価格 2500万〜2999万 ※金額は購入当時のものです
設計者名 irohaco(アヴァンス)
施工社名 irohaco(アヴァンス)
敷地面積 166.26㎡ [50.29坪]
延床面積 123.38㎡ [37.32坪](1階 63.76㎡、2階 59.62㎡)
構造・工法 木造軸組工法
竣工 2023年2月
施工期間 5か月
外部仕上げ(屋根) ガルバリウム鋼板
外部仕上げ(外壁) サイディング(KMEW 光セラ18mm)
内部仕上げ(床) フローリング
内部仕上げ(内壁) クロス、エコカラット、名古屋モザイクタイル
内部仕上げ(天井) クロス
内部仕上げ(断熱材) 高性能グラスウール
使用メーカー(バス) Takara standard
使用メーカー(トイレ) TOTO
使用メーカー(キッチン) TOTO
使用メーカー(窓・サッシ) YKK APW330 オール樹脂サッシ
資料・カタログをもらう無料 オンライン相談・来店予約
お届けするカタログ・資料の内容
会社パンフレット&施工事例集 いろはこの家づくりがわかる会社パンフレットと、実際にいろはこが建築したステキなお家の施工事例カタログを郵送いたします♪
資料・カタログをもらう
送付資料

その他の新築施工例 ({{max}}件)

irohaco(アヴァンス)

驚異のコスパで建てる完全自由設計の家「irohaco(いろはこ)」
  • 本社所在地 静岡県駿東郡清水町堂庭241-22
  • 施工対応エリア 伊豆全域~藤枝(その他は応相談)
  • 電話番号 050-5268-8286
  • ジャンル 新築、 リフォーム、 土地相談

お客さまの声

お客さまの写真

設計の自由度の高さとコストパフォーマンス、そしてスタッフのみなさんが親身になって寄り添ってくれたことです。今までは休日のたびに出かけていましたが、今は家の居心地が良すぎて、あまり外出しなくなりました(笑)。

新築したきっかけ

賃貸アパートに住んでいましたが、2人目の子どもを授かったのを機に、新築しようと決めました。

ロード中