閉じる

日本住建

バイクを眺めながら暮らすビルトインガレージのある家

F邸 | 物件エリア:西尾市

日本住建【趣味、ガレージ、インテリア】
本体価格(総施工費)

2,000~2,499万円

※金額は購入当時のものです

趣味が暮らしの一部になる家なら、毎日ワクワクしながら過ごせるに違いない。そんな贅沢な住まいを実現したのがFさんだ。ご主人自慢のバイクをリビングから眺めながら暮らせるよう、ビルトインガレージのある家を叶えた。ご主人の希望を通した分、間取りとインテリアは奥さまの好きなようにさせてもらったそう。LDKはナチュラルテイストにコーディネートし、大好きなウイリアムモリスのクロスを玄関、サニタリー、趣味部屋に使ったことで、新しいのに懐かしさを感じさせる空間に仕上がった。また、回遊しやすい動線や機能的なランドリールームが共働き夫婦の家事時間短縮につながった。さらに、『日本住建』が得意とする高い断熱・気密性能により家中の温度が均一になるため、少ないエネルギーで夏も冬も快適に過ごせる。「デザインも性能も予算内で両立させることができました」と、その満面の笑顔が満足度の高さを物語っている。

ナチュラル 和モダン・和 木の家

間取り 3LDK / 2階建
ビルトインガレージ、ガレージと直結する玄関、ガレージが見えるリビング、ご主人の趣味部屋、家事楽を叶える回遊式の動線

構造・工法 木造軸組工法

敷地面積 232.09㎡[70.21坪]

延床面積 【140.78㎡[42.60坪](1階 87.78㎡、2階 53.00㎡)】

竣工 2023年10月

施工期間 6か月

屋根

外壁 サイディング

突板フロア

内壁 クロス

天井 クロス

断熱材 パーフェクトバリア

バス TOTO

トイレ TOTO

キッチン LIXIL

窓・サッシ LIXIL

設備・施設・その他 HEAT20 G2グレード、耐震等級3(許容応力度計算)、制震ダンパー(ミライエ)、第一種換気システム、ビルトインガレージ

施工社名 日本住建

施工例のご紹介

ご主人の夢を叶えたビルトインガレージは16畳分の広さ。車用とバイク・自転車用に出口を二つ設けた。BMWのヴィンテージバイクが美しく映えるよう照明の配置にも工夫を凝らした

ご主人の夢を叶えたビルトインガレージは16畳分の広さ。車用とバイク・自転車用に出口を二つ設けた。BMWのヴィンテージバイクが美しく映えるよう照明の配置にも工夫を凝らした

外壁はベース部分にネイビー色、玄関の屋根部分にホワイトのアクセントカラーを組み合わせることでコントラストが美しい外観に

外壁はベース部分にネイビー色、玄関の屋根部分にホワイトのアクセントカラーを組み合わせることでコントラストが美しい外観に

20畳のLDK。大開口の透明ガラス越しにガレージ内のバイクがライトアップされ、リビングから眺められるようになっている

20畳のLDK。大開口の透明ガラス越しにガレージ内のバイクがライトアップされ、リビングから眺められるようになっている

エコカラットとウイリアムモリスのアクセントクロスがクラシカルで上質な空間を演出する玄関ホール。雨に濡れずにガレージへアクセスできる動線は生活のしやすさにつながる

エコカラットとウイリアムモリスのアクセントクロスがクラシカルで上質な空間を演出する玄関ホール。雨に濡れずにガレージへアクセスできる動線は生活のしやすさにつながる

ご主人も料理好きなので、ワークスペースを広めに確保したキッチン。フローリングの色と質感に合わせて面材を選んだ

ご主人も料理好きなので、ワークスペースを広めに確保したキッチン。フローリングの色と質感に合わせて面材を選んだ

ご主人が水墨画を描いたり、トレーニングをしたりする趣味部屋。黒い大理石調の床と天井のウイリアムモリスのクロスでエキゾチックな空間にデザイン

ご主人が水墨画を描いたり、トレーニングをしたりする趣味部屋。黒い大理石調の床と天井のウイリアムモリスのクロスでエキゾチックな空間にデザイン

洗面化粧台の横に設けたニッチ収納は、普段使いの生活必需品が収まる便利な場所。ここにもモリスの壁紙を貼って華やかに仕上げた

洗面化粧台の横に設けたニッチ収納は、普段使いの生活必需品が収まる便利な場所。ここにもモリスの壁紙を貼って華やかに仕上げた

ランドリースペースから洗面室、浴室、キッチンにつながる回遊動線をつくり、家事がスムーズに行えるように工夫した

ランドリースペースから洗面室、浴室、キッチンにつながる回遊動線をつくり、家事がスムーズに行えるように工夫した

木のぬくもりに満ちたキッチン

木のぬくもりに満ちたキッチン

木目調のクロスを背面と天井に設けたトイレ

木目調のクロスを背面と天井に設けたトイレ

和モダンスタイルの外観デザイン

和モダンスタイルの外観デザイン

ギャラリーのような美しい玄関ホール

ギャラリーのような美しい玄関ホール

チャコールグレーで統一した主寝室

チャコールグレーで統一した主寝室

ステージのようなバイクガレージ

ステージのようなバイクガレージ

住宅性能

耐久性 耐風等級2取得

耐震性 耐震等級3取得、許容応力度計算実施

省エネルギー性 UA値(0.54)、長期優良住宅認定取得

通風・換気性 換気システム 第三種換気

劣化対策 劣化対策等級3取得、長期優良住宅認定取得

遮音性 ドア・サッシ

防犯性 シャッター

間取り

3LDK / 2階建(ビルトインガレージ、ガレージと直結する玄関、ガレージが見えるリビング、ご主人の趣味部屋、家事楽を叶える回遊式の動線)

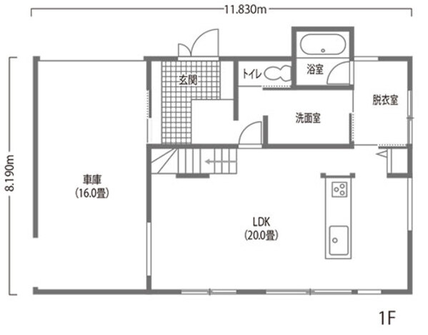
1階

1階

リビングから見えるビルトインガレージは玄関とも繋がって利用しやすい。共働き夫婦の時短を叶える回遊式の家事動線を実現。窓を多めにとり、明るいLDKに仕上げた

2階

2階

子ども部屋が2つとウォークインクローゼット付きの主寝室。ご主人が水墨画を描いたり、トレーニングをしたりするための趣味部屋も確保。趣味部屋の天井にウィリアムモリスのクロスを貼って、空間に彩りを添えた

お客様の声

お客様の声

Fさま

実際に建ててみた感想

かっこいいガレージハウスを建てたかったので、設計の自由度が高くて、センスが良くて、なおかつ断熱と気密性能の高さで定評のある『日本住建』さんを選びました。夫婦共働きで毎日忙しいので、家事、特に洗濯に時間をかけずに済むような間取りと動線を考えてもらいました。私がバイクガレージと趣味部屋を確保したので、インテリアは妻の好きなようにデザインしてもらいました。毎回の打合せが本当に楽しくて、引渡しの日は嬉しい反面、寂しくもありました。住み心地は最高です!

家を建てたきっかけ

大切なバイクを安心して格納できるビルトインガレージのある家を建てたいと望んでいました。住んでいたアパートが手狭になってきた頃、子どもを授かったのでそのタイミングで土地探しから始めました。

日本住建からのコメント

インテリアコーディネーター 近藤 由美子さん

インテリアコーディネーター 近藤 由美子さん

ご主人の趣味であるバイクを眺めながら暮らせるインナーガレージハウスです。クラシカルでどこかノスタルジーも感じるインテリアも素敵。ご夫婦それぞれの好みが違うのですが、お互いのやりたいことを尊重しあった結果、満足度の高い家に仕上がりました。

会社概要

会社名
日本住建
施工対応エリア
愛知県全域
参考坪単価
65万円〜85万円
会社所在地
愛知県安城市城南町1-1-1
電話番号
050-5268-8442
このページを共有する
LINEで送る

閲覧履歴

閲覧した工務店はまだありません

来場キャンペーン

AmazonGiftCard
住宅イベント
住宅会社
モデルハウス

いずれかに来場・来店すると

最大5,000円もらえます

プレゼント方法
STEP1 1回の来場・来店で1,000
STEP2 2回の来場・来店で2,000
STEP3 3回の来場・来店で5,000

くふうイエタテ会員登録(無料)のうえ、Webイエタテでご予約し、住宅イベントやモデルハウス、住宅会社に来場・来店するとAmazonギフト券最大5,000円分(Eメールタイプ)を 先着200名様にプレゼント!※2026年5月31日までのご来場が対象となります

応募条件

このキャンペーンは注文住宅の購入やリノベーションの施工を検討している方を対象にしております。対象外の方のご応募はご遠慮ください。当社が不正な応募と判断した場合、 住宅会社への迷惑となる行為が確認された場合にはご応募が無効となり、以降のキャンペーン参加をお断りさせていただく場合がございます。あらかじめご了承ください。

本キャンペーンはWEBくふうイエタテ会員(無料)限定のキャンペーンとなります。必ずログインしてからご予約ください。非会員や電話予約につきましては対象外となります。

しずおかオンラインおよび、くふう住まい/くふうイエタテ主催のキャンペーンに過去10回以上ご参加されている方は応募対象外とさせていただきます。

1世帯につき1IDのみが応募対象となります。また、参加回数は同一IDからの参加についてのみカウントされます。 同一世帯の方が複数IDでご予約された場合も、応募条件を満たした1IDのみが応募有効となり、それ以外のIDでのご予約・ご参加については対象外となります。 なお、同一世帯の複数のIDから予約されたイベント・モデルハウス・住宅会社につきましては合算はできかねますのでご注意ください。4回目以降の予約にはプレゼントはつきません。

ご家族複数名での見学や同じメールアドレスの利用、同じご住所にお住まい、もしくは同居をご予定している場合、本企画では、それぞれを同一世帯1組様とみなします。 また、その他入力いただいた情報により、編集部が同一世帯とみなす場合がございます。

予約後、キャンセルされた場合は無効となります。イベントへの来場が確認できなかった場合や、スタッフから十分な説明を受けず途中退場した場合など、 イベントへご参加いただいたとの判断ができかねる場合、 利用者アンケートの回答が期限内に無い場合も、無効とさせていただきます。

ギフト券はキャンペーン終了後おおよそ1ヶ月以内に順次発送の予定です。送付状況など、発送に関する個別のお問合せにつきましてはお答えできかねますので、 あらかじめご了承ください。また、ギフト券はマイページのプロフィール欄にご登録されているメールアドレスに届きます。 入力されたメールアドレスが不明な場合や、何らかの理由で送付不可能である場合、 送付が取り消され、その時点で応募自体が無効となりますのでご注意ください。

メール送付後におきまして、何らかの理由でメールが受信されなかった場合、また、受信後のメール削除や紛失などがあった場合は、 いかなる理由によりましても弊社では責任を負いかねます。ご了承ください。

記載の【キャンペーン対象期間】とは【予約のお申し込みをされた日】を指します。対象期間外に予約のお申し込みをされた場合には、キャンペーン対象外となります。 また、ご来場の有効期間は2026年6月7日までとなりますので、2026年6月8日以降に開催のイベントやモデルハウス見学への予約もキャンペーン対象外となりますので、ご注意ください。

注意事項

※本企画は、日本国内在住で契約者本人が居住するための住宅の購入を検討している一般の方を対象としております。また、契約者が法人の場合は対象外となります。

※[不動産業における景品類の提供の制限に関する公正競争規約]により、各住宅会社で本企画とは別に行っているプレゼント企画の賞品と本キャンペーンの賞品の両方は受け取れない場合がございます。 詳しくはくふうイエタテ編集部にお問合せください。

※携帯電話(スマートフォン以外)・PHSからの応募はできません。またスマートフォンの場合も、一部対応できない機種があります。 応募可能なインターネット接続環境や端末は、お客さまご自身でご用意ください。また、通信料はお客さま負担となります。

※ご家族複数名での見学や同じメールアドレスの利用、同じご住所にお住まい、もしくは同居を予定している場合、本企画では、それぞれを同一世帯1組様とみなします。 なお、入力いただいた情報により、編集部が同一世帯とみなす場合がございます。また、本人以外の方のメールアドレスでの応募、代行での参加手続きは無効といたします。

※未成年もしくは学生の方のみでのモデルハウス見学もしくはイベントへの参加は、キャンペーンの対象外となりますのでご注意ください。

※本企画は、当社の都合により、キャンペーン期間に関係なく、事情によりキャンペーンを中止する場合がございます。 あらかじめご了承ください。当社は、本企画の変更・終了等により生じたいかなる損害等についても、一切責任を負うものではありません。

※ご入力いただきましたメールアドレスに不備がある場合、当選を無効とさせていただきます。