静岡県西部エリア
他のエリア
工務店・新築・一戸建て・注文住宅・リノベ会社を検索できるくふうイエタテ
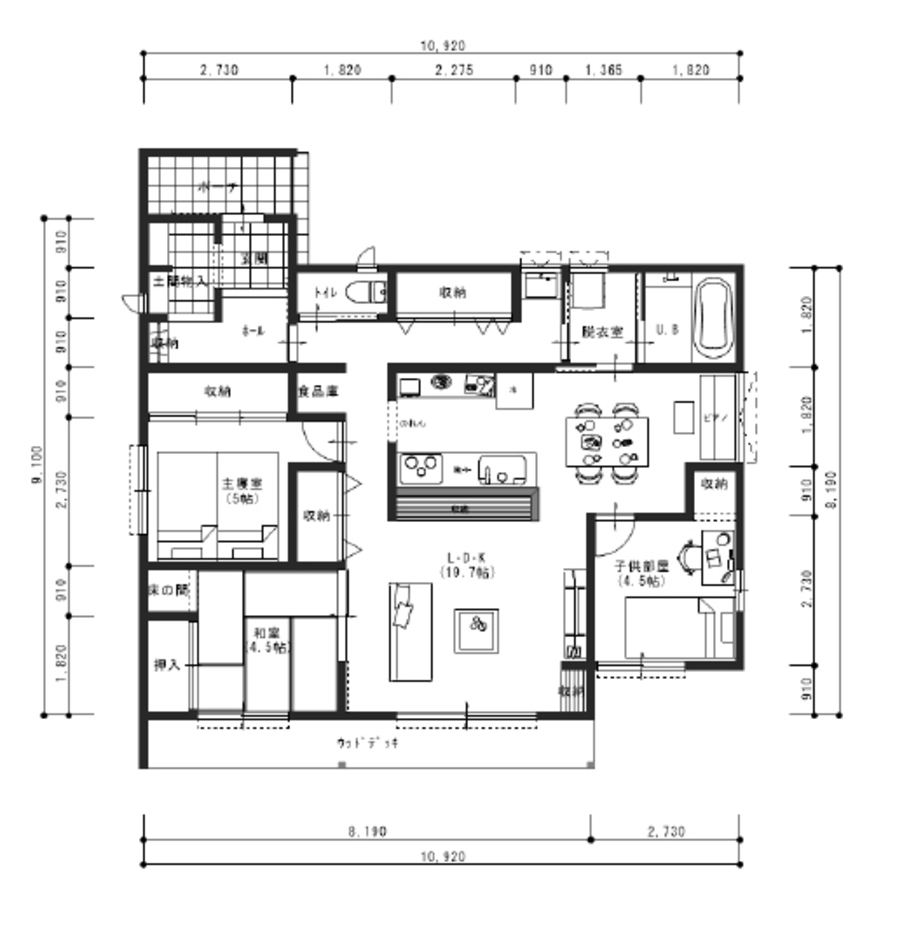
家族構成:3人家族(夫・妻・子)
1階
96.89m² (29.3坪)
北玄関を生かした庭とのつながり
北玄関となる事で南面のスペースをプライベートな庭として使えます。 気兼ねなく使える庭は家とのつながりも意識しやすいスペースとなり明るさも確保できます。
専用のピアノスペース
ピアノスペースを最初から計画する事で置き場に困らない間取りになります。 ピアノを置かない場合も収納スペースとして使う事ができます。
別々の洗面脱衣室
洗面台と脱衣室を別にする事でそれぞれの用途の使い勝手が良くなります。 さらに収納を近くに配置して洋服をしまう事で朝の身支度などの動線が良くなります。
施主からの希望・要望
敷地の特性で北玄関にする事で、常にいるリビングを南面に配置し明るさを重視した設計になっており、自然光がたくさん入り込むことで室内は明るい雰囲気が広がります。また、庭とのつながりも考慮されており、外との一体感を楽しむことができます。さらに、豊富な収納スペースがあり、平屋の30坪でも整理整頓がしやすい環境が提供されます。また、ピアノスペースを確保する事で置き場に困る事がありません。この間取りは施主の要望を満たし、明るさと自然との触れ合い、そして整理整頓のしやすさを享受できるライフスタイルを可能にします。
| 階数 平屋 | 延床面積 96.89m² [29.3坪] | 敷地面積 250m² [75.62坪] |
| 間取り 3LDK |
1階
96.89m² [29.3坪]
|
施工面積 100.8m² [30.49坪] |
| 家族構成 3人家族(夫・妻・子) | 設計者名 株式会社エフエフ住宅 |
4LDK / 平屋
平屋4LDK。自然光満喫、坪庭との調和が贅沢なライフスタイルを実現
この平屋はお施主様の坪庭のある家にしたい!という第一希望がありました。広々とした設計で、自然光がたっぷりと注ぎ込まれ、室内は暖かな光に包まれます。さらには、坪庭の活用法。平屋で暗くなりがちな中廊下を坪庭で明るく。玄関に入った時の坪庭の景色も他ではないオリジナルな家になります。また、リビングだけではなく個室からの庭のアクセスも考えました。自然と調和し、贅沢な時間を過ごすことができます。収納スペースもしっかり考慮されており、整理整頓はもちろん、豊富な収納スペースによって生活の手間を軽減します。この平屋の住まいは、施主の要望をつめこんだ、理想的なライフスタイルを創造します。
4LDK・平屋
延床面積:99.37m² [30.05坪]
2LDK / 平屋
家事を楽に楽しくする、とにかく「楽」をテーマにした23坪!平屋生活
このな2LDK平屋の間取りは、とにかく家事を楽したい!掃除を楽したい!をテーマに快適で効率的な生活を実現します。家事動線を考慮した設計により洗濯動線、料理動線、を1カ所で完結し廊下をなくす事で掃除もしやすくしました。 4畳のファミリークローゼットスペースが豊富に備えられているため、家族の物を整理整頓しやすくし、心地よい暮らしをサポートします。広々としたリビングエリアは、家族がゆったりとくつろげる場所。23坪の空間を利用した心地よいレイアウトは、家族のライフスタイルに合わせた自由な使い方を可能にします。将来を考え夫婦2人になってもちょうどよい大きさを目指しました。その上、廊下がないことでスペースを有効活用し、広々としたリビングエリアを実現しました。家事の手間を減らし、楽しさと機能性を兼ね備えたこの平屋は、お施主様の理想を叶える一部屋となることでしょう。日々の生活がより快適で、家族の絆が深まる魅力的な平屋の提案です。
2LDK・平屋
延床面積:77.01m² [23.29坪]
3LDK / 平屋
約40坪・庭とのつながりが自然と調和する2世帯住宅の平屋ライフ
この3LDKの平屋は、庭やバルコニーから自然光を取り入れ、室内と外部のつながりを生み出します。二世帯住宅にも柔軟に対応し、将来の変化にも対応可能です。家事を効率的に行える収納や動線、収納・室内干しスペースを兼用した土間スペースが洗濯動線を楽にしてくれます。 和室も備え、施主の快適なライフスタイルを実現します。
3LDK・平屋
延床面積:127.11m² [38.45坪]
二世帯住宅NEW GRACYモデルハウス!
自然素材と全館暖房が体感できる「ひのきの家」モデルハウス公開中
子供をほめてあげたい!3つの習慣が自然と身につく”子供動線”のある家「NEW URBAN BLOCK」モデルハウス公開中