静岡県西部エリア
他のエリア
工務店・新築・一戸建て・注文住宅・リノベ会社を検索できるくふうイエタテ
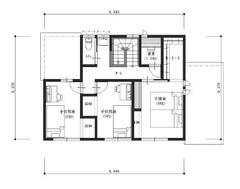
家族構成:4人家族(夫・妻・子供2人)
1階
62.31m² (18.84坪)
2階
48.86m² (14.78坪)
全面南面の日当たりの良いLDK
日当たりの良い南面にLDKを配置しました。 どこに居ても家族の距離感が感じられる心地の良い空間です。LDKと水回りや階段のスペースを区切る事で共用空間と居室空間とのメリハリもつきます。
室内干し、外干し、取り込み、洗濯動線が最短距離
脱衣室から一直線のユーティリティスペース。そのまま室内干しをしておく事も外にすぐに出る事もできます。洗濯物がたためるカウンターがつけれるのでこの部屋で完結できる洗濯動線。
多用途に使える洋室
お子様が小さい時などはリビングと一体で使える洋室。家でお仕事をされる方は仕事スペースや趣味のスペースとしても活用できます。 お子様が巣立ってからは将来の寝室としても利用できます。洋室からも廊下にアクセスできるので寝室として使用する際にトイレなどへの動線も短くなります。
理想的な寝室、子供部屋2部屋の南面配置
どの部屋でも明るい部屋となる南面配置の3部屋。各部屋の間に収納を設ける事で部屋で過ごしている時の物音など軽減する事ができます。
趣味の部屋やリモートワークに使える書斎
ご夫婦それぞれの趣味やリモートワークで集中したい時に使える個室の書斎。 お子様が勉強に集中したい時のこもり部屋としても利用できます。
集中する朝にあると嬉しい2階の洗面台
家族の支度する時間帯がかぶる時は2階の洗面台がとても便利です。 1階が埋まっている時には2階で身支度ができるので時間がない朝のイライラも解消されます。
施主からの希望・要望
2階建ての魅力的な間取り、4LDKが施主の要望を満たします。南面に配置されたLDKは自然光がたくさん差し込み、明るい空間を演出します。家事動線も考慮し、キッチンや洗濯室は効率的に配置されています。また、豊富な収納スペースが整理整頓をサポートし、生活のストレスを軽減します。さらに、室内干しのスペースも確保し、天候に左右されることなく洗濯が行えます。南玄関からの出入りもスムーズで、快適な生活を実現します。施主の要望を叶え、家事を効率的に行える明るく整理しやすい間取りで、理想のライフスタイルを実現しましょう。
| 階数 2階建 | 延床面積 111.17m² [33.62坪] | 敷地面積 218.5m² [66.09坪] |
| 間取り 4LDK |
1階
62.31m² [18.84坪]
2階
48.86m² [14.78坪]
|
施工面積 114.96m² [34.77坪] |
| 家族構成 4人家族(夫・妻・子供2人) | 設計者名 株式会社エフエフ住宅 |
4LDK / 2階建
ファミリークローゼットがある自然光溢れる明るい4LDKの家
この2階建ての4LDK間取りは、施主の要望を余すことなく満たします。豊富な自然光が部屋中に心地よい明るさをもたらし、ファミリークローゼットなどの収納スペースが整理整頓をサポート。家事動線も考慮され、家事が効率的に行える環境を提供します。35坪の広さを生かして、快適で機能的なライフスタイルを実現します。
4LDK・2階建
延床面積:117.59m² [35.57坪]
5LDK / 2階建
モデルハウス
リノベーションで生まれ変わった自在なライフスタイルを満たす5LDKの二世帯住宅
この2階建ての5LDKは、プライバシーを重視しながらも二世帯住宅や将来の変化にも柔軟に対応可能です。広々としたリビングは、家族や友人とくつろぎながら過ごす空間を提供し、さまざまなライフスタイルに合わせて自在な使い方ができます。玄関2つや水回り2つといった配慮も施され、住まいへのニーズを繊細に受け止めた設計となっています。昭和的な二世帯住宅の間取りを現在のライフスタイルに合わせた二世帯住宅にフルリノベーションした住まいです。
5LDK・2階建
(1F:玄関2つ+2LDK+水回り 2F:3LDK+水回り)
延床面積:229.6m² [69.45坪]
3LDK / 2階建
自然光満ちるアメリカンスタイルの3LDK・32坪の家
この2階建ての3LDKは、施主の要望を踏まえ、広々としたリビングでくつろぎながら自然光をたっぷりと取り入れる明るい設計としました。カバードポーチから玄関を通り、庭やバルコニーとの一体感を感じられる空間は、施主のライフスタイルに合わせた家事を楽しむことができる理想的な環境を提供します。32坪の広さに、アメリカンハウスの魅力を取り入れつつ、家族が自然な暮らしを享受できるプライベートな空間を実現しました。
3LDK・2階建
延床面積:105.58m² [31.93坪]
6LDK / 2階建
6LDKのミニキッチンがある二世帯住宅
この2階建ての6LDKの間取りは、二世帯住宅や将来の変化に対応する柔軟性を持ちながら、収納スペースの豊富さが整理整頓をサポートします。リビングは広々としており、ゆったりとくつろぐことができます。施主の要望を満たしながらも、家族全員が快適に過ごせるライフスタイルを実現します。
6LDK・2階建
延床面積:163.55m² [49.47坪]