静岡県西部エリア

工務店・新築・一戸建て・注文住宅・リノベ会社を検索できるくふうイエタテ

注文住宅、リフォーム住宅会社を探す

住宅会社 住宅イベント モデルハウス リフォーム・リノベーション 土地・建売 住まいのプロ 動画 家づくりガイド くふうイエタテカウンター
施工対応エリア
浜松市、湖西市、磐田市、袋井市、森町、掛川市、菊川市
電話番号
050-5268-8481
ジャンル
新築 、 リフォーム 、 土地相談
資料請求無料 検討会社に追加する

『遠鉄ホーム』スタッフが建てたホテルライクなこだわりの自宅

お気入り
クリップ
S邸  物件エリア:浜松市中央区  家族構成:夫婦+子ども
遠州鉄道 遠鉄ホーム【デザイン住宅、狭小住宅、インテリア】吹き抜けのある天井や間接照明、リビング階段が空間を広く演出。クリの無垢材の床にはミルキー塗装を施し、優しい肌触りとモノトーンの内装をコラボレートさせた。階段下やキッチン背面の収納が豊富で、無駄なものを見せず毎日すっきりと過ごせている
遠州鉄道 遠鉄ホーム【デザイン住宅、狭小住宅、インテリア】海外輸入の「ウィリアム・モリス」のクロスをあしらったリビング。照明も海外製
遠州鉄道 遠鉄ホーム【デザイン住宅、狭小住宅、インテリア】階段下収納はたっぷり。カーテンを下ろせば中をすべて隠せる。窓の外は洗濯物を干すスペース
遠州鉄道 遠鉄ホーム【デザイン住宅、狭小住宅、インテリア】LDKの主役は天然水晶を使った高級人造石のアイランドキッチン。生活感を減らすため水切りカゴはなし。食器は洗うたびにふきんの上で乾かし、すぐに収納
遠州鉄道 遠鉄ホーム【デザイン住宅、狭小住宅、インテリア】ホテルのパウダールームのような洗面所。奥には脱衣室があり、室内干し空間としても活用できる。来客があっても、脱衣所の扉を閉めるだけで洗濯物を隠せるから便利。洗面の向かいにはファミリークローゼットを用意
遠州鉄道 遠鉄ホーム【デザイン住宅、狭小住宅、インテリア】2階ホール部分には書棚を造作。ここに椅子を置いて、ゆっくりくつろげる場所にすることがご主人の目標だ
遠州鉄道 遠鉄ホーム【デザイン住宅、狭小住宅、インテリア】「これからはアウトドアも楽しみたい」と大容量の土間収納付き玄関に仕上げた
遠州鉄道 遠鉄ホーム【デザイン住宅、狭小住宅、インテリア】実家の隣に寄り添うように建てた新居
遠州鉄道 遠鉄ホーム【デザイン住宅、狭小住宅、インテリア】リビング階段の吹抜けが開放感をもたらす。天井を飾る海外輸入の照明や、淡いグレーのクロスにセンスが光る
遠州鉄道 遠鉄ホーム【デザイン住宅、狭小住宅、インテリア】アイランドキッチンからダイニングテーブル、広々としたリビングまでが一直線に伸びるレイアウト
吹き抜けのある天井や間接照明、リビング階段が空間を広く演出。クリの無垢材の床にはミルキー塗装を施し、優しい肌触りとモノトーンの内装をコラボレートさせた。階段下やキッチン背面の収納が豊富で、無駄なものを見せず毎日すっきりと過ごせている
海外輸入の「ウィリアム・モリス」のクロスをあしらったリビング。照明も海外製
階段下収納はたっぷり。カーテンを下ろせば中をすべて隠せる。窓の外は洗濯物を干すスペース
LDKの主役は天然水晶を使った高級人造石のアイランドキッチン。生活感を減らすため水切りカゴはなし。食器は洗うたびにふきんの上で乾かし、すぐに収納
ホテルのパウダールームのような洗面所。奥には脱衣室があり、室内干し空間としても活用できる。来客があっても、脱衣所の扉を閉めるだけで洗濯物を隠せるから便利。洗面の向かいにはファミリークローゼットを用意
2階ホール部分には書棚を造作。ここに椅子を置いて、ゆっくりくつろげる場所にすることがご主人の目標だ
「これからはアウトドアも楽しみたい」と大容量の土間収納付き玄関に仕上げた
実家の隣に寄り添うように建てた新居
リビング階段の吹抜けが開放感をもたらす。天井を飾る海外輸入の照明や、淡いグレーのクロスにセンスが光る
アイランドキッチンからダイニングテーブル、広々としたリビングまでが一直線に伸びるレイアウト

Sさん夫婦はともに『遠鉄ホーム』のスタッフ。ご主人は営業、奥さまが設計士で、自ら手がけた新居は理想を叶える工夫が光る。間口が狭く南北に細長い敷地を活かすため、廊下を省き、リビング階段と吹き抜けを用意してLDKを広く設計。収納や脱衣所を含むプライベート空間とリビングを分けて、オンオフを線引きしている。輸入クロスなどを使ってコーディネートしたLDKは、10人以上が集まっても余裕の広さで、子育ても暮らしものびのび楽しんでいる。

資料・カタログをもらう無料 オンライン相談・来店予約
お届けするカタログ・資料の内容
遠鉄ホームの家づくり・注文住宅・分譲(建売)住宅カタログ 注文住宅の商品別カタログやプラン集、ご希望の土地や分譲(建売)住宅の資料をお届けいたします。
土地や分譲(建売)住宅をお探しのエリアや、立地・ご予算などの条件がございましたら、資料請求フォーム下部の「その他、ご意見・ご要望等」の欄にご記入ください。
資料・カタログをもらう
送付資料

間取り

間取りタイプ
3LDK / 2階建
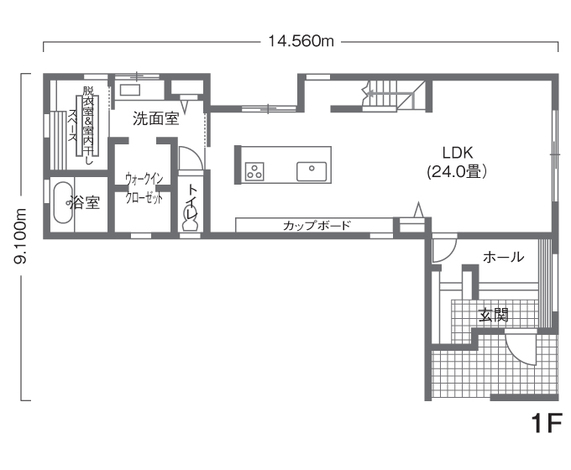
  • 1F
    遠州鉄道 遠鉄ホーム 『遠鉄ホーム』スタッフが建てたホテルライクなこだわりの自宅 1F

    洗面所と室内干しを兼ねた脱衣所を分けたことで、他の家族の入浴中も洗面台を利用できる。来客時も、脱衣所のドアを閉めるとプライベート空間を隠せるから便利! 晴れた日はキッチン前のテラスに洗濯物を干す。屋根があるため安心で、洗濯機からの動線も短く時短に役立つ。

  • 2F
    遠州鉄道 遠鉄ホーム 『遠鉄ホーム』スタッフが建てたホテルライクなこだわりの自宅 2F

    家の東側に高い建物がなく、階段部分からの採光を計画。大窓と吹き抜けの効果で1階リビングに光が注がれ、室内はいつも明るい。

スタッフ写真

スタッフからのコメント

今回ご紹介するのは、当社スタッフが自ら手がけたマイホームです。間取りや内装へのこだわりをカタチにできるのが注文住宅の醍醐味です。熱い思いを胸に、お客さまの理想の家づくりをお手伝いをさせていただきます。

浜松住宅プラザ 所長 鈴木 基広さん

物件情報

本体価格 2000万〜2499万 ※金額は購入当時のものです
設計者名 遠鉄ホーム
施工社名 遠鉄ホーム
竣工 2020年7月
施工期間 4か月
外部仕上げ(屋根) スレート板葺
外部仕上げ(外壁) サイディング
内部仕上げ(床) 無垢クリ材
内部仕上げ(内壁) クロス貼り
内部仕上げ(天井) クロス貼り
設備・施設・その他 長期優良住宅
資料・カタログをもらう無料 オンライン相談・来店予約
お届けするカタログ・資料の内容
遠鉄ホームの家づくり・注文住宅・分譲(建売)住宅カタログ 注文住宅の商品別カタログやプラン集、ご希望の土地や分譲(建売)住宅の資料をお届けいたします。
土地や分譲(建売)住宅をお探しのエリアや、立地・ご予算などの条件がございましたら、資料請求フォーム下部の「その他、ご意見・ご要望等」の欄にご記入ください。
資料・カタログをもらう
送付資料

その他の新築施工例 ({{max}}件)

遠州鉄道 遠鉄ホーム

ずっと好きな家。好きな街。
  • 本社所在地 静岡県浜松市中央区上島1-27-46遠鉄ホーム浜松住宅プラザ
  • 施工対応エリア 浜松市、湖西市、磐田市、袋井市、森町、掛川市、菊川市
  • 電話番号 050-5268-8481
  • ジャンル 新築、 リフォーム、 土地相談

お客さまの声

お客さまの写真

設計士の妻が「自分で自分の家を設計したい」という夢を持っていたため、自社での建築を決意。窓の位置を吟味したおかげで明るく快適。エアコンの効きも良く、設計と性能の良さを実感しています。

新築したきっかけ

結婚後、実家の敷地の一部に新築することに。第一子の妊娠中に設計を始め、産後すぐ完成しました。

ロード中