静岡県中部エリア
他のエリア
工務店・新築・一戸建て・注文住宅・リノベ会社を検索できるくふうイエタテ
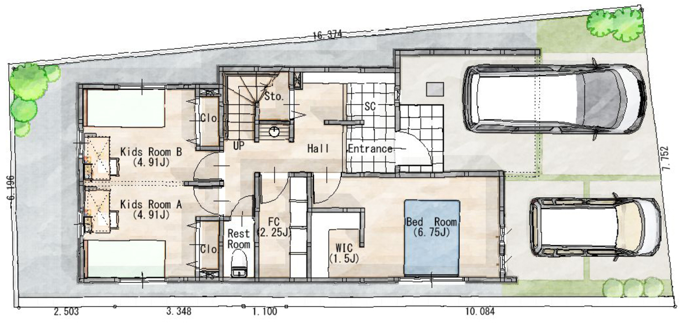
1階
62.1m² (18.78坪)
2階
47.61m² (14.4坪)
ロフト・屋上
4.14m² (1.25坪)
玄関手洗い
玄関入ってすぐに手洗いがあります。ウイルスや汚れを家の中に持ち込みません。
ファミリークローゼット
家族の衣類をまとめて収納できるファミリークローゼット。
子供部屋
将来的に2つに仕切ることができる子供部屋です。
デッキスペース
LDKからフラットにつながるデッキスペース。壁を立ち上げ外部からの視線をシャットアウトしており、おうちでアウトドア気分を楽しめる。
吹き抜けリビング
ロフトへとつながる吹き抜けは、縦方向へのつながりを感じる。大きい窓からは明るい陽が差し込む。
ランドリースペース(快乾空間)
洗濯物を「洗う・干す・畳む」がひとつの空間で完結する、三和建設のランドリースペース(快乾空間)。
ロフト
吹き抜けリビングとつながる。
屋上バルコニー
洗濯物の外干しはもちろん、おうちキャンプ、植物を育てる、夏は子供プールなど、いろいろな楽しみ方ができる。
施主からの希望・要望
LDKからフラットにつながるデッキスペースは、壁を立ち上げ外部からの視線をシャットアウトしています。終日カーテンなしで過ごせます。
| 階数 2階建 | 延床面積 113.85m² [34.43坪] | 敷地面積 116.22m² [35.15坪] |
| 間取り 3LDK (+ファミリークローゼット+シューズクローク+WIC+ロフト) |
1階
62.1m² [18.78坪]
2階
47.61m² [14.4坪]
ロフト・屋上
4.14m² [1.25坪]
|
施工面積 153.57m² [46.45坪] |
| 家族構成 --- | 設計者名 三和建設株式会社 |
3LDK / 2階建
収納充実。ママ目線の魅力が詰まった家事しやすい3LDK
2階建ての3LDK。収納が充実し、ママ目線の家事導線が効率的に考えられた間取りです。 リビング・玄関・ランドリー・他、収納スペースが豊富に取り入れられており、整理整頓がしやすくなっています。 キッチンと洗面所は近接して配置され、料理から洗濯までの移動がスムーズです。 さらに、家事の負担を軽減するために、お掃除ロボットの利用を想定した工夫も盛り込まれています。①1階と2階それぞれにお掃除ロボットの基地(収納下部スペース)を設置②部屋同士の扉はすべて引き戸に③お掃除ロボットがお掃除しやすい回遊導線を確保。 ママが嬉しい暮らしやすさ満載の間取り。家事を効率的に行いながらリラックスできる空間を実現する魅力的な間取りです。
3LDK・2階建
(+ファミリークローゼット+パントリー)
延床面積:110.95m² [33.56坪]
3LDK / 2階建
造作家具が輝く空間。リビングのヌックスペースからの景色が最高の家
リビングのヌックスペースをはじめ、書斎やスタディコーナー、寝室のベッドなど、建築のプロが手掛けた造作家具が暮らしを彩るお家の間取りです。 広々としたリビングエリアでは家族や友人との賑やかな時間を過ごしながら、ゆったりとリラックスすることができます。 また、そのリビングの一角に設けられたヌックスペースから、美しい景色を最大限に楽しめるように厳密に設計しました。書斎も完備しており、仕事や勉強に集中することができます。 機能美と空間美を兼ね備えたこの間取りは、お施主様のライフスタイルを最大限に満たすためにデザインされました。
3LDK・2階建
(+ヌック+ファミリークローゼット+スタディコーナー)
延床面積:120.06m² [36.31坪]
3LDK / 2階建
玄関を通らずドッグランに直接アクセス可能
愛犬家住宅コーディネーターの資格を持つスタッフが監修した愛犬がストレスなく過ごせて、人も楽しく快適に暮らせる住まいです。庭に出るとドッグランがあり、愛犬がいつでも運動できます。
3LDK・2階建
延床面積:92.73m² [28.05坪]
3LDK / 2階建
段差でゾーニング。暮らしを彩る造作空間
約9帖のリビングは、ダイニングと離れていることによりキッチンからの生活音が伝わらないよう設計されています。リビングのソファに座るとダイニングやバルコニーの方に視線が向き、家族の気配を感じながらも、落ち着いた時間を過ごせるようになっています。
3LDK・2階建
(サニタリールーム+屋上+ロフト+ファミクロ+SC)
延床面積:134.97m² [40.82坪]
【平屋】ゆったりと時を刻む"旅館風"平屋|清水区南岡町
【Catsリノベキャンペーン中】|清水区渋川S-BOX
【見学予約受付中】古庄駅3分/Newプレゼンハウス完成披露