閉じる
一戸建て リフォーム・リノベーション

和の知恵を生かして古民家を大改修 緑に包まれた「人が集う家」

リノベ事例_メイン写真
リノベ事例画像1
リノベ事例画像2
リノベ事例画像3
リノベ事例画像4
リノベ事例画像5
リノベ事例画像6
リノベ事例画像7
リノベ事例画像8
リノベ事例画像9
リノベ事例画像10
リノベ事例画像11
リノベ事例画像12
リノベ事例画像13
リノベ事例画像14
リノベ事例画像15
リノベ事例画像16
リノベ事例画像17
リノベ事例画像18
リノベ事例画像19
リノベ事例画像20
リノベ事例イメージ
リノベ事例イメージ1
リノベ事例イメージ2
リノベ事例イメージ3
リノベ事例イメージ4
リノベ事例イメージ5
リノベ事例イメージ6
リノベ事例イメージ7
リノベ事例イメージ8
リノベ事例イメージ9
リノベ事例イメージ10
リノベ事例イメージ11
リノベ事例イメージ12
リノベ事例イメージ13
リノベ事例イメージ14
リノベ事例イメージ15
リノベ事例イメージ16
リノベ事例イメージ17
リノベ事例イメージ18
リノベ事例イメージ19
リノベ事例イメージ20
リノベーション価格
10001499万円
間取り
6DK
※リノベーション当時の価格
階建て 平屋
築年数 120年
所在地 静岡県静岡市葵区
家族構成 夫婦 (二人暮らし)
施工期間 3ヶ月
延床面積 114.3m² [34.57坪]
構造・工法 木造軸組工法
設計社名 櫻 工務店
施工社名 櫻 工務店
施工期間 3ヶ月
竣工 2021年10月
施工箇所 ダイニング、キッチン、浴室・バス・ユニットバス、トイレ、洗面所・脱衣所、寝室、和室、玄関、断熱工事、耐震工事、その他
来場キャンペーン

住宅会社で相談された先着200名様に

最大5,000円分のAmazonギフト券がもらえます

送付内容:会社パンフレット

このリノベーションについて

山を背負う立地に佇む平屋。その広縁でなごむのは、明治時代に建てられたこの建物を5代目として住み継ぐUさん夫妻だ。趣のある日本家屋は老朽化が進み、ここ数年は餅つきなどの行事で奥さまの両親や親戚が集まる場としてのみ使われていたという。リノベーションの依頼先で悩んでいたUさん夫妻は、イエタテの実例記事を見て釘付けになった『櫻 工務店』の櫻井充さんに相談。西側の4部屋は開かれたスペースとして残しつつ、水回りのある東側を快適な住空間へと大改修することに。床や壁などは構造からやり直し、耐震補強や断熱工事も。念願だった「1坪サイズの浴室」は、構造上抜きにくい柱が課題だったが、大梁を入れることで叶った。山側に向いていた壁付けキッチンは、櫻井さんの「掃き出し窓にすれば、明るく抜けがとれるよ」との提案で配置を変更。裏山の緑を眺めながら食事を楽しめるようになり「今までこの風景を知らなかった」と喜びの声をあげる奥さま。古い建物に繊細な組子の建具が調和した、風流な住まいに生まれ変わった。

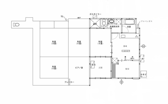
間取り図

リノベーション前 6DK
リノベーション前の間取り図
リノベーション後 6DK
リノベーション後の間取り図

主な生活空間だけを今の暮らしに合った使いやすい間取りにしたいとのご要望たっだため、キッチン・バス・トイレ・寝室を明るく居心地の良い空間になるよう変更した

キッチン

リノベーション前
リノベーション前の写真
リノベーション後
リノベーション後の写真

工事前のキッチンは窓が小さくキッチン本体でふさがっていたため、全体的に暗い印象の空間となっていたが、掃き出し窓に変えて山の緑が眺められる明るい食の場にさま変わりした。

外観

リノベーション前
リノベーション前の写真
リノベーション後
リノベーション後の写真

お施主様が思い出の旅行で修善寺に行った際に見た旅館のような手摺をつけたいとのご要望だったため、無垢の木で手摺を造作した

和室

リノベーション前
リノベーション前の写真
リノベーション後
リノベーション後の写真

職人手造りの組子建具で格式の高い雰囲気を高める

寝室

リノベーション前
リノベーション前の写真
リノベーション後
リノベーション後の写真

畳に布団を敷いて寝られる寝室。畳の下はたっぷり収納できる

バスルーム

リノベーション前
リノベーション前の写真
リノベーション後
リノベーション後の写真

お施主様念願の「1坪サイズの浴室」。寒くて冷たいバスルームを暖かく快適な空間に

ファミリー 1000万円台 一戸建て 古民家改修 家の老朽化 耐震補強 断熱 平屋 和モダン・和 古民家 木の家 純和風

新しくした設備・素材・使用メーカー

屋根 瓦葺き
外壁 漆喰塗り
チーク材、畳
内壁 クロス、じゅらく壁
天井 クロス、赤身杉板
断熱材 アクリアネクスト
ヒノキ
バス Takara standard
トイレ TOTO
キッチン Takara standard
照明 Panasonic、施主支給
窓・サッシ YKK ap
来場キャンペーン

住宅会社で相談された先着200名様に

最大5,000円分のAmazonギフト券がもらえます

お客さまの声

施主様の写真

Uさま

家族構成:夫婦 (二人暮らし)

リノベーションしたきっかけ

ここ数年は空き家になっていましたが、将来的にはこの家に住みたいと思っていました。夫に「それなら早いほうがいいんじゃない」と言われたことですね。

この会社に決めた理由

イエタテに載っていた『櫻 工務店』の実例が気に入って。櫻井さんのご自宅もOBのお宅も素敵でした。遊び心もわかってくれそうと思い、依頼しました。

リノベーションでの希望

老朽化した構造や設備などは一新し、住みやすくしてほしい。両親や親戚が集まる和室4部屋は残しつつ、水回りを含め自分たちの居住空間を快適に整えたい。

この会社でリノベーションしてよかったこと

要望を伝えると、櫻井さんが予算を考えながらいろいろと提案してくれたのがよかったです。古い木造建築にレトロな家具が似合う家になりました。

櫻 工務店からのコメント

スタッフ写真

櫻井 充さん

社長取締役・棟梁

構造をやり直し、柱を切って大梁を入れるなど大改修でした。古い建物に合わせた造作を施す作業は、やりがいを感じました。

会社概要

会社名
櫻 工務店
施工対応エリア
静岡~磐田【静岡市、島田市、焼津市、藤枝市、牧之原市、吉田町、川根本町、磐田市、掛川市、袋井市、御前崎市、菊川市、森町】(その他のエリアは応相談)
電話番号
050-5851-7010
参考坪単価
その他
会社所在地
静岡県島田市伊太1300-5
このページを共有する
LINEで送る
トップにもどる
資料請求する この会社に相談する(無料)

来場キャンペーン

AmazonGiftCard
住宅イベント
住宅会社
モデルハウス

いずれかに来場・来店すると

最大5,000円もらえます

プレゼント方法
STEP1 1回の来場・来店で1,000
STEP2 2回の来場・来店で2,000
STEP3 3回の来場・来店で5,000

くふうイエタテ会員登録(無料)のうえ、Webイエタテでご予約し、住宅イベントやモデルハウス、住宅会社に来場・来店するとAmazonギフト券最大5,000円分(Eメールタイプ)を 先着200名様にプレゼント!※2024年12月7日までのご来場が対象となります

応募条件

このキャンペーンは注文住宅の購入やリノベーションの施工を検討している方を対象にしております。対象外の方のご応募はご遠慮ください。当社が不正な応募と判断した場合、 住宅会社への迷惑となる行為が確認された場合にはご応募が無効となり、以降のキャンペーン参加をお断りさせていただく場合がございます。あらかじめご了承ください。

本キャンペーンはWEBくふうイエタテ会員(無料)限定のキャンペーンとなります。必ずログインしてからご予約ください。非会員や電話予約につきましては対象外となります。

しずおかオンラインおよび、くふう住まい/くふうイエタテ主催のキャンペーンに過去10回以上ご参加されている方は応募対象外とさせていただきます。

1世帯につき1IDのみが応募対象となります。また、参加回数は同一IDからの参加についてのみカウントされます。 同一世帯の方が複数IDでご予約された場合も、応募条件を満たした1IDのみが応募有効となり、それ以外のIDでのご予約・ご参加については対象外となります。 なお、同一世帯の複数のIDから予約されたイベント・モデルハウス・住宅会社につきましては合算はできかねますのでご注意ください。4回目以降の予約にはプレゼントはつきません。

ご家族複数名での見学や同じメールアドレスの利用、同じご住所にお住まい、もしくは同居をご予定している場合、本企画では、それぞれを同一世帯1組様とみなします。 また、その他入力いただいた情報により、編集部が同一世帯とみなす場合がございます。

予約後、キャンセルされた場合は無効となります。イベントへの来場が確認できなかった場合や、スタッフから十分な説明を受けず途中退場した場合など、 イベントへご参加いただいたとの判断ができかねる場合、 利用者アンケートの回答が期限内に無い場合も、無効とさせていただきます。

ギフト券はキャンペーン終了後おおよそ1ヶ月以内に順次発送の予定です。送付状況など、発送に関する個別のお問合せにつきましてはお答えできかねますので、 あらかじめご了承ください。また、ギフト券はマイページのプロフィール欄にご登録されているメールアドレスに届きます。 入力されたメールアドレスが不明な場合や、何らかの理由で送付不可能である場合、 送付が取り消され、その時点で応募自体が無効となりますのでご注意ください。

メール送付後におきまして、何らかの理由でメールが受信されなかった場合、また、受信後のメール削除や紛失などがあった場合は、 いかなる理由によりましても弊社では責任を負いかねます。ご了承ください。

記載の【キャンペーン対象期間】とは【予約のお申し込みをされた日】を指します。対象期間外に予約のお申し込みをされた場合には、キャンペーン対象外となります。 また、ご来場の有効期間は2024年12月7日までとなりますので、2024年12月8日以降に開催のイベントやモデルハウス見学への予約もキャンペーン対象外となりますので、ご注意ください。

注意事項

※本企画は、日本国内在住で契約者本人が居住するための住宅の購入を検討している一般の方を対象としております。また、契約者が法人の場合は対象外となります。

※[不動産業における景品類の提供の制限に関する公正競争規約]により、各住宅会社で本企画とは別に行っているプレゼント企画の賞品と本キャンペーンの賞品の両方は受け取れない場合がございます。 詳しくはくふうイエタテ編集部にお問合せください。

※携帯電話(スマートフォン以外)・PHSからの応募はできません。またスマートフォンの場合も、一部対応できない機種があります。 応募可能なインターネット接続環境や端末は、お客さまご自身でご用意ください。また、通信料はお客さま負担となります。

※ご家族複数名での見学や同じメールアドレスの利用、同じご住所にお住まい、もしくは同居を予定している場合、本企画では、それぞれを同一世帯1組様とみなします。 なお、入力いただいた情報により、編集部が同一世帯とみなす場合がございます。また、本人以外の方のメールアドレスでの応募、代行での参加手続きは無効といたします。

※未成年もしくは学生の方のみでのモデルハウス見学もしくはイベントへの参加は、キャンペーンの対象外となりますのでご注意ください。

※本企画は、当社の都合により、キャンペーン期間に関係なく、事情によりキャンペーンを中止する場合がございます。 あらかじめご了承ください。当社は、本企画の変更・終了等により生じたいかなる損害等についても、一切責任を負うものではありません。

※ご入力いただきましたメールアドレスに不備がある場合、当選を無効とさせていただきます。