静岡県中部エリア

工務店・新築・一戸建て・注文住宅・リノベ会社を検索できるくふうイエタテ

注文住宅、リフォーム住宅会社を探す

住宅会社 住宅イベント モデルハウス リフォーム・リノベーション 土地・建売 住まいのプロ 動画 家づくりガイド くふうイエタテカウンター
施工対応エリア
島田~富士宮
電話番号
050-5268-8305
ジャンル
新築 、 リフォーム 、 土地相談
資料請求無料 検討会社に追加する
3LDK | 2階建

漆喰・天然木のぬくもりが家族をつつみこむ家

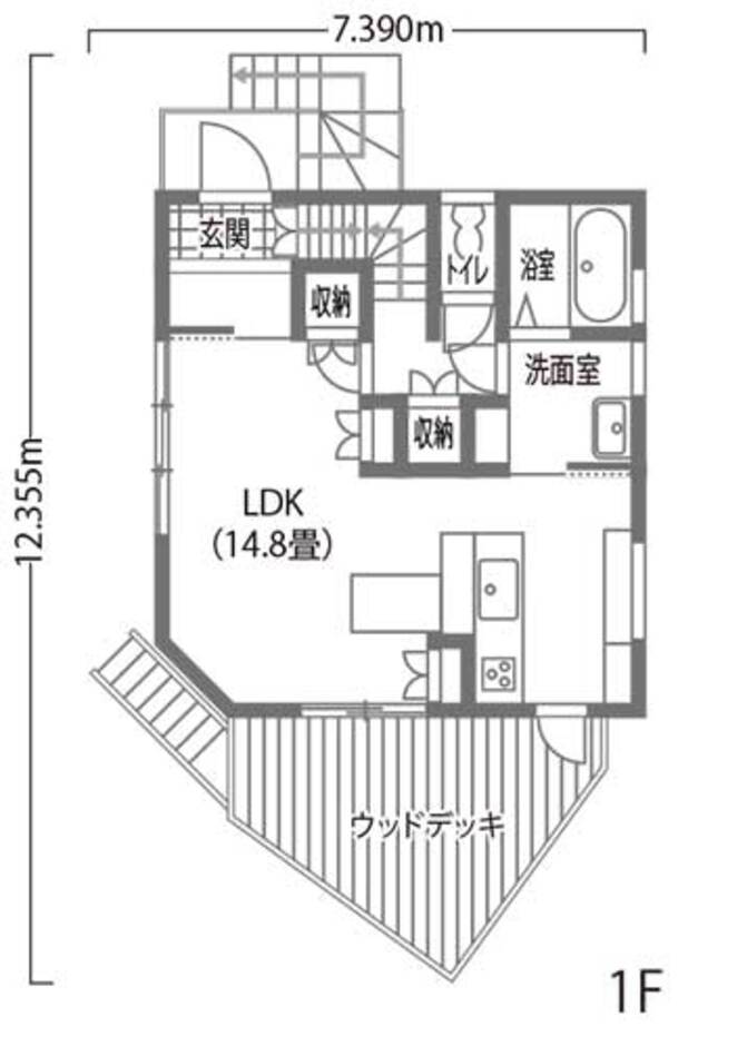
1階

2階

メテックス建築事務所 漆喰・天然木のぬくもりが家族をつつみこむ家 1階
メテックス建築事務所 漆喰・天然木のぬくもりが家族をつつみこむ家 2階

間取り提案

施主からの希望・要望

  • ゆったりとくつろげるリビング
  • 収納スペースが豊富で整理整頓しやすい
  • 自然な空気の流れを良くする

スタッフからのコメント

弊社の標準仕様や地下室を非常に気に入って頂きました。「家族が3人でそんなに大きい家は要らないから少し注文住宅っぽくカッコ良くカスタマイズして下さい」とご依頼頂き、費用はかなり余分にかかってしまいましたが、吹抜けをはじめ凄くいい家が出来たと感じました。ありがとうございます。

DATA

階数 2階建 延床面積 --- 敷地面積 ---
間取り 3LDK
1階 ---
2階 ---
施工面積 ---
家族構成 --- 設計者名 ---
#漆喰 #パイン素材 #吹抜け #スケルトン階段 #小屋裏 #天井高

メテックス建築事務所に「間取り」や「家づくりの相談」ができます。 この会社に来店予約をする

この間取りはこちらの施工例でご覧いただけます

漆喰・天然木のぬくもりが家族をつつみこむ家

家の中に入った瞬間感じることは、「明るい」ということ。漆喰の温かみのある白い壁、天然パイン素材の柔らかな肌触りの床板。建具もすべて床板と同じ天然パイン素材の優しい表情で家に入る者を受け入れてくれる。リビングダイニングから二階へと続く吹き抜けの空間からは、明るい日差しが降り注ぐ。間接照明とダウンライトで演出された光の使い方も、この家の明るさ、温かみの一つの要因であるようだ。 2階吹き抜け前には、天井高を生かした小屋裏に上る為のスケルトンの階段。小屋裏も広々として、お子さんのお気に入りの場所になりそう。天然素材の使用、光や空間の演出、一つ一つ、施主の思いと作り手の思いを融合させた作品のようなこの家は、これからまた住人を心地よく包み、ともに成長して行く可能性も感じた。  

施工例を詳しくみる
  • 本体価格 1000万〜1499万
    ※金額は購入当時のものです
  • 竣工
  • 施工期間 3ヶ月
  • 住宅性能 耐久性(耐風等級2相当)、耐震性(耐震等級3相当)