閉じる

静鉄ホームズ

2つの日常とデザインをブレンド 笑顔と光が行き交う二世帯平屋

O邸 | 物件エリア:沼津市 | 家族構成:夫婦+子ども

静鉄ホームズ【デザイン住宅、二世帯住宅、間取り】
本体価格(総施工費)

3,000~万円

※金額は購入当時のものです

大手から地元工務店まで多様な会社を巡ったOさんが重視したのは、要望を形にしてくれる提案力と性能の高さ。O邸では二世帯住宅で課題となる、2つの暮らし方とデザインの調和が予算内で見事に実現している。玄関左手は親世帯のスペース。「庭の梅を楽しめるように」という要望を軸に、作業台兼カウンターやゆとりを生む縁側など、思いが丁寧に叶えられた。モノトーンでまとめた子世帯のスペースは、薪ストーブが主役。家族の成長を受け止めるフレキシブルさや愛犬のためのアイデアもプランに落とし込まれている。そしてO邸最大の特徴は、光と広がりをもたらしながら、季節ごとの楽しさを提供する中庭の存在。笑顔が交差し、自然なつながりが育まれていく一棟だ。

敷地面積 519.94㎡ [157.28坪]

延床面積 195.63㎡ [59.06坪]

竣工 2021年2月

施工期間 4か月

屋根 カラーベスト コロニアル

外壁 防火サイディング

フローリング

内壁 クロス

天井 クロス

断熱材 高性能グラスウール

施工社名 静鉄ホームズ

施工例のご紹介

SNSを参考に奥さまのセンスを取り入れた子世帯のLDK。間接照明を設えた下がり天井が、スタイリッシュな空間に落ち着きを添えている。ハンモック用の金具も用意

SNSを参考に奥さまのセンスを取り入れた子世帯のLDK。間接照明を設えた下がり天井が、スタイリッシュな空間に落ち着きを添えている。ハンモック用の金具も用意

キッチンに立てばLDK全体に目が届き、デッキで遊ぶ姿や玄関の出入り、さらには親世帯の様子もさりげなく感じられる。ぐるっと周遊できるキッチンは奥さまの希望。適材適所の収納やキッチン近くにまとめられた水回りとともに、家事の負担を軽減している

キッチンに立てばLDK全体に目が届き、デッキで遊ぶ姿や玄関の出入り、さらには親世帯の様子もさりげなく感じられる。ぐるっと周遊できるキッチンは奥さまの希望。適材適所の収納やキッチン近くにまとめられた水回りとともに、家事の負担を軽減している

親世帯のLDKは畳敷きのリビングとの間のパーテーションを開けば、24畳を超える広さ。さらに中庭からも明るさと広さが運ばれる。ブラウンをベースにした室内は、ほっとくつろげる雰囲気。展示場で気に入った作業台兼カウンターが、一般的なテーブルとは違う居心地と利便性を生んでいる

親世帯のLDKは畳敷きのリビングとの間のパーテーションを開けば、24畳を超える広さ。さらに中庭からも明るさと広さが運ばれる。ブラウンをベースにした室内は、ほっとくつろげる雰囲気。展示場で気に入った作業台兼カウンターが、一般的なテーブルとは違う居心地と利便性を生んでいる

以前から植えられている庭の梅を楽しめるよう計画された親世帯のリビング。壁一面の収納ボードがピッタリ納まるようにしても
らった

以前から植えられている庭の梅を楽しめるよう計画された親世帯のリビング。壁一面の収納ボードがピッタリ納まるようにしても らった

ご主人の書斎は掘りごたつ式で、おこもり感抜群。愛犬ロンくんのスペースには専用の出入口も用意された

ご主人の書斎は掘りごたつ式で、おこもり感抜群。愛犬ロンくんのスペースには専用の出入口も用意された

玄関に足を踏み入れると正面の大きな開口に中庭が広がり、思わず声が出るほどの開放感。右手は使い勝手のいい土間収納。子世帯入口のドアはマットなブラックがお気に入り

玄関に足を踏み入れると正面の大きな開口に中庭が広がり、思わず声が出るほどの開放感。右手は使い勝手のいい土間収納。子世帯入口のドアはマットなブラックがお気に入り

建物の中央にレイアウトされた中庭は、室内と高さをそろえたデッキ仕立てに。開口部を大きく取ることで、玄関と両世帯のLDKに明るさと開放感をもたらし、書斎や収納が並ぶ北側にも光を届ける。水道が備えられ、BBQやプールにも活躍

建物の中央にレイアウトされた中庭は、室内と高さをそろえたデッキ仕立てに。開口部を大きく取ることで、玄関と両世帯のLDKに明るさと開放感をもたらし、書斎や収納が並ぶ北側にも光を届ける。水道が備えられ、BBQやプールにも活躍

それぞれが選んだ外壁を玄関の左右で張り分けた。バランスに配慮されているので、統一感ある表情に

それぞれが選んだ外壁を玄関の左右で張り分けた。バランスに配慮されているので、統一感ある表情に

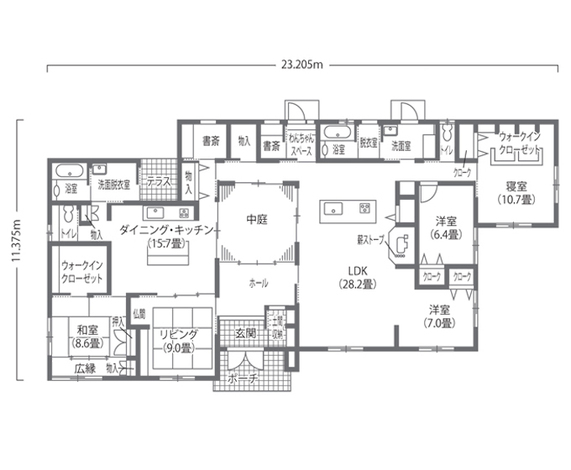
間取り

1F

1F

親世帯のスペースは子世帯に配慮し、コンパクトにすることを意識。LDKや寝室となる和室といった日常的に使用する空間の配置が丁寧に吟味された。勝手口は洗面脱衣室に用意。ご両親は農家さんなので、裏口で作業着などを洗えるようになっている。子世帯のLDKの一角に設けられたフリースペースは普段はつなげて広さを演出。将来的には閉じて、子ども部屋にする予定。寝室のクローゼットはウォークスルー型で、ドレッサーも造り付けで用意。洗濯機と物干し場の距離も近く、アイロン掛け用の台も備えている

お客様の声

お客様の声

Oさま

夫婦+子ども

実際に建ててみた感想

イメージがしっかり伝わり、図面に要望が反映される精度が高かった。性能も大事なポイントでした。限られた面積、予算の中で、うまくまとめてくれた。ほどよい距離感と平屋ならではの便利さに大満足です。

家を建てたきっかけ

50年ほど経過した住まいの建替え。リフォームにかなりの費用がかかるため、新築して同居することに。

静鉄ホームズからのコメント

マイホームプランナー 春園 裕三さん

マイホームプランナー 春園 裕三さん

大きな平屋で課題となる光、風、つながりを、中庭が両世帯に運ぶプランニングとしました。平屋の二世帯住宅をご提案するのは初めてでしたが、楽しくお打合せさせていただきました。

静鉄ホームズの他の施工例

会社概要

会社名
静鉄ホームズ
施工対応エリア
静岡県中部~東部
参考坪単価
60万円〜90万円
会社所在地
静岡県焼津市大住915
電話番号
050-5871-8755
このページを共有する
LINEで送る

閲覧履歴

閲覧した工務店はまだありません

来場キャンペーン

AmazonGiftCard
住宅イベント
住宅会社
モデルハウス

いずれかに来場・来店すると

最大5,000円もらえます

プレゼント方法
STEP1 1回の来場・来店で1,000
STEP2 2回の来場・来店で2,000
STEP3 3回の来場・来店で5,000

くふうイエタテ会員登録(無料)のうえ、Webイエタテでご予約し、住宅イベントやモデルハウス、住宅会社に来場・来店するとAmazonギフト券最大5,000円分(Eメールタイプ)を 先着200名様にプレゼント!※2026年2月28日までのご来場が対象となります

応募条件

このキャンペーンは注文住宅の購入やリノベーションの施工を検討している方を対象にしております。対象外の方のご応募はご遠慮ください。当社が不正な応募と判断した場合、 住宅会社への迷惑となる行為が確認された場合にはご応募が無効となり、以降のキャンペーン参加をお断りさせていただく場合がございます。あらかじめご了承ください。

本キャンペーンはWEBくふうイエタテ会員(無料)限定のキャンペーンとなります。必ずログインしてからご予約ください。非会員や電話予約につきましては対象外となります。

しずおかオンラインおよび、くふう住まい/くふうイエタテ主催のキャンペーンに過去10回以上ご参加されている方は応募対象外とさせていただきます。

1世帯につき1IDのみが応募対象となります。また、参加回数は同一IDからの参加についてのみカウントされます。 同一世帯の方が複数IDでご予約された場合も、応募条件を満たした1IDのみが応募有効となり、それ以外のIDでのご予約・ご参加については対象外となります。 なお、同一世帯の複数のIDから予約されたイベント・モデルハウス・住宅会社につきましては合算はできかねますのでご注意ください。4回目以降の予約にはプレゼントはつきません。

ご家族複数名での見学や同じメールアドレスの利用、同じご住所にお住まい、もしくは同居をご予定している場合、本企画では、それぞれを同一世帯1組様とみなします。 また、その他入力いただいた情報により、編集部が同一世帯とみなす場合がございます。

予約後、キャンセルされた場合は無効となります。イベントへの来場が確認できなかった場合や、スタッフから十分な説明を受けず途中退場した場合など、 イベントへご参加いただいたとの判断ができかねる場合、 利用者アンケートの回答が期限内に無い場合も、無効とさせていただきます。

ギフト券はキャンペーン終了後おおよそ1ヶ月以内に順次発送の予定です。送付状況など、発送に関する個別のお問合せにつきましてはお答えできかねますので、 あらかじめご了承ください。また、ギフト券はマイページのプロフィール欄にご登録されているメールアドレスに届きます。 入力されたメールアドレスが不明な場合や、何らかの理由で送付不可能である場合、 送付が取り消され、その時点で応募自体が無効となりますのでご注意ください。

メール送付後におきまして、何らかの理由でメールが受信されなかった場合、また、受信後のメール削除や紛失などがあった場合は、 いかなる理由によりましても弊社では責任を負いかねます。ご了承ください。

記載の【キャンペーン対象期間】とは【予約のお申し込みをされた日】を指します。対象期間外に予約のお申し込みをされた場合には、キャンペーン対象外となります。 また、ご来場の有効期間は2026年3月7日までとなりますので、2026年3月8日以降に開催のイベントやモデルハウス見学への予約もキャンペーン対象外となりますので、ご注意ください。

注意事項

※本企画は、日本国内在住で契約者本人が居住するための住宅の購入を検討している一般の方を対象としております。また、契約者が法人の場合は対象外となります。

※[不動産業における景品類の提供の制限に関する公正競争規約]により、各住宅会社で本企画とは別に行っているプレゼント企画の賞品と本キャンペーンの賞品の両方は受け取れない場合がございます。 詳しくはくふうイエタテ編集部にお問合せください。

※携帯電話(スマートフォン以外)・PHSからの応募はできません。またスマートフォンの場合も、一部対応できない機種があります。 応募可能なインターネット接続環境や端末は、お客さまご自身でご用意ください。また、通信料はお客さま負担となります。

※ご家族複数名での見学や同じメールアドレスの利用、同じご住所にお住まい、もしくは同居を予定している場合、本企画では、それぞれを同一世帯1組様とみなします。 なお、入力いただいた情報により、編集部が同一世帯とみなす場合がございます。また、本人以外の方のメールアドレスでの応募、代行での参加手続きは無効といたします。

※未成年もしくは学生の方のみでのモデルハウス見学もしくはイベントへの参加は、キャンペーンの対象外となりますのでご注意ください。

※本企画は、当社の都合により、キャンペーン期間に関係なく、事情によりキャンペーンを中止する場合がございます。 あらかじめご了承ください。当社は、本企画の変更・終了等により生じたいかなる損害等についても、一切責任を負うものではありません。

※ご入力いただきましたメールアドレスに不備がある場合、当選を無効とさせていただきます。