愛知県尾張エリア
他のエリア
工務店・新築・一戸建て・注文住宅・リノベ会社を検索できるくふうイエタテ
4DK / 2階建
施工事例あり
バーのような空間でおしゃれに暮らすBlack&Whiteの家
建物自体は決して大きくないのですが、吹き抜けを活かした開放感を感じる間取りになっています。色を多く使わず、大人かっこいいシンプルでモダン空間をご提案しました。どこにいても家族のつながりを感じる、素敵な住まいです。
4DK・2階建
延床面積:111.38m² [33.69坪]
吉川住建
愛知県岡崎市青木町3-5
050-5851-0547
4LDK / 2階建
施工事例あり
開放感と家事ラクを両立した、フレンチスタイルの白いお家
外観の「白亜の欧風デザイン」は、お施主さまの憧れを具現化し、3方向それぞれ違う表情に見えるよう設計。内部も洗面脱衣室、浴室を2階に設置することで、空いたスペースに書斎をつくりました。広いリビングにはキッズコーナーもあります。
4LDK・2階建
延床面積:135.2m² [40.89坪]
吉川住建
愛知県岡崎市青木町3-5
050-5851-0547
7LDK / 3階建
施工事例あり
モノトーンの無機質なデザインが冴える3階建て・二世帯住宅
分譲マンションの売却からお手伝いさせていただきました。西側の大きなスリット窓は暑いですよとご忠告しましたが、それでも構わないからとデザインを優先されたM様。引き渡しから10年経ちましたが、今も西側の堤防から室内のスリット階段が美しく見えます。
7LDK・3階建
延床面積:181.37m² [54.86坪]
吉川住建
愛知県岡崎市青木町3-5
050-5851-0547
5LDK / 2階建
施工事例あり
大人も子どもも楽しく暮らせる大空間・大開口の家
家族思いのご主人が、ご自分の趣味も大切に、家族みんながゆったりとお家で団らんでき、楽しめることをコンセプトにできあがった、まさに家族を育む究極の家です。お酒も楽しめるバイクガレージは、時が経つのも忘れて一夜を過ごしてしまいそうです。
5LDK・2階建
延床面積:200.5m² [60.65坪]
吉川住建
愛知県岡崎市青木町3-5
050-5851-0547
6LDK / 2階建
施工事例あり
高耐震と開放感を両立したテクノストラクチャーの家
おしゃれが大好きなご夫婦。特にご主人は絵画や釣り、音楽など多趣味な方で、家に対する要望も多数お持ちでした。レザー張りのシューズクローク、特注メラミンのリビング、ダイニングセットは造作です。
6LDK・2階建
延床面積:163m² [49.3坪]
吉川住建
愛知県岡崎市青木町3-5
050-5851-0547
3LDK / 2階建
施工事例あり
豊田市街を一望できる、絶景ウッドデッキのある高台の家
自然素材を活かした内装と高台ならではの眺望を取り込んだ、常に絶景を楽しめる空間設計。南側の傾斜地を利用し、突き出た大型ウッドデッキはLDKとも一体化し、癒やしの空間を演出しています。
3LDK・2階建
延床面積:111.43m² [33.7坪]
吉川住建
愛知県岡崎市青木町3-5
050-5851-0547
3LDK / 2階建
施工事例あり
2050年の省エネ基準をクリア!! 人にも環境にも優しいLCCM住宅
環境負荷を減らしたいとの考えからZEHを希望されていたので、ワンランク上のLCCM住宅を提案しました。断熱・気密性を最大限に高め、太陽光発電と蓄電池でエネルギーの自給自足を実現。耐震性の高いパナソニック・テクノストラクチャー工法と相まって、大満足の家が完成しました。
3LDK・2階建
延床面積:121.66m² [36.8坪]
吉川住建
愛知県岡崎市青木町3-5
050-5851-0547
4LDK / 2階建
施工事例あり
吹抜けのらせん階段が魅力! 光あふれ風そよぐ「T字型」の家
家全体を「おもてなし空間」と考え、玄関からリビング、らせん階段を上がって2階ホールへ抜けるゾーニングをご提案しました。玄関ホールの扉を開放すると、18畳のLDKが22.5畳に。オリジナルの可動採風格子で風が家中を循環します。
4LDK・2階建
延床面積:115.99m² [35.08坪]
吉川住建
愛知県岡崎市青木町3-5
050-5851-0547
2LDK / 平屋
施工事例あり
リゾートのように暮らす、アウトドアリビングのある平屋
土地探しからサポートさせていただきました。私も妻と二人暮らしで、間仕切りのない一室空間の家に住んでいるので、Kさんの理想とする住まいがよくわかりました。構造、性能はよくて当たり前です。そこに何年経ってもワクワクするデザインをプラスするのが弊社のこだわりです。
2LDK・平屋
延床面積:99.5m² [30.09坪]
吉川住建
愛知県岡崎市青木町3-5
050-5851-0547
4LDK / 2階建
施工事例あり
約30畳のLDKと広い庭で、家族がのびやかに暮らす家
土地探しからお手伝いさせていただき、一緒に家づくりを楽しませていただきました。テクノストラクチャー工法により、柱や壁の仕切りがなく、南面に大きな窓を配置しても耐震等級3を取得。想像以上に広い約30畳の大空間LDKを実現することができました。
4LDK・2階建
延床面積:150m² [45.37坪]
吉川住建
愛知県岡崎市青木町3-5
050-5851-0547
3LDK / 2階建
施工事例あり
岡崎市 建築家×工務店で叶えた、カッコよくて住みやすい家
敷地の工程差を活かした庭がポイントです。LDKから庭へ出入りしやすく、他からの視線も気にならないプライベートガーデンはこの先もずっと活躍できます。
3LDK・2階建
延床面積:134.51m² [40.68坪]
内田建設
愛知県豊橋市曲尺手町68
050-5851-6957
3LDK / 1.5階建
施工事例あり
1,000万円台で叶えたオール自然素材の木の家
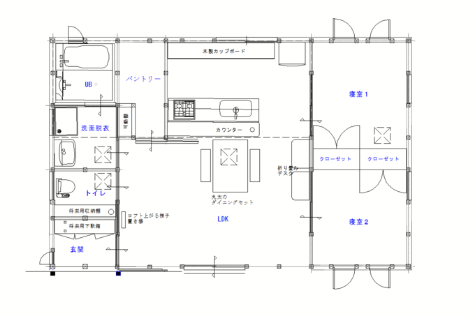
21帖の中にLDKとパントリーを配置 キッチンも広くスペースを取っており、 ダイニングの横にワークスペースとして 折り畳みデスクを付けています。 LDKを通ってそれぞれの部屋にアクセス コミュニケーションのとれるプランです。 キッチンに付けたカウンター下収納、 それぞれの部屋のクローゼット、 ロフトもあり収納はしっかり設けています。
3LDK・1.5階建 (リビングにワークスペース)
明城
愛知県安城市城ヶ入町団戸173-16
050-5268-8290
3LDK / 1.5階建
施工事例あり
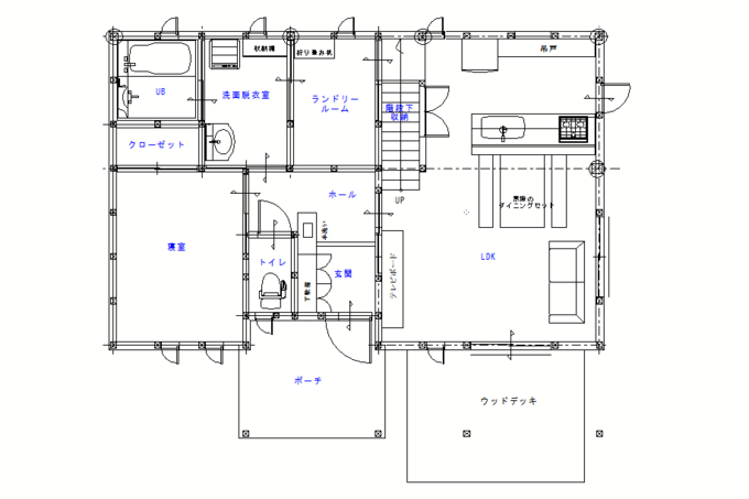
自由設計&無垢の木の家を本体価格1,000万円台で実現!
梁が見える吹き抜けLDKは 解放感たっぷりで印象的な造り 対面キッチンからは リビングもそこに設置したテレビも ウッドデッキも良く見えます。 キッチン~ランドリールーム~洗面~浴室 という配置で水周り動線がスムーズです、 洗濯物がリビングにいて視界に入ってこないのは 嬉しいポイント! 2階に上がってすぐの場所に ワークスペースを配置。 勉強や仕事や書斎などに使えます。 小窓からは玄関が見えるので、 家族に「いってらっしゃい」や「おかえり」の 声掛けもできますよ。 2つの部屋は子供部屋になっています。
3LDK・1.5階建 (ワークスペース、ランドリースペースあり)
明城
愛知県安城市城ヶ入町団戸173-16
050-5268-8290
2LDK / 平屋
施工事例あり
1000万円台で夢の平屋を実現! 自由設計でつくる木の家
土間スペースとウッドデッキでアウトドア感を楽しむ 2LDK 梁の見えるLDKにアイランドキッチンは お施主様のご希望が叶ったプラン 玄関にはシンボル柱を配置し、 収納スペースと入口動線と仕切っています。 土間に向かうスタイルでソファとテレビを 配置しているので、のんびりくつろげます。 2つの洋室の他にWICを設け荷物をすっきり収納、 リビングの散らかりを防ぎます。 DIYが趣味のお施主様ご夫婦の 暮らしを楽しむ間取りになりました。
2LDK・平屋
延床面積:79.49m² [24.04坪]
明城
愛知県安城市城ヶ入町団戸173-16
050-5268-8290
4LDK / 平屋
施工事例あり
豊橋市 オープン階段のある家
光をいかに取り込むかがテーマでした。吹抜けを設けて採光する方法をご提案しました。建物をL字型に配置することで、より光と風を取り込めるようになりました。
4LDK・平屋
延床面積:135.01m² [40.84坪]
内田建設
愛知県豊橋市曲尺手町68
050-5851-6957
3LDK / 2階建
施工事例あり
豊田市 トレーニングルームのある家
南面道路に広がる桜の風景を最大限に活かした設計となっています。
3LDK・2階建
延床面積:168.08m² [50.84坪]
内田建設
愛知県豊橋市曲尺手町68
050-5851-6957
3LDK / 2階建
施工事例あり
豊橋市 高台のデザインハウス
シックでモノトーンなデザインがお好きなご夫妻。グリーンを効果的に使ってインテリアを楽しんでおられます。中庭でBBQやプールもできますね!
3LDK・2階建
延床面積:111.8m² [33.81坪]
内田建設
愛知県豊橋市曲尺手町68
050-5851-6957
4LDK / 2階建
施工事例あり
豊橋市 どこにいても楽しい家
「家づくりを楽しむこと」をコンセプトにしている弊社と、暮らしを楽しむセンスに長けたSさまご夫妻の考え方、価値観がピタリと一致しました。
4LDK・2階建
延床面積:159.22m² [48.16坪]
内田建設
愛知県豊橋市曲尺手町68
050-5851-6957
3LDK / 2階建
施工事例あり
豊橋市 大空間リビングのある家
デザインと住みやすさを兼ね備えた建築家住宅を無理のない価格でご提供することができました。
3LDK・2階建
延床面積:105.58m² [31.93坪]
内田建設
愛知県豊橋市曲尺手町68
050-5851-6957
3LDK / 2階建
施工事例あり
豊橋市 家事ラク動線+機能性の高いデザインハウス
家っぽくない外観をはじめ、建物全体のデザイン性と快適性のバランスを追求しました。
3LDK・2階建
延床面積:105.68m² [31.96坪]
内田建設
愛知県豊橋市曲尺手町68
050-5851-6957
5LDK / 2階建
施工事例あり
豊川市 使い勝手が良い家
1・2階とも、いろいろなところから行き来できる回遊型の間取りです。快適でみんなが楽しめる家になったと思います。
5LDK・2階建
延床面積:159.83m² [48.34坪]
内田建設
愛知県豊橋市曲尺手町68
050-5851-6957
それ以外 / 平屋
施工事例あり
豊橋市 ガレージハウス
車好きのご主人と意気投合してつくったガレージハウスです。
それ以外・平屋
延床面積:136.31m² [41.23坪]
内田建設
愛知県豊橋市曲尺手町68
050-5851-6957
3LDK / 2階建
施工事例あり
岡崎市 アーチ型の天井がある家
ご主人はエンジニア、奥さまは広告クリエイターで、図面を見ただけでイメージしてくださったので、私たちも仕事をしやすかったです。こだわりが凝縮した住まいです。
3LDK・2階建
延床面積:133.65m² [40.42坪]
内田建設
愛知県豊橋市曲尺手町68
050-5851-6957
3LDK / 平屋
施工事例あり
豊川市 高台に建つ平屋
道路との高低差がある高台に位置していますが、建築家との家づくりで、土地の特徴を活かした家ができました。テラスは周囲から見えないように設計されているので、プライベートな時間を満喫できると思います。
3LDK・平屋
延床面積:122.43m² [37.03坪]
内田建設
愛知県豊橋市曲尺手町68
050-5851-6957
4LDK / 2階建
施工事例あり
豊橋市 リゾートライクな家
視線を遮りつつ、プライベートな中庭を囲むコの字型の家。リビングから吹抜けを見上げた時に見える空が開放感を演出してくれます。
4LDK・2階建
延床面積:164.09m² [49.63坪]
内田建設
愛知県豊橋市曲尺手町68
050-5851-6957
5LDK / 2階建
施工事例あり
豊川市 アウトドアリビングのある家
住宅街で、周囲の目が気にならない開放的なテラスをリビングに併設したことにより、LDKがより広く感じられるようになりました。
5LDK・2階建
延床面積:143m² [43.25坪]
内田建設
愛知県豊橋市曲尺手町68
050-5851-6957
3LDK / 平屋
施工事例あり
豊橋市 土地の特性を上手に活かした平屋
弊社と長くタッグを組んでいる設計事務所で働く女性設計士のご自宅です。彼女が自ら設計しました。お互いに理解し合っているので、施工は全面的にお任せいただきました。
3LDK・平屋
延床面積:124.81m² [37.75坪]
内田建設
愛知県豊橋市曲尺手町68
050-5851-6957
3LDK / 2階建
無印良品と回遊動線で叶える、 暮らしやすく心地よい住まい
南向きの明るいLDKに、ぐるっと回れる回遊キッチンをプラス。家具や収納用品だけでなく、雑貨や小物、カーテンに至るまで無印良品で統一し、すっきりと心地よい空間を実現しました。 リビングの一角には、こもって過ごせるヌックスペースも設置。家族が読書や趣味に集中できる、ちょっと特別な空間です。 玄関にはシューズインクロークを備え、外出・帰宅の動線をスムーズに。洗面室と脱衣室を分けることで、家族が同時に使っても快適に過ごせます。 収納は「動線上に配置」を意識し、必要な場所に必要な容量を確保。無印良品の収納グッズを活用することで、見た目も美しく、片付けやすさもアップ。朝の支度や帰宅後の片付けが自然にできる、暮らしやすさを考えた設計です。 2階にはウォークインクローゼット付きの寝室と、2つの子ども部屋。さらに、ご主人のための趣味部屋もご用意。没入感と落ち着きを両立した、静かな大人のゲーミングスペースです。 成長とともに増える洋服や学校用品、おもちゃは、子ども専用の収納スペースへ。ハンガーやボックスを組み合わせれば、自分で片付けや支度がしやすく、整理整頓の習慣も自然に身につきます。
3LDK・2階建
延床面積:109.3m² [33.06坪]
太陽ハウジング
愛知県知立市鳥居3-3-12
0566-83-5000
3LDK / 2階建
家族の暮らしを彩る、快適で上質な住まい
1階は、18帖の広々としたLDKとウッドデッキがつながり、家の中と外がゆるやかにひとつにつながる開放的な空間に。リビングに隣接するワークスペースは、趣味やリモートワークに活躍します。キッチンを中心とした効率的な家事動線も、忙しい毎日をサポート。 2階には、8帖の主寝室と2つの子ども部屋を配置。さらに、家族みんなで使える大容量のウォークインクローゼットも完備し、収納力と快適さを両立しています。 ナチュラルな素材感と光の入り方にこだわり、日々の暮らしにやさしく寄り添う空間に仕上げました。
3LDK・2階建
延床面積:102.69m² [31.06坪]
太陽ハウジング
愛知県知立市鳥居3-3-12
0566-83-5000
3LDK / 2階建
メンズライクな空間で、家族がつながる暮らしを 開放感と心地よさを味わえる住まい
LDKとウッドデッキがゆるやかにつながる開放的な設計、収納力のあるパントリー付きキッチン、そして洗面室〜脱衣室〜浴室が一直線につながる家事ラク動線など、機能性と居心地の良さを両立しています。2階には主寝室と2つの子ども部屋、そしてたっぷり収納できるWICも配置。 限られた敷地の中に、家族の今と未来を見据えた住まいの工夫を詰め込みました。
3LDK・2階建
延床面積:97.72m² [29.56坪]
太陽ハウジング
愛知県知立市鳥居3-3-12
0566-83-5000