静岡県西部エリア

工務店・新築・一戸建て・注文住宅・リノベ会社を検索できるくふうイエタテ

注文住宅、リフォーム住宅会社を探す

住宅会社 住宅イベント モデルハウス リフォーム・リノベーション 土地・建売 住まいのプロ 動画 家づくりガイド くふうイエタテカウンター
静岡西部 ランキング 2
施工対応エリア
浜松〜静岡(エリア外は要相談)
電話番号
050-5851-0593
ジャンル
新築 、 リフォーム 、 土地相談
資料請求無料 検討会社に追加する
3LDK | 2階建

インナーガレージ・カバードポーチのある住まい

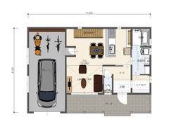
1階

81.98m² (24.79坪)

2階

49.68m² (15.02坪)

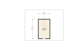
小屋裏

12.42m² (3.75坪)

Yamaguchi Design  インナーガレージ・カバードポーチのある住まい 1階 チェックポイント1 チェックポイント2
  • Check.1

    インナーガレージ

    インナーガレージの間口は車1台分として、奥行きを持たせバイクや自転車が置けるスペースを設けました。


  • Check.2

    カバードポーチ

    アメリカンな外観にはカバードポーチが良く似合います。

Yamaguchi Design  インナーガレージ・カバードポーチのある住まい 2階 チェックポイント1 チェックポイント2
  • Check.1

    書斎

    趣味やワークスペースとして使えるちょっとした書斎。


  • Check.2

    小屋裏への収納型ハシゴ

    2階のホールから小屋裏へ行けます。

Yamaguchi Design  インナーガレージ・カバードポーチのある住まい 小屋裏

間取り提案

施主からの希望・要望

  • 趣味、仕事スペースを確保
  • 庭やバルコニーとのつながり
  • ガレージがある

スタッフからのコメント

アメリカンな外観でインナーガレージとカバードポーチをご希望のお客様に設計致しました。 土間収納から洗面所への動線、洗面所からLDKの動線など取り入れました。

DATA

階数 2階建 延床面積 131.66m² [39.82坪] 敷地面積 ---
間取り 3LDK
1階 81.98m² [24.79坪]
2階 49.68m² [15.02坪]
小屋裏 12.42m² [3.75坪]
施工面積 ---
家族構成 --- 設計者名 ---

Yamaguchi Design に「間取り」や「家づくりの相談」ができます。 この会社に来店予約をする

似ている間取りはこちら