静岡県西部エリア

工務店・新築・一戸建て・注文住宅・リノベ会社を検索できるくふうイエタテ

注文住宅、リフォーム住宅会社を探す

住宅会社 住宅イベント モデルハウス リフォーム・リノベーション 土地・建売 住まいのプロ 動画 家づくりガイド くふうイエタテカウンター
施工対応エリア
浜松~静岡
電話番号
050-5851-7041
ジャンル
新築 、 リフォーム 、 土地相談
資料請求無料 検討会社に追加する
2LDK | 平屋

無駄を省いたコンパクトな間取りで、広々LDKと家事ラク動線が実現

家族構成:ご夫婦

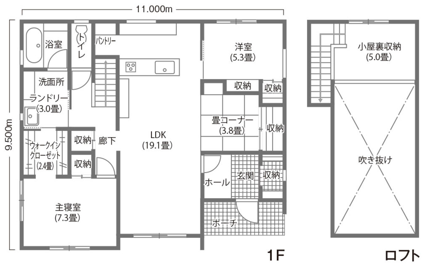
1階+小屋裏収納

95.75m² (28.96坪)

Yamaguchi Design 掛川店(アイフルホーム 掛川店) 無駄を省いたコンパクトな間取りで、広々LDKと家事ラク動線が実現 1階+小屋裏収納 チェックポイント1 チェックポイント2 チェックポイント3 玄関
  • Check.1

    勾配天井で開放感のあるLDK

    レッドシダー張りの勾配天井が、実際の面積以上の広がりを感じさせるLDK。続き間の畳コーナーは、仏間や客間としてだけでなく、子供のお世話をするスペースとしても活躍しそう。


  • Check.2

    洗面&ランドリールーム

    ウォークスルークローゼットと寝室に通じている、洗面&ランドリールーム。室内干しした洗濯物が乾いたら、ハンガーを移動してそのまま掛けるだけで済む。朝の支度もスムーズにできる。


  • Check.3

    小屋裏収納

    約5帖の小屋裏からはLDKを見渡せる。セカンドリビングとしても活用できる。

間取り提案

施主からの希望・要望

  • 収納スペースが豊富で整理整頓しやすい
  • 家事が効率的にできる
  • 開放感のある吹き抜け

スタッフからのコメント

なるべく廊下を設けずに坪数を抑えながら、勾配天井によって広がりのある空間をデザインしました。家事ラクな動線など、暮らしやすさを重視した提案も随所に活かされています。

DATA

階数 平屋 延床面積 95.75m² [28.96坪] 敷地面積 315.08m² [95.31坪]
間取り 2LDK (畳コーナー、小屋裏収納)
1階+小屋裏収納 95.75m² [28.96坪]
施工面積 99.25m² [30.02坪]
家族構成 ご夫婦 設計者名 (株)三住建設 アイフルホーム掛川店
#平屋 #勾配天井 #小屋裏収納 #ウォークスルークローゼット #ランドリールーム

Yamaguchi Design 掛川店(アイフルホーム 掛川店)に「間取り」や「家づくりの相談」ができます。 この会社に来店予約をする

この間取りはこちらの施工例でご覧いただけます

無駄を省いたコンパクトな間取りで広々LDKと家事ラク動線が実現

結婚後まもなく、実家の敷地内に念願の平屋を建てたHさん夫妻。今だけでなく将来の暮らしを見据え、無駄な空間を省いたコンパクトな間取りを実現した。「私たちが思い描いたイメージを『アイフルホーム』さんが確実に形にしてくれました」と奥さま。LDKは勾配天井にし、続き間の和室を設けたことで、視界が縦横に広がる空間に。キッチン上部には小屋裏があり、セカンドリビングとして活躍中。また、寝室とランドリーをつなぐ動線上にウォークスルークローゼットを配置し、着替えや洗濯を効率化した。「何もかも理想通り。友人からも大好評で、誰かが初めて遊びに来ると、私たちの代わりにその友人が誇らしげに家を案内してくれるんです」と夫妻がうれしそうに語った。

施工例を詳しくみる
  • 本体価格 指定なし
    ※金額は購入当時のものです
  • 竣工 2022年5月
  • 施工期間 4か月
  • 住宅性能 耐震性(耐震等級3取得)、省エネルギー性(太陽光発電)、通風・換気性(換気システム 第三種換気)

似ている間取りはこちら