静岡県西部エリア
他のエリア
工務店・新築・一戸建て・注文住宅・リノベ会社を検索できるくふうイエタテ
家族構成:夫婦+お子さま(1〜2人)
1階平面図
54.62m² (16.52坪)
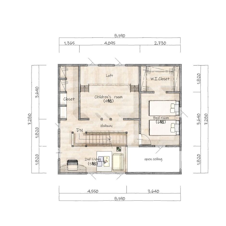
2階平面図
49.68m² (15.02坪)
施主からの希望・要望
広い玄関ポーチと玄関収納を確保し、1階はコンパクトな畳スペースと開放感のあるLDKが特長。 2階のロフト付きのこどもルームは将来的に分割可能で、セカンドリビングは、リモートワークの書斎、シアタールーム、など楽しみ方は拡がります。 収納スペースが多めに確保してあるので、すっきりした暮らしができるでしょう。
| 階数 2階建 | 延床面積 104.33m² [31.55坪] | 敷地面積 --- |
| 間取り 3LDK (分割可能な子ども部屋、セカンドリビング、ファミリー収納あり) |
1階平面図
54.62m² [16.52坪]
2階平面図
49.68m² [15.02坪]
|
施工面積 104.33m² [31.55坪] |
| 家族構成 夫婦+お子さま(1〜2人) | 設計者名 --- |
2LDK / 2階建
小屋裏収納付き! 家族も個々も大事にできる おすまい
こちらの間取りは、大きな小屋裏収納が独自の趣味や仕事に最適なスペースを提供し、自分時間も大事にできる個室も確保した理想的なカタチです。 1階には開放感あふれるリビングダイニングとキッチンが広がっており、家族や友人との快適な時間を過ごすことができます。 さらに、小屋裏収納が完備されているため、四季折々のアクティビティ用具や趣味の道具を整理整頓して収納することができます。 寝室が個々の収納付きなので、夫婦や親子・兄弟、友人同士のルームシェアとしても使えますね!
2LDK・2階建
延床面積:80.87m² [24.46坪]
4LDK / 2階建
将来を見据えた変化に対応できる シニア世代のおすまい
玄関から1階全体が回遊でき、家族とゲストの動線を分けられる土間の玄関が便利。 住宅地ながら、音楽を存分に楽しめる防音仕様のシアタールームと大きなファミリークローゼットが特長のおすまい。 2階に寝室を配置していますが、将来的に階段が不便になったら1階で生活できるような間取りになっています。
4LDK・2階建
(玄関土間、ランドリー、大きなファミリークローゼット)
延床面積:128.62m² [38.9坪]