静岡県西部エリア

工務店・新築・一戸建て・注文住宅・リノベ会社を検索できるくふうイエタテ

注文住宅、リフォーム住宅会社を探す

住宅会社 住宅イベント モデルハウス リフォーム・リノベーション 土地・建売 住まいのプロ 動画 家づくりガイド くふうイエタテカウンター
施工対応エリア
湖西、浜松、磐田、袋井、掛川
電話番号
050-5268-8264
ジャンル
新築 、 リフォーム 、 土地相談
資料請求無料 検討会社に追加する
4LDK | 2階建

土間×薪ストーブ×ビルトインガレージのモデルハウス

家族構成:夫婦+長男+次男+長女

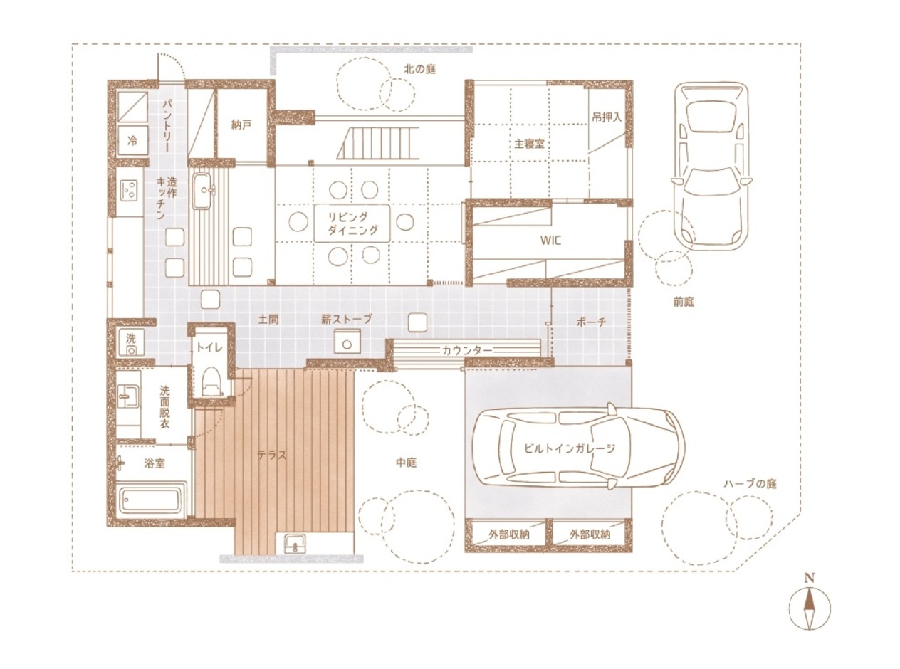
1階

76.26m² (23.06坪)

2階

54m² (16.33坪)

桂建設 土間×薪ストーブ×ビルトインガレージのモデルハウス 1階 チェックポイント1 チェックポイント2 チェックポイント3 玄関
  • Check.1

    雨の日の車の乗り降りも楽々なビルトインガレージ

    雨の日に便利なのはもちろん、ファサードのアクセントにも。また、ビルトインガレージによって奥にある中庭のプライベート感を確保してくれます。


  • Check.2

    薪ストーブ×土間のある暮らし

    玄関から続く土間は、薪ストーブのお手入れもしやすく、また水や汚れを気にしなくてもよい趣味の場としても活躍してくれます。冬は寒いイメージがある土間ですが、蓄熱性に優れている為薪ストーブを設置することでお部屋の中の温度を暖かく保ってくれます。


  • Check.3

    緑が溢れる中庭

    ガレージによって程よく区切られた中庭空間。広々としたウッドデッキでBBQを愉しんだり、この家のご主人の趣味でもある盆栽を愉しんだり、使い方は様々です。

桂建設 土間×薪ストーブ×ビルトインガレージのモデルハウス 2階 チェックポイント1
  • Check.1

    多目的ホール

    2階にも廊下が無く、代わりに多目的ホールを介してそれぞれの子供部屋に入ることができます。居室は寝るだけのシンプルな造りで、勉強や読書は多目的ホールで。1階と吹き抜けでつながっているので、集中しながらも家族の存在を感じられる、そんな空間になりました。

間取り提案

施主からの希望・要望

  • ゆったりとくつろげるリビング
  • 庭やバルコニーとのつながり
  • ガレージがある

スタッフからのコメント

雨の日にも便利なビルトインガレージ+L字型の間取りで、住宅地でもプライベートな中庭を確保。玄関からLDKまで続く土間には薪ストーブがあり、小上がりの畳リビングに腰掛けて火を眺めることができます。

DATA

階数 2階建 延床面積 --- 敷地面積 ---
間取り 4LDK
1階 76.26m² [23.06坪]
2階 54m² [16.33坪]
施工面積 ---
家族構成 夫婦+長男+次男+長女 設計者名 桂建設事務所
#ビルトインガレージ #土間のある家 #小上がりリビング #薪ストーブ #アウトドアリビング

桂建設に「間取り」や「家づくりの相談」ができます。 この会社に来店予約をする

この間取りはこちらのモデルハウスでご覧いただけます

四つの居場所「座」を中心に 日々の暮らしを愉しむ住まい

『桂建設』のモデルハウスは、「日々を愉しむ家をつくる」という同社のコンセプトを体現した住まい。五十嵐社長のご一家が実際に生活しているため、いっそう家づくりの参考になる。50年以上住み続けられる家を実現するため、素材にはメンテナンスの不要な漆喰や無垢材、和紙などの自然素材を採用。築8年目を迎え、無垢や漆喰の風合いが経年美を漂わせている。「四つの座」とは、リビングの床に座る「床座」、土間のカウンターやダイニングに座る「椅子座」、土間と床の段差に座る「段座」、庭を眺めて座る「庭座」を示す。暮らしを愉しむ空間と、隅々まで理に適った美しい設えが心に染みる住まいだ。

モデルハウスを詳しくみる
  • エリア 浜松市中央区
  • 営業時間 8:00〜17:00
  • 休日 不定休
  • タイプ 和風住宅・和モダン住宅、木の家・自然素材、省エネ住宅・高性能住宅