栃木県県央エリア
他のエリア
工務店・新築・一戸建て・注文住宅・リノベ会社を検索できるくふうイエタテ
5LDK / 平屋
二つの主寝室で叶える、二世帯や多世代同居に優しい住まい
この間取りは、家族の多様なライフスタイルに対応する工夫が満載。 特徴的なのは、左右に配置された2つの主寝室。 それぞれに近接するトイレやウォークインクローゼットがあり、プライベート空間をしっかり確保。 二世帯住宅や親世代との同居にもぴったりのレイアウトです。 リビング・ダイニング・キッチンが中心に広がり、家族全員が自然と集まる心地よい空間を演出。 さらに、来客用にも使えるゲストルームや便利な玄関クロークも完備。収納力と機能性に優れた一邸です。 生活動線は非常にスムーズで、洗面脱衣室や浴室、各ベッドルームへのアクセスも快適に設計されています。
5LDK・平屋
クラウンハウス
栃木県宇都宮市菊水町11-19
028-666-5370
3LDK / 平屋
光と風が通う、家族がつながる平屋の家
開放感あふれるリビングを中心に、家族が自然と集まる間取り。 広々としたキッチンとダイニングが一体となっており、家族の団らんを大切にした設計です。 3つのベッドルームは程よい距離感でプライバシーも確保。 収納力のあるウォークインクローゼットや洗面脱衣室も完備され、暮らしやすさを重視した機能的な動線です。 また、玄関ホールから水回りへのアクセスもスムーズで、来客時にもプライベート空間をしっかり守れます。
3LDK・平屋
クラウンハウス
栃木県宇都宮市菊水町11-19
028-666-5370
3LDK / 平屋
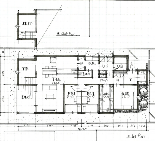
スキップフロアのある平屋
敷地の形状や周囲の環境など、さまざまな制約がある中で、建物自体の形状はある程度自ずと決まってしまいました。 しかし、その限られた条件の中でも、少しでも快適な暮らしが実現できるように、動線や間取りに徹底的にこだわり、家事の効率化を最大限に追求しました。 毎日の生活が少しでもスムーズに、そして心地よく過ごせるような工夫を随所に取り入れています!
3LDK・平屋 (スキップフロア・ウォークインクローゼット)
延床面積:108.69m² [32.87坪]
クラウンハウス
栃木県宇都宮市菊水町11-19
028-666-5370
4LDK / 平屋
自然と調和するくつろぎの平屋
四方に広がるゆったりとした平屋の4LDK空間は、施主様のご要望に応えた心地よい住まいを実現します。リビングは、家族が集まりくつろげる広々とした設計で、日々のストレスを癒す特別な場所。大きな窓が庭やバルコニーへとつながり、室内と屋外の境界を曖昧にし、自然との一体感を育みます。風が通り抜ける工夫が施された造りにより、家中に新鮮な空気が巡り、四季を感じながらのびのびとした生活を提案します。自然と共に暮らすことで、心豊かな日常がここから始まります。
4LDK・平屋
木の花ホーム
栃木県栃木市西方町本城62-3
0120-89-5087
3LDK / 平屋
光溢れる平屋で暮らす豊かなくつろぎ
この3LDKの平屋住宅は、施主の願いに応えて、自然光を最大限に取り込む設計が特徴です。大きな窓と高い天井を組み合わせることで、各部屋に優しい光が降り注ぎ、一日中明るく開放的な空間を実現します。また、豊富な収納スペースを各所に設けることで、家中が整理整頓され、生活感がスッキリとします。リビングは家族が集う場所として、ゆったりとしたスペースが確保されており、落ち着いた時間を過ごすのに最適です。光と空間の豊かさが調和したこの間取りは、快適で心地よい毎日を提供します。
3LDK・平屋
木の花ホーム
栃木県栃木市西方町本城62-3
0120-89-5087
2LDK / 平屋
自然光溢れる広々リビングの家
この平屋2LDKの間取りは、施主が求める「ゆったりとくつろげるリビング」と「収納スペースの充実」を高度に実現しています。広々としたリビングには大きな窓を設け、豊富な自然光が降り注ぎます。これにより、日中は照明を気にせずリラックスした時間を過ごすことができ、夜は窓からの眺めを楽しむことができます。また、各部屋には十分な収納スペースを配置し、整理整頓がしやすい設計となっています。これにより、生活空間を常にすっきりと保ち、ストレスのない快適な暮らしをサポートします。この間取りは、光と空間を最大限に活用し、豊かなライフスタイルをもたらす設計です。
2LDK・平屋
木の花ホーム
栃木県栃木市西方町本城62-3
0120-89-5087
5LDK / 2階建
家族が集う、ゆとりの5LDKライフ
この5LDKの間取りは、施主が求めるゆったりとした生活空間と機能性を両立しています。広々としたリビングは、家族全員が心地よくくつろげる空間を提供し、日々の疲れを癒します。また、各部屋には充実した収納スペースを確保し、家全体を整然と保つことが可能です。特にキッチン周りの動線は効率的な家事をサポートするように配慮されており、忙しい毎日でもストレスフリーな家事が実現できます。この間取りは、施主のライフスタイルに寄り添い、家族みんなが快適に暮らせる住まいを実現します。
5LDK・2階建
木の花ホーム
栃木県栃木市西方町本城62-3
0120-89-5087
4LDK / 2階建
心地良さとゆとりに満ちた4LDKの住まい
この2階建て4LDKの間取りは、施主が求める「ゆったりとくつろげるリビング」を中心に設計されています。広々としたリビングスペースは、家族がリラックスして過ごせる心地よい環境を提供します。また、採光を意識した大きな窓が配置されており、自然光がたっぷりと降り注ぎ、温かな雰囲気を演出します。リビングに面したオープンなLDKは、料理をしながら家族との会話も楽しめる設計です。2階のプライベートルームは、家族それぞれの時間を大切にする空間として機能します。この間取りは、日常のストレスを軽減し、リラックスしたライフスタイルを追求する住まいとなっています。
4LDK・2階建
木の花ホーム
栃木県栃木市西方町本城62-3
0120-89-5087
3LDK / 平屋
漫画家さんの仕事が充実できる家
施主の方が求めるのは、心地よく創作に没頭できる明るい住空間です。この平屋の3LDK設計は、大きな窓から豊富な自然光が差し込み、部屋全体を明るくします。アトリエスペースは特に打合せを重ねました。ほとんどが造作です。また、施主の趣味や仕事のための専用スペースを確保しつつも、生活スペースとの一体感を保ちます。防犯面でも安心できるよう、窓や入り口にはセキュリティ対策を施しており、安全性も兼ね備えています。創作のインスピレーションを刺激する住まいで、安心して日々の生活を楽しんでいただけます。
3LDK・平屋
延床面積:112m² [33.87坪]
タカオ設計
栃木県下野市石橋181-2
0285-53-6055
3LDK / 平屋
癒しと効率の調和 - 平屋3LDKの提案
この平屋の3LDKは、施主様の要望を完璧に満たす設計です。広々としたリビングルームはくつろぎの空間を提供し、家事スペースも効率的に配置されています。また、寝室の配置や水回りがLDKから離れていることで、帰宅や就寝時間のズレを気にせずに生活できる環境が整えられています。リラックスしながら暮らしを充実させる、施主のライフスタイルにぴったりな間取りとなっています。 お子様がこれからということもあり、子供部屋はあえて分離せず、のちに分けられるように計画しております。
3LDK・平屋
延床面積:89.85m² [27.17坪]
ロゴスホーム 宇都宮店
栃木県宇都宮市鶴田2-5-24 クレインズ21 1-B号室
011-558-1555
3LDK / 2階建
上質な暮らしを演出する3LDKの美しい空間
2階建ての3LDKは、ゆったりとくつろげるリビングや豊富な収納スペースを特徴としています。リビングは上質な時間を過ごすための大空間であり、ゲストを招く際も快適な空間を提供します。また、回遊導線を意識した配置や小上がりの畳スペースなど、使い勝手の良さも兼ね備えています。パントリーや土間収納などの収納スペースは整理整頓をサポートし、暮らしを快適にします。施主の要望を踏まえた設計は、上質な暮らしを演出し、心地良いライフスタイルを実現します。
3LDK・2階建
延床面積:119.08m² [36.02坪]
ロゴスホーム 宇都宮店
栃木県宇都宮市鶴田2-5-24 クレインズ21 1-B号室
011-558-1555
3LDK / 2階建
自然な流れと効率の調和3LDKの家
この2階建ての3LDKは、家事をスムーズに行える効率的な間取りと第一種換気システムを使いきれいな空気の流れを重視した設計が特徴です。回遊導線を意識し、家族それぞれにフォーカスを当てた導線を意識しております。広々としたリビングや各部屋へのアクセスが良く、生活動線を考慮した配置が機能性を高めます。家族が快適に暮らせるようなライフスタイルをサポートし、日々の生活を豊かにする間取りとしておすすめです。
3LDK・2階建
延床面積:117.61m² [35.57坪]
ロゴスホーム 宇都宮店
栃木県宇都宮市鶴田2-5-24 クレインズ21 1-B号室
011-558-1555
4LDK / 平屋
自然なくつろぎと効率。平屋4LDKで叶える家事ラクライフ
この平屋4LDKの間取りは、家事効率性とくつろぎの両立を追求したものです。ファミリークローゼットや豊富な収納スペースが整理整頓をサポートし、回遊導線が自然な移動を促します。リビングでは広々とした空間でゆったりとくつろげる一方、ランドリールームやタタミコーナーが日常の使い勝手を向上させます。施主の要望を踏まえ、家族みんなが快適に過ごせる生活を提案しています。
4LDK・平屋
延床面積:99.37m² [30.05坪]
コンチネンタルホーム
栃木県宇都宮市中今泉3-1-39
050-5448-5668
3LDK / 平屋
バリアフリー設計の平屋で家事ラク導線を実現!
この3LDKの平屋は、施主の要望を叶える理想の住空間です。広々としたリビングはくつろぎの場として、効率的な家事をサポートするキッチンや収納スペースが配置され、バリアフリー設計は高齢者や車椅子ユーザーにも快適な生活を提供します。内装や導線に工夫を凝らし、家事をスムーズにこなしながらリラックスできるライフスタイルを実現します。#平屋 #平屋暮らし #家事ラク導線
3LDK・平屋
延床面積:82.81m² [25.05坪]
コンチネンタルホーム
栃木県宇都宮市中今泉3-1-39
050-5448-5668
2LDK / 平屋
開放感溢れる一体感
この2LDKの平屋間取りは、ゆったりとくつろげるリビングを中心に配置し、家族の絆を育みます。ロフトを活用した収納スペースや趣味のスペースを設け、暮らしを豊かにする工夫が施されています。自然光が差し込む明るい空間は、穏やかな時間を過ごすための理想的な環境を提供します。
2LDK・平屋
延床面積:113.86m² [34.44坪]
タカオ設計
栃木県下野市石橋181-2
0285-53-6055
6LDK / 2階建
開放感あふれる6LDKの家
この2階建ての6LDKは、施主の要望を満たす快適な生活空間を提供します。吹き抜けがあり、開放感あふれるリビングはゆったりとくつろぐのに最適です。お風呂からの眺めも楽しめるため、日々の疲れを癒す贅沢な時間が過ごせるでしょう。家族や友人とのふれあいを大切にする方にぴったりの間取りです。
6LDK・2階建
延床面積:118m² [35.69坪]
タカオ設計
栃木県下野市石橋181-2
0285-53-6055
4LDK / 2階建
自分らしいスペース
4LDKの2階建て間取りは、趣味や仕事スペースを確保し、施主の個性を反映。明るく開放的な空間は、創造性を育み、多彩なライフスタイルをサポートします。
4LDK・2階建
延床面積:122.96m² [37.19坪]
タカオ設計
栃木県下野市石橋181-2
0285-53-6055
3LDK / 1.5階建
自然光溢れる、広々とした3LDKのくつろぎ空間
リビングエリアは暖かな自然光が差し込む広々とした空間で、施主のくつろぎを最優先に考えました。1.5階建てながらも使い勝手の良い3LDKの間取りは、家族の絆を深める居心地の良さを提供します。また、広々とした小屋裏収納スペースには、季節ごとの収納や思い出の品を大切に保管できるため、暮らしをさらに快適に彩ることでしょう。家族みんなが心地よく過ごせるライフスタイルを実現する、魅力あふれるプランです。
3LDK・1.5階建
延床面積:96.88m² [29.3坪]
タカオ設計
栃木県下野市石橋181-2
0285-53-6055
3LDK / 2階建
自動車愛好者のための快適な暮らしを実現する家
2階建ての3LDKで、施主の要望であるガレージを取り入れた間取りを提案します。狭小地に最適化された設計でありながら、車を愛する方々にとっては理想的な暮らしを実現します。ガレージを備えることで、愛車を安全に保管しながら快適な生活空間を確保し、使い勝手の良い間取りが施主のライフスタイルにぴったりとマッチします。
3LDK・2階建
延床面積:130.62m² [39.51坪]
タカオ設計
栃木県下野市石橋181-2
0285-53-6055
2LDK / 2階建
自然光溢れる2LDK―庭やバルコニーとの調和―
この2階建て2LDKは庭やバルコニーとの調和を重視し、自然光をたっぷり取り込んだ明るい設計が特徴です。階層を活かした2階リビングは狭小地でも開放感を演出し、居住空間に穏やかな明るさをもたらします。庭やバルコニーからの眺望や自然光の差し込みは、施主の要望を満たし、リラックスできる生活をサポートします。
2LDK・2階建
延床面積:97.3m² [29.43坪]
タカオ設計
栃木県下野市石橋181-2
0285-53-6055
4LDK / 平屋
「自然とつながる平屋ライフ」
この提案された4LDKの平屋間取りは、施主の要望を織り交ぜながら、趣味や仕事に打ち込むスペース、庭との一体感、そして子供たちが集中して勉強できる環境を叶えます。開放的な空間構成と自然光が豊富に取り入れられ、暮らしやすさと心地良さを追求しました。施主のライフスタイルを丁寧に考慮しながら、平屋の魅力を最大限に引き出したデザインとなっています。 #平屋
4LDK・平屋
延床面積:118.83m² [35.94坪]
タカオ設計
栃木県下野市石橋181-2
0285-53-6055
3LDK / 3階建
「屋上があり広々リビングと効率的な家事空間」
コンパクトながらも機能的な3LDK。リビングはゆとりを持ち、家事空間は効率的。屋上空間も利用可能で、都会の喧騒を忘れる癒やしの場となる。施主の要望を余すことなく叶え、快適なライフスタイルを提供します。
3LDK・3階建
延床面積:124.2m² [37.57坪]
タカオ設計
栃木県下野市石橋181-2
0285-53-6055
3LDK / 2階建
自然光満ちる3LDK、収納豊富な家
この2階建ての3LDKは、施主の要望を存分に反映させました。リビングはゆったりとした空間で、ピクチャーウィンドウからたくさんの自然光が差し込みます。収納スペースが豊富に確保されており、整理整頓がしやすく快適な生活を実現します。明るい設計と自然光に包まれた空間は、穏やかなライフスタイルをお楽しみいただけることでしょう。
3LDK・2階建
延床面積:98.53m² [29.8坪]
タカオ設計
栃木県下野市石橋181-2
0285-53-6055
3LDK / 1.5階建
開放感あふれる3LDKの暮らし
この1.5階建の3LDKは、施主の要望である「ゆったりとくつろげるリビング」と「開放感のある吹き抜け」を叶える設計です。無垢材や芦野石、鹿沼組子を用い、外とのつながりを強調しながらもプライバシーを守ります。リビングは広々としており、自然光がたっぷり差し込む空間は居心地よく、家族や友人と過ごす時間を豊かにします。吹き抜けからは上階の光が降り注ぎ、開放感あふれる空間を演出します。施主のライフスタイルに合わせたデザインで、静けさと温かさが満ちる住まいを提案しています。
3LDK・1.5階建
延床面積:236.2m² [71.45坪]
タカオ設計
栃木県下野市石橋181-2
0285-53-6055
4LDK / 2階建
自在な暮らしを紡ぐ4LDK。息づく趣味空間と学び舎、家族の笑顔が満ちるリビング。
2階建ての4LDKは施主の要望を織り交ぜ、ゆとりと機能性を両立。趣味や仕事に没頭する場所、子供たちが学びを楽しむコーナーが配置され、家族が集うリビングは広々としたくつろぎの空間として設計。ガレージと趣味空間がつながり、暮らしを彩る自由な時間を生み出す。
4LDK・2階建
延床面積:187.55m² [56.73坪]
タカオ設計
栃木県下野市石橋181-2
0285-53-6055
3LDK / 2階建
「自然光満ちる 3LDK、心地よい暮らしの空間」
広々としたリビングに差し込む自然光が心地よい空間を演出します。効率的な家事動線により、忙しい日常もスムーズにこなせます。スキップフロアーが生む開放感とプライバシーを兼ね備え、家族がゆったりとくつろげるリビング空間を提供します。グラフテクトによるデザインは、施主の要望を満たし、明るく快適な生活を叶える魅力的な住まいとなるでしょう。
3LDK・2階建
延床面積:123.58m² [37.38坪]
タカオ設計
栃木県下野市石橋181-2
0285-53-6055
4LDK / 2階建
快適な家事タイムを叶える4LDKの2階建住宅
この2階建て4LDKの間取りは、家事を効率的に行うことができるだけでなく、帰宅や就寝時間のズレを気にせずゆったりとくつろげるリビング空間が特長です。プライベートバルコニーや眺めの良いお風呂、ランドリールームなど施主の要望を丁寧に取り入れ、日常生活をより快適に過ごせる環境を提供しています。家族それぞれのライフスタイルやプライバシーを考慮した設計は、暮らしを豊かにする新しい体験を約束します。
4LDK・2階建
延床面積:245.15m² [74.15坪]
タカオ設計
栃木県下野市石橋181-2
0285-53-6055
3LDK / 2階建
開放的な光と空間が融合する3LDK設計
この2階建ての3LDK間取りは、施主の要望を踏まえ、ゆったりとくつろげるリビングエリアと吹き抜けが開放感を演出します。自然光がたっぷりと注ぎ込む明るい空間は、心地よい居住環境を提供し、プライベートバルコニーやロフトスペースなど、様々な過ごし方を可能にします。各部屋が機能的に配置され、ライフスタイルや快適さを重視した設計が施主のニーズを満たし、暮らしに新たな魅力を与えます。
3LDK・2階建
延床面積:153.29m² [46.37坪]
タカオ設計
栃木県下野市石橋181-2
0285-53-6055
3LDK / 2階建
中二階、2.5階で収納充実!中庭のある自然と調和する家
施主の要望に応え、収納スペースを豊富に配置しました。リビングは庭に面し、開放感と自然の一体感を演出。中庭やピットリビングも取り入れ、居心地の良さを追求しました。設計は2階建てで、3LDKの間取りがライフスタイルの快適さと豊かさを提供します。
3LDK・2階建
延床面積:96.04m² [29.05坪]
タカオ設計
栃木県下野市石橋181-2
0285-53-6055
3LDK / 2階建
プライベートリラックススペースと創造性を両立させる3LDKの階層住宅
この2階建ての3LDK間取りは、施主の要望を叶えるために設計されました。趣味や仕事に集中できるスペースを確保しつつ、広々としたバスルームではリラックスを楽しめます。また、プライバシーを重視した配置や外部収納、中庭を取り入れることで、居住空間全体が落ち着きと機能性を兼ね備えた環境を提供します。秘密基地のような隠れ家も設け、家族の絆や創造性を育む場を演出します。この設計は施主がリラックスしながら創造性を発揮し、充実したライフスタイルを楽しむことを可能にします。
3LDK・2階建
延床面積:97.81m² [29.58坪]
タカオ設計
栃木県下野市石橋181-2
0285-53-6055