閉じる

パナソニックホームズ北関東 栃木支店

光と風が織りなすモダンな暮らしの空間

J邸 | 物件エリア:下野市 | 家族構成:夫婦+子ども (4人家族)

パナソニックホームズ北関東 栃木支店|
本体価格(総施工費)

4,000~万円

※金額は購入当時のものです

この住まいは、光と風を取り込む設計が特徴である。リビングには大きな窓があり、自然光がたっぷりと差し込む開放的な空間となっている。シンプルなインテリアがモダンな雰囲気を引き立て、心地よくリラックスできる。キッチンは広々としたカウンターを備え、モダンなデザインが食事の準備を楽しくする。ダイニング・キッチン上部の間接照明が柔らかな雰囲気を演出している。和室は白の建具が清潔感を漂わせ、自然光が差し込む明るさが特徴である。玄関ホールには観葉植物が配され、訪れる人々を温かく迎える。この住まいは、築き上げられたモダンテイストの中にヴィンテージやアンティークの味わいを加えた、家族全員が快適に過ごせる空間である。

シンプルモダン スタイリッシュ ヴィンテージ・アンティーク ホテルライク ウッドモダン
  • 光あふれる開放的なリビング

  • モダンデザインを際立たせるキッチン

  • 和の風情を感じる明るい和室

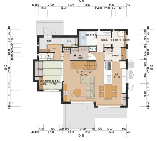
間取り 4LDK / 2階建

構造・工法 軽量鉄骨造

敷地面積 229.12m² [69.3坪]

延床面積 137.57m² [41.61坪]

施工面積 137.57m² [41.61坪]

オーダー 完全自由設計(フルオーダー)

竣工 2024年12月

施工期間 4ヶ月

駐車場台数 3台

屋根 釉Cフラット瓦

外壁 キラテックタイル

バス Panasonic

トイレ Panasonic

キッチン Panasonic

照明 Panasonic

施工社名 パナソニックホームズ北関東(株)

商品名 カサートプレミアム

施工例のご紹介

開放感のある大きな窓が特徴の明るいLDK空間。落ち着いたトーンのインテリアが心地よい雰囲気を演出する。

LDK

開放感のある大きな窓が特徴の明るいLDK空間。落ち着いたトーンのインテリアが心地よい雰囲気を演出する。

大きな窓からたっぷり光が差し込む開放的なリビング。シンプルなインテリアがモダンな雰囲気を引き立て、リラックスできる空間となっている。

リビング

大きな窓からたっぷり光が差し込む開放的なリビング。シンプルなインテリアがモダンな雰囲気を引き立て、リラックスできる空間となっている。

開放的なLDKは自然光が差し込み、明るい空間である。モダンなインテリアが調和し、家族が集う場として最適な設計となっている。

LDK

開放的なLDKは自然光が差し込み、明るい空間である。モダンなインテリアが調和し、家族が集う場として最適な設計となっている。

モダンなデザインのキッチンエリア。広々としたカウンターと開放的なスペースが特徴で、食事の準備がしやすい。ダイニング・キッチン上部には間接照明を設置し心地よい雰囲気を演出している。

キッチン

モダンなデザインのキッチンエリア。広々としたカウンターと開放的なスペースが特徴で、食事の準備がしやすい。ダイニング・キッチン上部には間接照明を設置し心地よい雰囲気を演出している。

シンプルでモダンな和室。大きな窓から自然光が差し込み、明るく開放的な空間が広がる。白の建具が清潔感を演出する。

和室

シンプルでモダンな和室。大きな窓から自然光が差し込み、明るく開放的な空間が広がる。白の建具が清潔感を演出する。

モダンで落ち着いた印象を与える玄関ホール。壁のアートと観葉植物が温かみを添え、来訪者を迎え入れる空間となっている。

玄関ホール

モダンで落ち着いた印象を与える玄関ホール。壁のアートと観葉植物が温かみを添え、来訪者を迎え入れる空間となっている。

モダンなデザインの寝室。シンプルで洗練されたインテリアにより、落ち着いた雰囲気を感じさせる。採光が十分に取り入れられた快適な空間である。

寝室

モダンなデザインの寝室。シンプルで洗練されたインテリアにより、落ち着いた雰囲気を感じさせる。採光が十分に取り入れられた快適な空間である。

寝室と隣接して設けられた書斎スペース。ちょっとした作業スペースとしても便利に使える空間。

書斎

寝室と隣接して設けられた書斎スペース。ちょっとした作業スペースとしても便利に使える空間。

キッチン▶家事室▶ランドリー▶洗面室と回遊できる家事動線です。家事以外でもスタディコーナーとしてお子様が活用することもでき、壁のアクセントクロス部分はマグネット対応の為、お手紙などの掲示も可能です。

家事室

キッチン▶家事室▶ランドリー▶洗面室と回遊できる家事動線です。家事以外でもスタディコーナーとしてお子様が活用することもでき、壁のアクセントクロス部分はマグネット対応の為、お手紙などの掲示も可能です。

モダンで機能的な洗面スペース。シンプルなデザインと広々としたカウンターが特徴で、洗面や身支度がしやすい環境を提供。リラックスムードのバスルームと直結した配置。

洗面スペース

モダンで機能的な洗面スペース。シンプルなデザインと広々としたカウンターが特徴で、洗面や身支度がしやすい環境を提供。リラックスムードのバスルームと直結した配置。

間取り

4LDK / 2階建

1階

1階

2階

2階

パナソニックホームズ北関東 栃木支店の他の施工例

会社概要

会社名
パナソニックホームズ北関東 栃木支店
施工対応エリア
栃木県・群馬県の全域、茨城県・埼玉県の一部
参考坪単価
80万円〜120万円
会社所在地
栃木県宇都宮市平出町4067-3
電話番号
027-350-8746
このページを共有する
LINEで送る

閲覧履歴

閲覧した工務店はまだありません

来場キャンペーン

AmazonGiftCard
住宅イベント
住宅会社
モデルハウス

いずれかに来場・来店すると

最大5,000円もらえます

プレゼント方法
STEP1 1回の来場・来店で1,000
STEP2 2回の来場・来店で2,000
STEP3 3回の来場・来店で5,000

くふうイエタテ会員登録(無料)のうえ、Webイエタテでご予約し、住宅イベントやモデルハウス、住宅会社に来場・来店するとAmazonギフト券最大5,000円分(Eメールタイプ)を 先着200名様にプレゼント!※2026年2月28日までのご来場が対象となります

応募条件

このキャンペーンは注文住宅の購入やリノベーションの施工を検討している方を対象にしております。対象外の方のご応募はご遠慮ください。当社が不正な応募と判断した場合、 住宅会社への迷惑となる行為が確認された場合にはご応募が無効となり、以降のキャンペーン参加をお断りさせていただく場合がございます。あらかじめご了承ください。

本キャンペーンはWEBくふうイエタテ会員(無料)限定のキャンペーンとなります。必ずログインしてからご予約ください。非会員や電話予約につきましては対象外となります。

しずおかオンラインおよび、くふう住まい/くふうイエタテ主催のキャンペーンに過去10回以上ご参加されている方は応募対象外とさせていただきます。

1世帯につき1IDのみが応募対象となります。また、参加回数は同一IDからの参加についてのみカウントされます。 同一世帯の方が複数IDでご予約された場合も、応募条件を満たした1IDのみが応募有効となり、それ以外のIDでのご予約・ご参加については対象外となります。 なお、同一世帯の複数のIDから予約されたイベント・モデルハウス・住宅会社につきましては合算はできかねますのでご注意ください。4回目以降の予約にはプレゼントはつきません。

ご家族複数名での見学や同じメールアドレスの利用、同じご住所にお住まい、もしくは同居をご予定している場合、本企画では、それぞれを同一世帯1組様とみなします。 また、その他入力いただいた情報により、編集部が同一世帯とみなす場合がございます。

予約後、キャンセルされた場合は無効となります。イベントへの来場が確認できなかった場合や、スタッフから十分な説明を受けず途中退場した場合など、 イベントへご参加いただいたとの判断ができかねる場合、 利用者アンケートの回答が期限内に無い場合も、無効とさせていただきます。

ギフト券はキャンペーン終了後おおよそ1ヶ月以内に順次発送の予定です。送付状況など、発送に関する個別のお問合せにつきましてはお答えできかねますので、 あらかじめご了承ください。また、ギフト券はマイページのプロフィール欄にご登録されているメールアドレスに届きます。 入力されたメールアドレスが不明な場合や、何らかの理由で送付不可能である場合、 送付が取り消され、その時点で応募自体が無効となりますのでご注意ください。

メール送付後におきまして、何らかの理由でメールが受信されなかった場合、また、受信後のメール削除や紛失などがあった場合は、 いかなる理由によりましても弊社では責任を負いかねます。ご了承ください。

記載の【キャンペーン対象期間】とは【予約のお申し込みをされた日】を指します。対象期間外に予約のお申し込みをされた場合には、キャンペーン対象外となります。 また、ご来場の有効期間は2026年3月7日までとなりますので、2026年3月8日以降に開催のイベントやモデルハウス見学への予約もキャンペーン対象外となりますので、ご注意ください。

注意事項

※本企画は、日本国内在住で契約者本人が居住するための住宅の購入を検討している一般の方を対象としております。また、契約者が法人の場合は対象外となります。

※[不動産業における景品類の提供の制限に関する公正競争規約]により、各住宅会社で本企画とは別に行っているプレゼント企画の賞品と本キャンペーンの賞品の両方は受け取れない場合がございます。 詳しくはくふうイエタテ編集部にお問合せください。

※携帯電話(スマートフォン以外)・PHSからの応募はできません。またスマートフォンの場合も、一部対応できない機種があります。 応募可能なインターネット接続環境や端末は、お客さまご自身でご用意ください。また、通信料はお客さま負担となります。

※ご家族複数名での見学や同じメールアドレスの利用、同じご住所にお住まい、もしくは同居を予定している場合、本企画では、それぞれを同一世帯1組様とみなします。 なお、入力いただいた情報により、編集部が同一世帯とみなす場合がございます。また、本人以外の方のメールアドレスでの応募、代行での参加手続きは無効といたします。

※未成年もしくは学生の方のみでのモデルハウス見学もしくはイベントへの参加は、キャンペーンの対象外となりますのでご注意ください。

※本企画は、当社の都合により、キャンペーン期間に関係なく、事情によりキャンペーンを中止する場合がございます。 あらかじめご了承ください。当社は、本企画の変更・終了等により生じたいかなる損害等についても、一切責任を負うものではありません。

※ご入力いただきましたメールアドレスに不備がある場合、当選を無効とさせていただきます。