閉じる

ジェネラルアメリカンホーム

海を感じるサーファーズデザインのアメリカンハウス

I邸 | 物件エリア:半田市 | 家族構成:夫+妻+長女+長男

ジェネラルアメリカンホーム【デザイン住宅、輸入住宅、インテリア】
本体価格

3,000~万円

※金額は購入当時のものです

大好きな海をイメージしたアメリカンハウスに住みたいという想いのもと、結婚を機にマイホーム計画をスタートしたIさん夫妻。インスタで『ジェネラルアメリカンホーム』のことを知り、オープンハウスへ。「いくつか建築会社を巡っていましたが、見た瞬間に違いを感じたんです。実際に暮らすオーナーさんから、本当に完全自由設計だったなどの話を聞くうち、気がついたら契約していました」とIさん。建築が始まる前に新婚旅行でハワイを訪れ、現地の住宅も参考に外壁の色などを決めたという。I邸の基本デザインはサーファーズハウス。ブルーと白を基調に無垢のパインを組み合わせ、家全体を明るいイメージに仕上げている。階段を上るとセカンドリビングがあり、子どもの遊び場に。セントラル空調を取り入れ、温度差のない暮らしも実現。デザイン、間取り、温度環境も自慢の住まいが完成し、うれしそうだ。

西海岸風・サーファーズハウス アメリカン ハワイアン

本体価格 3,000~万円

間取り 4LDK / 2階建

構造・工法 2×4工法

敷地面積 227.17㎡[68.72坪]

延床面積 【128.00㎡[38.72坪](1階69.98㎡、2階58.02㎡)】

施工期間 8か月

屋根 アスファルトシングルス

外壁 ラップサイディング

パイン

内壁 クロス

天井 クロス

断熱材 ロックウール

バス LIXIL

トイレ LIXIL

キッチン 造作

設備・施設・その他 全館空調システム

施工社名 ジェネラルアメリカンホーム

施工例のご紹介

ブルーを基調にしたサーファーズハウスの外観。インナーガレージも検討したが、ハンモックに揺られながら、芝生の庭で子どもが遊ぶ姿を見るという夢を優先した

ブルーを基調にしたサーファーズハウスの外観。インナーガレージも検討したが、ハンモックに揺られながら、芝生の庭で子どもが遊ぶ姿を見るという夢を優先した

バーベキューができるゆったりとしたカバードポーチは、家づくりで叶えたかったことの一つ

バーベキューができるゆったりとしたカバードポーチは、家づくりで叶えたかったことの一つ

ダイニング横には来客用の和室を完備。子どもの昼寝スペースなど、多目的に活用できる

ダイニング横には来客用の和室を完備。子どもの昼寝スペースなど、多目的に活用できる

キッチンからの眺め。天井にハンモックを吊るして遊び心あふれるリビングダイニングに

キッチンからの眺め。天井にハンモックを吊るして遊び心あふれるリビングダイニングに

吹抜けのリビング。海をイメージしたターコイズブルーのアクセントクロス

吹抜けのリビング。海をイメージしたターコイズブルーのアクセントクロス

吹き抜けに面した2階のセカンドリビング。海辺の夕日を描いた壁紙など、海が大好きなことが伝わってくる

吹き抜けに面した2階のセカンドリビング。海辺の夕日を描いた壁紙など、海が大好きなことが伝わってくる

洗面脱衣室は南国リゾートをイメージして壁紙などをセレクト。洗面台や収納は造作したもの

洗面脱衣室は南国リゾートをイメージして壁紙などをセレクト。洗面台や収納は造作したもの

トイレもIさん夫妻にとって自慢のエリア。星条旗の赤、青、白を取り入れ、ポップなデザインに

トイレもIさん夫妻にとって自慢のエリア。星条旗の赤、青、白を取り入れ、ポップなデザインに

住宅性能

耐震性 耐震等級3相当

通風・換気性 換気システム 第一種換気

遮音性 ドア・サッシ、樹脂サッシ

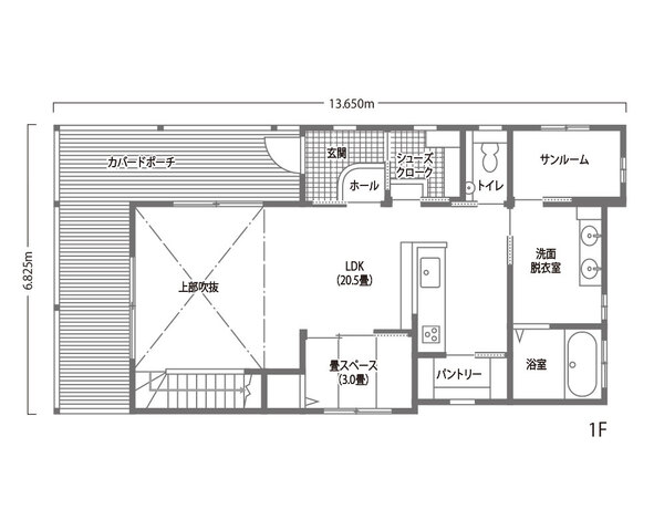
間取り

4LDK / 2階建

1階

1階

みんなでバーベキューができるよう、広めのカバードポーチを設置。玄関は2WAYで扉を開けるとすぐLDKがある。キッチンの背面に洗濯物を干すサンルームや水回りをまとめた家事ラク間取りで、料理をしながら1階を見渡せる。

2階

2階

階段を上るとホールがあり、セカンドリビングや子どもの遊び場として活用できる。吹き抜けを介して1階のリビングともつながり、主寝室や子ども室と扉一枚で行き来できる。

お客様の声

お客様の声

Iさま

夫+妻+長女+長男

実際に建ててみた感想

アメリカンデザインをウリにするハウスメーカー行っても、何か違う感じがしていたんです。そんな時、何気なくインスタグラムに「#アメリカンハウス」と打ち込んだところ、カッコイイ写真がいくつも目に留まって。どれも『ジェネラルアメリカンホーム』が設計デザインした住宅でした。DMを送ると、AIかと思うくらいすぐに返信が来て驚きましたが、細かな装飾部分にもこだわったオープンハウスを見て、すべての不安が消えました。完成後は、家づくりを考えていた友人や妹など、みんなにジェネラルさんをおすすめしています。

家を建てたきっかけ

家づくりを考えるようになったのは、結婚がきっかけです。ふたりとも海が好きなので、完全自由設計で海をイメージしたデザインの家を建てたいと思い、インターネットやSNSなどを活用して建築会社を探しました。

ジェネラルアメリカンホームからのコメント

インテリアデザイナー 小西美雄さん

いろいろなオープンハウスを見学したIさんご夫妻。そこでいいなと思ったデザインや仕様も盛り込み、海をイメージしたアメリカンハウスをつくり上げました。階段のスピンドルをはじめ、細かな部分にもこだわり、リアルアメリカンを表現しています。

ジェネラルアメリカンホームの他の施工例

会社概要

会社名
ジェネラルアメリカンホーム
施工対応エリア
愛知県・岐阜県・三重県の全域、静岡県西部・中部
参考坪単価
65万円〜75万円
会社所在地
愛知県刈谷市東境町上野69-7
電話番号
050-5268-8457

※お客さま専用ダイヤルのため、営業活動などでのご利用はお控えください

このページを共有する
LINEで送る

閲覧履歴

閲覧した工務店はまだありません

来場キャンペーン

AmazonGiftCard
住宅イベント
住宅会社
モデルハウス

いずれかに来場・来店すると

最大5,000円もらえます

プレゼント方法
STEP1 1回の来場・来店で1,000
STEP2 2回の来場・来店で2,000
STEP3 3回の来場・来店で5,000

くふうイエタテ会員登録(無料)のうえ、Webイエタテでご予約し、住宅イベントやモデルハウス、住宅会社に来場・来店するとAmazonギフト券最大5,000円分(Eメールタイプ)を 先着200名様にプレゼント!※2026年5月31日までのご来場が対象となります

応募条件

このキャンペーンは注文住宅の購入やリノベーションの施工を検討している方を対象にしております。対象外の方のご応募はご遠慮ください。当社が不正な応募と判断した場合、 住宅会社への迷惑となる行為が確認された場合にはご応募が無効となり、以降のキャンペーン参加をお断りさせていただく場合がございます。あらかじめご了承ください。

本キャンペーンはWEBくふうイエタテ会員(無料)限定のキャンペーンとなります。必ずログインしてからご予約ください。非会員や電話予約につきましては対象外となります。

しずおかオンラインおよび、くふう住まい/くふうイエタテ主催のキャンペーンに過去10回以上ご参加されている方は応募対象外とさせていただきます。

1世帯につき1IDのみが応募対象となります。また、参加回数は同一IDからの参加についてのみカウントされます。 同一世帯の方が複数IDでご予約された場合も、応募条件を満たした1IDのみが応募有効となり、それ以外のIDでのご予約・ご参加については対象外となります。 なお、同一世帯の複数のIDから予約されたイベント・モデルハウス・住宅会社につきましては合算はできかねますのでご注意ください。4回目以降の予約にはプレゼントはつきません。

ご家族複数名での見学や同じメールアドレスの利用、同じご住所にお住まい、もしくは同居をご予定している場合、本企画では、それぞれを同一世帯1組様とみなします。 また、その他入力いただいた情報により、編集部が同一世帯とみなす場合がございます。

予約後、キャンセルされた場合は無効となります。イベントへの来場が確認できなかった場合や、スタッフから十分な説明を受けず途中退場した場合など、 イベントへご参加いただいたとの判断ができかねる場合、 利用者アンケートの回答が期限内に無い場合も、無効とさせていただきます。

ギフト券はキャンペーン終了後おおよそ1ヶ月以内に順次発送の予定です。送付状況など、発送に関する個別のお問合せにつきましてはお答えできかねますので、 あらかじめご了承ください。また、ギフト券はマイページのプロフィール欄にご登録されているメールアドレスに届きます。 入力されたメールアドレスが不明な場合や、何らかの理由で送付不可能である場合、 送付が取り消され、その時点で応募自体が無効となりますのでご注意ください。

メール送付後におきまして、何らかの理由でメールが受信されなかった場合、また、受信後のメール削除や紛失などがあった場合は、 いかなる理由によりましても弊社では責任を負いかねます。ご了承ください。

記載の【キャンペーン対象期間】とは【予約のお申し込みをされた日】を指します。対象期間外に予約のお申し込みをされた場合には、キャンペーン対象外となります。 また、ご来場の有効期間は2026年6月7日までとなりますので、2026年6月8日以降に開催のイベントやモデルハウス見学への予約もキャンペーン対象外となりますので、ご注意ください。

注意事項

※本企画は、日本国内在住で契約者本人が居住するための住宅の購入を検討している一般の方を対象としております。また、契約者が法人の場合は対象外となります。

※[不動産業における景品類の提供の制限に関する公正競争規約]により、各住宅会社で本企画とは別に行っているプレゼント企画の賞品と本キャンペーンの賞品の両方は受け取れない場合がございます。 詳しくはくふうイエタテ編集部にお問合せください。

※携帯電話(スマートフォン以外)・PHSからの応募はできません。またスマートフォンの場合も、一部対応できない機種があります。 応募可能なインターネット接続環境や端末は、お客さまご自身でご用意ください。また、通信料はお客さま負担となります。

※ご家族複数名での見学や同じメールアドレスの利用、同じご住所にお住まい、もしくは同居を予定している場合、本企画では、それぞれを同一世帯1組様とみなします。 なお、入力いただいた情報により、編集部が同一世帯とみなす場合がございます。また、本人以外の方のメールアドレスでの応募、代行での参加手続きは無効といたします。

※未成年もしくは学生の方のみでのモデルハウス見学もしくはイベントへの参加は、キャンペーンの対象外となりますのでご注意ください。

※本企画は、当社の都合により、キャンペーン期間に関係なく、事情によりキャンペーンを中止する場合がございます。 あらかじめご了承ください。当社は、本企画の変更・終了等により生じたいかなる損害等についても、一切責任を負うものではありません。

※ご入力いただきましたメールアドレスに不備がある場合、当選を無効とさせていただきます。