閉じる

ジェネラルアメリカンホーム

家のデザインもライフスタイルもアメリカ流でのびのび

S邸 | 物件エリア:岡崎市 | 家族構成:夫+妻+長女+長男+次男+犬+猫

ジェネラルアメリカンホーム【デザイン住宅、ペット、ガレージ】
本体価格

3,000~万円

※金額は購入当時のものです

アメ車を愛する父の影響で、子どもの頃からアメリカンカルチャーにハマっていたというSさん。家づくりでもリアルアメリカンを求めるのは、自然な流れだったという。「愛知県にあるマグネットダイナーがまさに思い描いていた雰囲気だったので、お店へ行ってどこで建てたのか聞いたんです。そこで紹介いただいたのが『ジェネラルアメリカンホーム』でした」とSさん。オープンハウスで見学したOB宅も参考にしながら、子どもたち3人の個室と、ガレージを一望できるホビールームも備えた二階建てを完成させた。一緒に暮らす愛犬や愛猫のことを考え、階段下にペットハウスをつくったり、裏庭とウッドデッキを設けて外でも遊べるようにしたり。「愛犬が庭とLDKを自由に出入りするのに合わせ、私たちも土足で過ごしています」とSさん。家のデザインはもちろん、ライフスタイルまでアメリカ流だ。

西海岸風・サーファーズハウス アメリカン

本体価格 3,000~万円

間取り 5LDK / 2階建

構造・工法 2×4工法

敷地面積 330.11㎡

延床面積 172.46㎡[52.17坪](1階86.23㎡、2階 86.23㎡)

施工期間 8か月

屋根 アスファルトシングルス

外壁 ラップサイディング

パイン

内壁 クロス

天井 クロス

断熱材 ロックウール

バス LIXIL

トイレ LIXIL

キッチン オーダー

照明 KOIZUMI

設備・施設・その他 全館空調システム

施工社名 ジェネラルアメリカンホーム

施工例のご紹介

外観はクリームイエローのラップサイディングが特徴的な、本場アメリカンハウス

外観はクリームイエローのラップサイディングが特徴的な、本場アメリカンハウス

落ち着いた色合いのボルドーパインの無垢床と、ブルーグレーの壁紙を組み合わせた25.8畳のLDK

落ち着いた色合いのボルドーパインの無垢床と、ブルーグレーの壁紙を組み合わせた25.8畳のLDK

一緒に暮らす動物たちのことを考え、階段下にペットハウスをつくり、LDKとつながるウッドデッキも設けた

一緒に暮らす動物たちのことを考え、階段下にペットハウスをつくり、LDKとつながるウッドデッキも設けた

家族5人が横並びで食事ができる広さのアイランドキッチン。カップボードと共にアメリカから取り寄せたもの

家族5人が横並びで食事ができる広さのアイランドキッチン。カップボードと共にアメリカから取り寄せたもの

インナーガレージの横に設けたホビールーム。「ガラス越しに愛車のインパラを眺めるのが至福の時間です」とご主人

インナーガレージの横に設けたホビールーム。「ガラス越しに愛車のインパラを眺めるのが至福の時間です」とご主人

2階にある7.2畳の主寝室には、夫婦それぞれのウォークインクローゼットが備わっている

2階にある7.2畳の主寝室には、夫婦それぞれのウォークインクローゼットが備わっている

奥さま専用のウォークインクローゼット。壁一面の造作収納は、置くものに合わせて寸法を細かく指定したそう

奥さま専用のウォークインクローゼット。壁一面の造作収納は、置くものに合わせて寸法を細かく指定したそう

子どもたちが帰宅後、すぐ鞄などを置けるよう玄関にロッカーを造作。左側にはシューズクロークがあり、ガレージともつながっている

子どもたちが帰宅後、すぐ鞄などを置けるよう玄関にロッカーを造作。左側にはシューズクロークがあり、ガレージともつながっている

住宅性能

耐震性 耐震等級3相当

通風・換気性 換気システム 第一種換気

間取り

5LDK / 2階建

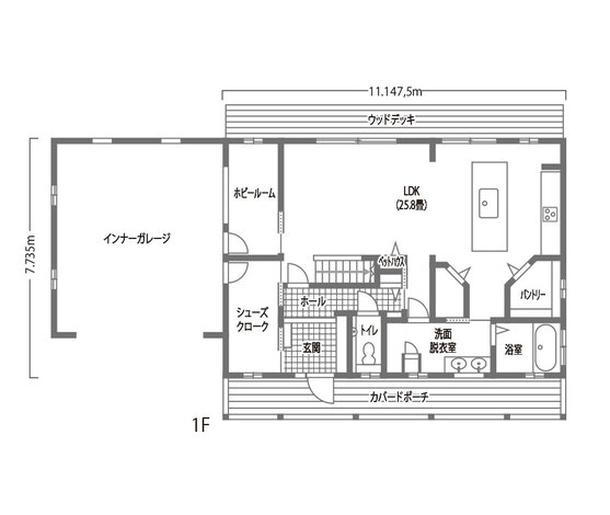
1階

1階

玄関、リビング、ダイニングキッチン、バスルームなどをぐるぐると移動しながら暮らせる回遊型の間取り。インナーガレージは車2台分の広さで、玄関横のシューズクロークのほか、ホビールームからも行き来できる

2階

2階

階段を囲むように主寝室と、3人子どもたちの部屋をレイアウト。将来、家族が増えることも想定し、個室を一つ多い4部屋にした。主寝室には夫婦それぞれのウォークインクローゼットがあり、奥さま用は主寝室と同等の広さ

お客様の声

お客様の声

Sさま

夫+妻+長女+長男+次男+犬+猫

実際に建ててみた感想

アメリカンな住宅をネットで調べたら、愛知県内にある飲食店「マグネットダイナー」が本場さながらのデザインで有名でした。こちらを建てたのは『ジェネラルアメリカンホーム』さんだと知り、広いガレージ付きのアメリカンハウスを実現できる土地探しから依頼しました。外壁や内装のデザインはもちろん、収納も既製品を使わずに自分で測定してオーダーするなど、隅々までこだわりことができ、もう一軒建てたいと思うほど、家づくりが楽しかったです。

家を建てたきっかけ

賃貸マンションに家族5人で暮らしていましたが、子どもたちが成長するにつれて手狭に感じるようになって。アメ車やアメリカンカルチャーが大好きなので、建てるならアメリカンハウスと決めていました。

ジェネラルアメリカンホームからのコメント

営業スタッフ 間瀬 英嗣さん

アメ車とアメリカンカルチャーを愛するSさん。ガレージの横にホビールームを設け、愛車を眺めながら趣味の時間を楽しめるようにしました。バーカウンターのようなアイランドキッチン、階段下を活用したペットハウスなど、見どころいっぱいです。

ジェネラルアメリカンホームの他の施工例

会社概要

会社名
ジェネラルアメリカンホーム
施工対応エリア
愛知県・岐阜県・三重県の全域、静岡県西部・中部
参考坪単価
65万円〜75万円
会社所在地
愛知県刈谷市東境町上野69-7
電話番号
050-5268-8457

※お客さま専用ダイヤルのため、営業活動などでのご利用はお控えください

このページを共有する
LINEで送る

閲覧履歴

閲覧した工務店はまだありません

来場キャンペーン

AmazonGiftCard
住宅イベント
住宅会社
モデルハウス

いずれかに来場・来店すると

最大5,000円もらえます

プレゼント方法
STEP1 1回の来場・来店で1,000
STEP2 2回の来場・来店で2,000
STEP3 3回の来場・来店で5,000

くふうイエタテ会員登録(無料)のうえ、Webイエタテでご予約し、住宅イベントやモデルハウス、住宅会社に来場・来店するとAmazonギフト券最大5,000円分(Eメールタイプ)を 先着200名様にプレゼント!※2026年5月31日までのご来場が対象となります

応募条件

このキャンペーンは注文住宅の購入やリノベーションの施工を検討している方を対象にしております。対象外の方のご応募はご遠慮ください。当社が不正な応募と判断した場合、 住宅会社への迷惑となる行為が確認された場合にはご応募が無効となり、以降のキャンペーン参加をお断りさせていただく場合がございます。あらかじめご了承ください。

本キャンペーンはWEBくふうイエタテ会員(無料)限定のキャンペーンとなります。必ずログインしてからご予約ください。非会員や電話予約につきましては対象外となります。

しずおかオンラインおよび、くふう住まい/くふうイエタテ主催のキャンペーンに過去10回以上ご参加されている方は応募対象外とさせていただきます。

1世帯につき1IDのみが応募対象となります。また、参加回数は同一IDからの参加についてのみカウントされます。 同一世帯の方が複数IDでご予約された場合も、応募条件を満たした1IDのみが応募有効となり、それ以外のIDでのご予約・ご参加については対象外となります。 なお、同一世帯の複数のIDから予約されたイベント・モデルハウス・住宅会社につきましては合算はできかねますのでご注意ください。4回目以降の予約にはプレゼントはつきません。

ご家族複数名での見学や同じメールアドレスの利用、同じご住所にお住まい、もしくは同居をご予定している場合、本企画では、それぞれを同一世帯1組様とみなします。 また、その他入力いただいた情報により、編集部が同一世帯とみなす場合がございます。

予約後、キャンセルされた場合は無効となります。イベントへの来場が確認できなかった場合や、スタッフから十分な説明を受けず途中退場した場合など、 イベントへご参加いただいたとの判断ができかねる場合、 利用者アンケートの回答が期限内に無い場合も、無効とさせていただきます。

ギフト券はキャンペーン終了後おおよそ1ヶ月以内に順次発送の予定です。送付状況など、発送に関する個別のお問合せにつきましてはお答えできかねますので、 あらかじめご了承ください。また、ギフト券はマイページのプロフィール欄にご登録されているメールアドレスに届きます。 入力されたメールアドレスが不明な場合や、何らかの理由で送付不可能である場合、 送付が取り消され、その時点で応募自体が無効となりますのでご注意ください。

メール送付後におきまして、何らかの理由でメールが受信されなかった場合、また、受信後のメール削除や紛失などがあった場合は、 いかなる理由によりましても弊社では責任を負いかねます。ご了承ください。

記載の【キャンペーン対象期間】とは【予約のお申し込みをされた日】を指します。対象期間外に予約のお申し込みをされた場合には、キャンペーン対象外となります。 また、ご来場の有効期間は2026年6月7日までとなりますので、2026年6月8日以降に開催のイベントやモデルハウス見学への予約もキャンペーン対象外となりますので、ご注意ください。

注意事項

※本企画は、日本国内在住で契約者本人が居住するための住宅の購入を検討している一般の方を対象としております。また、契約者が法人の場合は対象外となります。

※[不動産業における景品類の提供の制限に関する公正競争規約]により、各住宅会社で本企画とは別に行っているプレゼント企画の賞品と本キャンペーンの賞品の両方は受け取れない場合がございます。 詳しくはくふうイエタテ編集部にお問合せください。

※携帯電話(スマートフォン以外)・PHSからの応募はできません。またスマートフォンの場合も、一部対応できない機種があります。 応募可能なインターネット接続環境や端末は、お客さまご自身でご用意ください。また、通信料はお客さま負担となります。

※ご家族複数名での見学や同じメールアドレスの利用、同じご住所にお住まい、もしくは同居を予定している場合、本企画では、それぞれを同一世帯1組様とみなします。 なお、入力いただいた情報により、編集部が同一世帯とみなす場合がございます。また、本人以外の方のメールアドレスでの応募、代行での参加手続きは無効といたします。

※未成年もしくは学生の方のみでのモデルハウス見学もしくはイベントへの参加は、キャンペーンの対象外となりますのでご注意ください。

※本企画は、当社の都合により、キャンペーン期間に関係なく、事情によりキャンペーンを中止する場合がございます。 あらかじめご了承ください。当社は、本企画の変更・終了等により生じたいかなる損害等についても、一切責任を負うものではありません。

※ご入力いただきましたメールアドレスに不備がある場合、当選を無効とさせていただきます。