愛知県三河エリア

工務店・新築・一戸建て・注文住宅・リノベ会社を検索できるくふうイエタテ

注文住宅、リフォーム住宅会社を探す

住宅会社 住宅イベント モデルハウス リフォーム・リノベーション 土地・建売 住まいのプロ 動画 家づくりガイド くふうイエタテカウンター
施工対応エリア
愛知県全域
電話番号
050-5268-8442
ジャンル
新築 、 リフォーム 、 土地相談
資料請求無料 検討会社に追加する
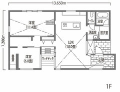
2LDK | 平屋

ノイズレスな空間に時間がゆっくりと流れる平屋の家

1階

小屋裏

日本住建 ノイズレスな空間に時間がゆっくりと流れる平屋の家 1階
日本住建 ノイズレスな空間に時間がゆっくりと流れる平屋の家 小屋裏

間取り提案

施主からの希望・要望

  • ゆったりとくつろげるリビング
  • 家事が効率的にできる
  • プライバシーを確保できる

スタッフからのコメント

余分な線や色をなるべく減らして生まれたノイズレスな心地よさ。たおやかな木目の優しさと温かみのある色、足裏の木の感触が表情をほころばせてくれます。目線の先には窓越しの植栽が季節の移ろいを映し、静かに、そしてゆっくりと時の流れを刻んでいきます。

DATA

階数 平屋 延床面積 85.29m² [25.8坪] 敷地面積 167.93m² [50.79坪]
間取り 2LDK
1階 ---
小屋裏 ---
施工面積 ---
家族構成 --- 設計者名 ---
#平屋 #モデルハウス #書斎 #2LDK #コンパクト #中庭 #中庭のある家 #吹抜け #吹抜けのある家

日本住建に「間取り」や「家づくりの相談」ができます。 この会社に来店予約をする

この間取りはこちらのモデルハウスでご覧いただけます

ノイズレスな空間に時間がゆっくりと流れる平屋の家

平屋に憧れるけど、広い土地がないと建てられないでしょうと諦めている人も多いはず。そんな人に見てほしいとオープンしたのが「知立・弘栄の家」モデルハウスだ。50坪の土地に建つ25坪の平屋は、外観は窓の少ないスタイリッシュなデザインで、室内は和と北欧がMIXしたジャパンディスタイルでコーディネートされている。ベージュのクロスに間接照明が穏やかに反射するLDKは、フローリングに無垢のカエデカバを採用し、それに合わせて家具や照明をセレクトしてやさしい雰囲気に仕上げた。無駄な線や色を排除したノイズレスな空間に時間がゆっくりと流れ、随所に粗々しい質感のタイルを採用したことで程よいリズムが生まれた。また、自然の光と緑を感じながら心地よく暮らせるよう大小のピクチャーウインドウを効果的に配置することによって、より開放的に過ごせる。『日本住建』ならではの高いレベルの断熱、気密性能を体感してもらうために、真夏や真冬にも足を運んで居心地の良さを確かめてほしい。

モデルハウスを詳しくみる
  • エリア 知立市
  • 営業時間 10:00〜17:00
  • 休日 火・水曜日
  • タイプ デザイン住宅、省エネ住宅・高性能住宅、平屋