愛知県三河エリア
他のエリア
工務店・新築・一戸建て・注文住宅・リノベ会社を検索できるくふうイエタテ
家族構成:夫+妻+長女+次女
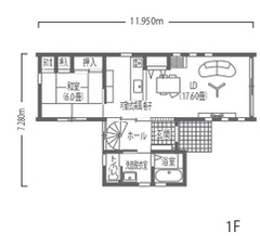
1F
61.69m² (18.66坪)
2F
49.69m² (15.03坪)
リビング
「バーのようなデザインに」と、リビングの天井や壁は黒を基調としたシックな雰囲気に。壁一面のテレビボードは造り付けで、おしゃれなデザインに仕上がっている。黒い天井に埋め込まれたダウンライトも、よりア
ストリップ階段
ストリップ階段越しに設けた大型の窓は、キッチンからも外の景色が見えて、明るい光が室内に降り注ぐ
キッチン
INAXのキッチンはカウンターを低めにして、正面にアルミ階段や中庭が見える眺めがいい
2階ホール
2階ホールの横にはセカンドバルコニーも設置。大きな窓から明るい光がいっぱい差し込む
主寝室
ワイドスパンの大きな窓と天井高3mの大空間で、広々とした開放感を感じられる主寝室。家具のセレクトもおしゃれ
書斎
主寝室から続く書斎。南に面した窓が大きく、北側もバルコニーと隣接して明るい
施主からの希望・要望
建物自体は決して大きくないのですが、吹き抜けを活かした開放感を感じる間取りになっています。色を多く使わず、大人かっこいいシンプルでモダン空間をご提案しました。どこにいても家族のつながりを感じる、素敵な住まいです。
| 階数 2階建 | 延床面積 111.38m² [33.69坪] | 敷地面積 198.36m² [60.0坪] |
| 間取り 4DK |
1F
61.69m² [18.66坪]
2F
49.69m² [15.03坪]
|
施工面積 131.25m² [39.7坪] |
| 家族構成 夫+妻+長女+次女 | 設計者名 Art Yoshikawa設計事務所 |
この間取りはこちらの施工例でご覧いただけます
「バーのようなおしゃれな空間で暮らしたい」と望んでいたSさん。天井をできるだけ高く、窓を大きくとり、家全体をモノトーンでコーディネートした。キッチンに立つと、吹き抜けの空間にスケルトンの階段と庭の景色を見渡せて、奥さまの料理タイムがより楽しくなりそう。全室の床を白いフローリング、天井に黒いクロスを貼り、ダウンライトを採用したことでムーディな大人の雰囲気に仕上がった。また、家族がどこにいても気配を感じられる間取りなので、安心して暮らすことができる。「自分たちの要望に対して、これはいいけど、それはやめた方がいい。こうすればもっと良くなりますよ、と吉川社長からプロのアドバイスをたくさんしてもらえたのが嬉しかったです」とご主人。予算から1円もオーバーすることなく、理想以上の家が完成したことで、新築後の暮らしにもゆとりがあるそうだ。
施工例を詳しくみる4LDK / 2階建
施工事例あり
約30畳のLDKと広い庭で、家族がのびやかに暮らす家
土地探しからお手伝いさせていただき、一緒に家づくりを楽しませていただきました。テクノストラクチャー工法により、柱や壁の仕切りがなく、南面に大きな窓を配置しても耐震等級3を取得。想像以上に広い約30畳の大空間LDKを実現することができました。
4LDK・2階建
延床面積:150m² [45.37坪]
4LDK / 2階建
施工事例あり
吹抜けのらせん階段が魅力! 光あふれ風そよぐ「T字型」の家
家全体を「おもてなし空間」と考え、玄関からリビング、らせん階段を上がって2階ホールへ抜けるゾーニングをご提案しました。玄関ホールの扉を開放すると、18畳のLDKが22.5畳に。オリジナルの可動採風格子で風が家中を循環します。
4LDK・2階建
延床面積:115.99m² [35.08坪]
3LDK / 2階建
施工事例あり
2050年の省エネ基準をクリア!! 人にも環境にも優しいLCCM住宅
環境負荷を減らしたいとの考えからZEHを希望されていたので、ワンランク上のLCCM住宅を提案しました。断熱・気密性を最大限に高め、太陽光発電と蓄電池でエネルギーの自給自足を実現。耐震性の高いパナソニック・テクノストラクチャー工法と相まって、大満足の家が完成しました。
3LDK・2階建
延床面積:121.66m² [36.8坪]
3LDK / 2階建
施工事例あり
豊田市街を一望できる、絶景ウッドデッキのある高台の家
自然素材を活かした内装と高台ならではの眺望を取り込んだ、常に絶景を楽しめる空間設計。南側の傾斜地を利用し、突き出た大型ウッドデッキはLDKとも一体化し、癒やしの空間を演出しています。
3LDK・2階建
延床面積:111.43m² [33.7坪]
■ 土地探しフェア ■
【当日予約も大歓迎!】天井高2.7mが生む、開放感のある23帖のリビング空間
【当日予約も大歓迎!】~大空間リビングで、家族みんなが自然と集まる暮らし~ フラッグシップモデルハウス 完成内覧会