愛知県三河エリア

工務店・新築・一戸建て・注文住宅・リノベ会社を検索できるくふうイエタテ

注文住宅、リフォーム住宅会社を探す

住宅会社 住宅イベント モデルハウス リフォーム・リノベーション 土地・建売 住まいのプロ 動画 家づくりガイド くふうイエタテカウンター
愛知三河 ランキング TOP5
施工対応エリア
愛知県・岐阜県・三重県の全域、静岡県西部・中部
電話番号
050-5268-8457
ジャンル
新築 、 リフォーム 、 土地相談
資料請求無料 検討会社に追加する

映画のアメリカンハウスを夢で終わらせずに実現!

お気入り
クリップ
T邸  物件エリア:名古屋市守山区  家族構成:夫+妻+長女+次女+三女
ジェネラルアメリカンホーム【デザイン住宅、輸入住宅、趣味】外観は映画で見たアメリカンハウスそのまま。ブルーグレーのラップサイディングに白い梁を組み合わせ、煙突まで取り付けた
ジェネラルアメリカンホーム【デザイン住宅、輸入住宅、趣味】T邸のデザインはクラシックなアーリーアメリカン洋式。屋根で覆われたカバードポーチも特長のひとつ
ジェネラルアメリカンホーム【デザイン住宅、輸入住宅、趣味】吹き抜けに面した2階のキャットウォークと、子どもの遊び場を兼ねた多目的ルームがつながっている
ジェネラルアメリカンホーム【デザイン住宅、輸入住宅、趣味】モノトーンを基調にしたキッチン。子どもたちが勉強や宿題をするスタディコーナーも備えている
ジェネラルアメリカンホーム【デザイン住宅、輸入住宅、趣味】長女が子ども部屋として使っている小屋裏収納。将来、巣立つことを想定し、コンパクトなつくりにした
ジェネラルアメリカンホーム【デザイン住宅、輸入住宅、趣味】1階の洗面脱衣室も外観やLDKとテイストを合わせ、アーリーアメリカンなデザインで統一
ジェネラルアメリカンホーム【デザイン住宅、輸入住宅、趣味】空間ごとにさまざまな壁紙を取り入れているのもT邸の特長。家族だけが利用する2階のトイレは子どもたち好みに
ジェネラルアメリカンホーム【デザイン住宅、輸入住宅、趣味】真っ白なモールディングと淡いグレーの壁紙の組み合わせ、落ち着いた雰囲気を演出している
外観は映画で見たアメリカンハウスそのまま。ブルーグレーのラップサイディングに白い梁を組み合わせ、煙突まで取り付けた
T邸のデザインはクラシックなアーリーアメリカン洋式。屋根で覆われたカバードポーチも特長のひとつ
吹き抜けに面した2階のキャットウォークと、子どもの遊び場を兼ねた多目的ルームがつながっている
モノトーンを基調にしたキッチン。子どもたちが勉強や宿題をするスタディコーナーも備えている
長女が子ども部屋として使っている小屋裏収納。将来、巣立つことを想定し、コンパクトなつくりにした
1階の洗面脱衣室も外観やLDKとテイストを合わせ、アーリーアメリカンなデザインで統一
空間ごとにさまざまな壁紙を取り入れているのもT邸の特長。家族だけが利用する2階のトイレは子どもたち好みに
真っ白なモールディングと淡いグレーの壁紙の組み合わせ、落ち着いた雰囲気を演出している

ブルーグレーのラップサイディング、多角形の出窓や煙突など、映画で見て憧れたアメリカンハウスを実現したT邸。外装はもちろん、間取りにもこだわりが詰まっている。子どもたちそれぞれの個室はあえてつくらず、リビングを見下ろす2階に遊び場となる多目的ルームを配置。コンパクトな小屋裏収納を子どもの寝室としても使えるように設計した。「子ども部屋を作っても、いずれ使わなくなるので。それなら、みんなで一緒に過ごすリビングをできる限り広くし、家族の気配を感じられる開放的な吹き抜けにしたいと思いました」とTさん。将来、夫婦ふたりになった時のことも思い浮かべながら、より楽しく快適に暮らせるように空間をデザイン。天窓を多く取り入れ、自然光がたっぷり注ぐ住まいに仕上げた。新居の1階には、ご主人専用のトレーニングルームも完備。完全自由設計で夢の暮らしを叶え、心から満足しているようだ。

資料・カタログをもらう無料 来店予約をする
お届けするカタログ・資料の内容
施工事例集 弊社施工事例が載っているオリジナル雑誌を郵送させて頂きます。
資料・カタログをもらう
送付資料

住宅性能

  • 耐震性

    耐震等級3相当

  • 通風・換気性

    換気システム 第一種換気

  • 遮音性

    ドア・サッシ、樹脂サッシ

間取り

間取りタイプ
3LDK / 2階建
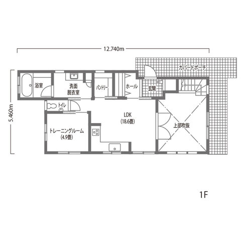
  • 1階
    ジェネラルアメリカンホーム 映画のアメリカンハウスを夢で終わらせずに実現! 1階

    玄関からリビングまでを囲むようにカバードポーチを配置。玄関ホールの扉を開けるとすぐダイニングキッチンがあり、リビングや洗面脱衣室とも扉一枚でつながっているため、コンパクトな動線で暮らせる。

  • 2階
    ジェネラルアメリカンホーム 映画のアメリカンハウスを夢で終わらせずに実現! 2階

    リビング階段から2階へ上がると、吹き抜けに面したキャットウォークがあり、5.0畳の多目的ルームともつながっている。ホールの先に設けた主寝室は、ウォークインクローゼット付きのゆったりとしたつくり。

  • 小屋裏
    ジェネラルアメリカンホーム 映画のアメリカンハウスを夢で終わらせずに実現! 小屋裏

    屋根の傾斜を生かした小屋裏収納が2つあり、今は長女と次女が自分たちの部屋にしている。子どもたちが巣立った後は、納戸として使う予定。

スタッフからのコメント

現代的なテイストも取り入れながら、Tさんが思い描くアーリーアメリカンなデザインに仕上げました。ご主人専用のトレーニングルームは、畳の上にゴムマットを敷いてつくってあるので、将来は和室として使うこともできます。

営業スタッフ・間瀬 英嗣さん

物件情報

本体価格 3000万〜 ※金額は購入当時のものです
設計者名 ジェネラルアメリカンホーム
施工社名 ジェネラルアメリカンホーム
敷地面積 165.25㎡[49.98坪]
延床面積 106.62㎡[32.25坪](1階60.76㎡、2階 45.86㎡)
構造・工法 2×4工法
施工期間 8か月
外部仕上げ(屋根) アスファルトシングルス
外部仕上げ(外壁) ラップサイディング
内部仕上げ(床) パイン
内部仕上げ(内壁) クロス
内部仕上げ(天井) クロス
内部仕上げ(断熱材) ロックウール
使用メーカー(バス) LIXIL
使用メーカー(トイレ) LIXIL
使用メーカー(キッチン) LIXIL
使用メーカー(照明) KOIZUMI
設備・施設・その他 全館空調システム
資料・カタログをもらう無料 来店予約をする
お届けするカタログ・資料の内容
施工事例集 弊社施工事例が載っているオリジナル雑誌を郵送させて頂きます。
資料・カタログをもらう
送付資料

その他の新築施工例 ({{max}}件)

ジェネラルアメリカンホーム

そうだ、日本でアメリカに住もう
  • 本社所在地 愛知県刈谷市東境町上野69-7
  • 施工対応エリア 愛知県・岐阜県・三重県の全域、静岡県西部・中部
  • 電話番号 050-5268-8457
  • ジャンル 新築、 リフォーム、 土地相談

お客さまの声

お客さまの写真

最初は輸入住宅の展示場へ行きましたが、理想とは違う家ばかりでした。インスタで『ジェネラルアメリカンホーム』さんが手がけた家を見た時は、感動しました。しかも愛知県にあったので、すぐ事務所へ行ってみることにしたんです。映画で憧れた家のことを話すと、その場でデザインを描いてくれたことに再び感動し、家づくりを託すことを即決。パーツを組み合わせてつくる注文住宅もあるなか、ジェネラルさんはまさに自由設計で細部に至るまでこだわることができました。

新築したきっかけ

子どもたちが生まれ、マイホームを真剣に考えるように。学生時代に「ホームアローン」や「トイストーリー」を観て、こんな家の住みたいと思っていたので、最初からアメリカンハウスと決めていました。

ロード中