愛知県三河エリア

工務店・新築・一戸建て・注文住宅・リノベ会社を検索できるくふうイエタテ

注文住宅、リフォーム住宅会社を探す

住宅会社 住宅イベント モデルハウス リフォーム・リノベーション 土地・建売 住まいのプロ 動画 家づくりガイド くふうイエタテカウンター
愛知三河 ランキング TOP5
施工対応エリア
愛知県・岐阜県・三重県の全域、静岡県西部・中部
電話番号
050-5268-8457
ジャンル
新築 、 リフォーム 、 土地相談
資料請求無料 検討会社に追加する

細部までリアルを追求。本国仕様のアメリカンハウス

お気入り
クリップ
F邸  物件エリア:豊明市  家族構成:夫+妻+長男+次男
ジェネラルアメリカンホーム【デザイン住宅、輸入住宅、ガレージ】愛車を守るインナーガレージを完備。白いラップサイディングの外観は、アメリカ住宅のベーシックなデザインだ
ジェネラルアメリカンホーム【デザイン住宅、輸入住宅、ガレージ】約150坪の広大な敷地に立つF邸の外観。理想のアメリカンハウスが完成し、サボテン栽培など趣味がさらに広がったそう
ジェネラルアメリカンホーム【デザイン住宅、輸入住宅、ガレージ】ゆったりとした27.5畳のLDK。アメリカから取り寄せた石の壁が、空間のアクセントになっている
ジェネラルアメリカンホーム【デザイン住宅、輸入住宅、ガレージ】道路と敷地の高低差を生かしつつ、カバードポーチを配置。外を眺めてくつろげるリラックス空間に
ジェネラルアメリカンホーム【デザイン住宅、輸入住宅、ガレージ】天窓から光が注ぐ洗面脱衣室兼ランドリールーム。キッチンの背面に配置し、コンパクトな動線で家事ができるようにした
ジェネラルアメリカンホーム【デザイン住宅、輸入住宅、ガレージ】往年のハリウッドスターをコラージュした壁紙などを取り入れ、遊び心たっぷりに仕上げたトイレ
ジェネラルアメリカンホーム【デザイン住宅、輸入住宅、ガレージ】コツコツと収集したアメリカ雑貨が並ぶ秘密基地。スキップフロアにあり、上からガレージを見渡せる
ジェネラルアメリカンホーム【デザイン住宅、輸入住宅、ガレージ】
愛車を守るインナーガレージを完備。白いラップサイディングの外観は、アメリカ住宅のベーシックなデザインだ
約150坪の広大な敷地に立つF邸の外観。理想のアメリカンハウスが完成し、サボテン栽培など趣味がさらに広がったそう
ゆったりとした27.5畳のLDK。アメリカから取り寄せた石の壁が、空間のアクセントになっている
道路と敷地の高低差を生かしつつ、カバードポーチを配置。外を眺めてくつろげるリラックス空間に
天窓から光が注ぐ洗面脱衣室兼ランドリールーム。キッチンの背面に配置し、コンパクトな動線で家事ができるようにした
往年のハリウッドスターをコラージュした壁紙などを取り入れ、遊び心たっぷりに仕上げたトイレ
コツコツと収集したアメリカ雑貨が並ぶ秘密基地。スキップフロアにあり、上からガレージを見渡せる

97年型のリンカーン・タウンカーを所有するFさん。アメ車に乗るなら、自宅もアメリカ仕様にしたいと思い、さまざまな住宅会社をめぐったという。「本国から材料を取り寄せれば、それなりの家ができるけれど、どの会社もアメリカ風という感じで理想とは違いました」と振り返る。『ジェネラルアメリカンホーム』のオープンハウスで、アメ車好きなOB宅を訪問したことが転機に。「外装からアメリカのデザインを忠実に再現し、家の中に入ったら建具までアメリカ仕様。窓枠の装飾など、細かな部分もこだわって設計していることがわかりました」とFさん。完成した新居には、ガレージを見渡せる秘密基地のような空間や、外でのんびり過ごせるカバードポーチも。室内は白を基調にまとめ、家具もアメリカ製でそろえるなど、リアルを追求。アメリカで主流のセントラル空調も取り入れ、デザインも住み心地も大満足の住まいを叶えた。

資料・カタログをもらう無料 来店予約をする
お届けするカタログ・資料の内容
施工事例集 弊社施工事例が載っているオリジナル雑誌を郵送させて頂きます。
資料・カタログをもらう
送付資料

住宅性能

  • 耐震性

    耐震等級3相当

  • 通風・換気性

    換気システム 第一種換気

  • 遮音性

    ドア・サッシ、樹脂サッシ

間取り

間取りタイプ
5LDK / 2階建
  • 1階
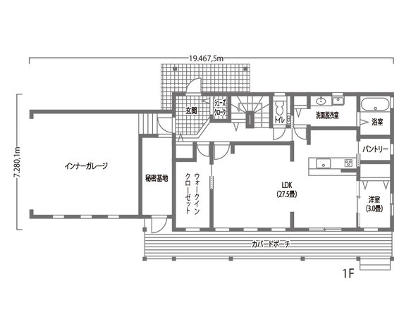
    ジェネラルアメリカンホーム 細部までリアルを追求。本国仕様のアメリカンハウス 1階

    土地の高低差を活かしてインナーガレージと住居の間にステップフロアをつくり、上から車を見渡せる秘密基地に。シューズクローク、パントリーなど適材適所に収納を配置し、玄関横にはスニーカーコレクションをディスプレイする棚を造作。ウォークインクローゼットは、玄関ホールとリビングの両方向から行き来できる。

  • 2階
    ジェネラルアメリカンホーム 細部までリアルを追求。本国仕様のアメリカンハウス 2階

    主寝室は10畳で、子どもたちの部屋は5畳ほど。各個室はもちろん、ホールにも収納を設け、ものが多くても、片付けがしやすい間取りに。2.7畳のホビールームにはカウンターを造作し、ワークスペースとしても使えるようにしている。

スタッフからのコメント

アメ車が好きで自宅もアメリカ風ではなく本国仕様を希望していたFさん。建具や窓枠の装飾まで、リアルを追求したデザインになっています。ガレージを見渡せる秘密基地のような空間や2階の隠し部屋など、遊び心あふれるアメリカンハウスです。

営業スタッフ 平安名 翔之さん

物件情報

本体価格 3000万〜 ※金額は購入当時のものです
設計者名 ジェネラルアメリカンホーム
施工社名 ジェネラルアメリカンホーム
敷地面積 490.01㎡[148.23坪]
延床面積 186.37㎡[56.37坪](1階129.41㎡、2階56.96㎡)
構造・工法 2×4工法
施工期間 8か月
外部仕上げ(屋根) アスファルトシングルス
外部仕上げ(外壁) ラップサイディング
内部仕上げ(床) パイン
内部仕上げ(内壁) クロス
内部仕上げ(天井) クロス
内部仕上げ(断熱材) ロックウール
使用メーカー(バス) LIXIL
使用メーカー(トイレ) LIXIL
使用メーカー(キッチン) 造作
設備・施設・その他 全館空調システム
資料・カタログをもらう無料 来店予約をする
お届けするカタログ・資料の内容
施工事例集 弊社施工事例が載っているオリジナル雑誌を郵送させて頂きます。
資料・カタログをもらう
送付資料

その他の新築施工例 ({{max}}件)

ジェネラルアメリカンホーム

そうだ、日本でアメリカに住もう
  • 本社所在地 愛知県刈谷市東境町上野69-7
  • 施工対応エリア 愛知県・岐阜県・三重県の全域、静岡県西部・中部
  • 電話番号 050-5268-8457
  • ジャンル 新築、 リフォーム、 土地相談

お客さまの声

お客さまの写真

『ジェネラルアメリカンホーム』さんの家は、外観や内装、屋根の角度まで本国仕様で、オープンハウスを見学した時はワクワクしました。細かい部分もリアルに追求し、自由に設計できることがわかったことも決め手に。オープンハウスで出会ったアメ車オーナーさんとは、その後も付き合いが続き、一緒にバーベキューをする仲です。アメリカで建築デザインを学んだ代表の杉山さんをはじめ、スタッフのみなさんに棚の配置や窓枠の装飾なども相談し、さまざまな提案をしてくれたおかげで理想のイメージを実現できました。

新築したきっかけ

アメ車が好きで、いつかはガレージ付きのアメリカンハウスに住みたいと思っていました。コツコツと貯金に励みながら住宅会社を巡る中で、『ジェネラルアメリカンホーム』さんと出合い、家づくりを依頼しました。

ロード中