静岡県西部エリア

工務店・新築・一戸建て・注文住宅・リノベ会社を検索できるくふうイエタテ

注文住宅、リフォーム住宅会社を探す

住宅会社 住宅イベント モデルハウス リフォーム・リノベーション 土地・建売 住まいのプロ 動画 家づくりガイド くふうイエタテカウンター
施工対応エリア
静岡県全域、愛知県全域
電話番号
050-5851-0666
ジャンル
新築 、 土地相談
資料請求無料 検討会社に追加する

自然との一体感を楽しむ「ひのきづくし」の家

お気入り
クリップ
K邸  家族構成:夫+妻+長男+ 長女
サイエンスホーム【1000万円台、自然素材、平屋】畳コーナーと合わせると21.7畳のLDK。国産ひのきの香りに癒される“ひのきづくし”の空間は、毎日森林浴気分で快適に過ごせる
サイエンスホーム【1000万円台、自然素材、平屋】どこにいても家族のつながりを感じる吹抜けのLDK。ひのきのやさしい香りと肌触りに癒される。薪ストーブも採用し、あこがれのスローライフを満喫している
サイエンスホーム【1000万円台、自然素材、平屋】柱と梁を現しにした真壁づくりのLDK。3.5畳の小上がりの畳コーナーを設け、Wリビング仕様に。昼寝する赤ちゃんの様子を見ながら料理できるので奥さまも安心。畳の下は収納スペースで、おもちゃやオムツなどをさっとしまえて便利
サイエンスホーム【1000万円台、自然素材、平屋】子ども部屋には既製品の遊具だけでなく、ダンボール箱で作ったトンネルも設置した。費用がかからず、場所も取らず、エコにも貢献。自分の好きな形に何度でも作り直すことができるので、子どもの知恵・創造力・表現力を育んでくれる。成長したら簡単に処分できるのもありがたい。自然派志向の夫妻ならではのアイデアだ
サイエンスホーム【1000万円台、自然素材、平屋】2階もすべて国産ひのき造りにこだわった
サイエンスホーム【1000万円台、自然素材、平屋】子どもたちが走り回るロフト空間
サイエンスホーム【1000万円台、自然素材、平屋】大容量の土間収納。収納棚もひのきで造作
サイエンスホーム【1000万円台、自然素材、平屋】ロフトタイプのオール国産ひのきの家。薪ストーブの煙突がアクセントに。外と中をつなぐウッドデッキは、アウトドアリビングとして多用途に使いこなせる
畳コーナーと合わせると21.7畳のLDK。国産ひのきの香りに癒される“ひのきづくし”の空間は、毎日森林浴気分で快適に過ごせる
どこにいても家族のつながりを感じる吹抜けのLDK。ひのきのやさしい香りと肌触りに癒される。薪ストーブも採用し、あこがれのスローライフを満喫している
柱と梁を現しにした真壁づくりのLDK。3.5畳の小上がりの畳コーナーを設け、Wリビング仕様に。昼寝する赤ちゃんの様子を見ながら料理できるので奥さまも安心。畳の下は収納スペースで、おもちゃやオムツなどをさっとしまえて便利
子ども部屋には既製品の遊具だけでなく、ダンボール箱で作ったトンネルも設置した。費用がかからず、場所も取らず、エコにも貢献。自分の好きな形に何度でも作り直すことができるので、子どもの知恵・創造力・表現力を育んでくれる。成長したら簡単に処分できるのもありがたい。自然派志向の夫妻ならではのアイデアだ
2階もすべて国産ひのき造りにこだわった
子どもたちが走り回るロフト空間
大容量の土間収納。収納棚もひのきで造作
ロフトタイプのオール国産ひのきの家。薪ストーブの煙突がアクセントに。外と中をつなぐウッドデッキは、アウトドアリビングとして多用途に使いこなせる

目の前に美しい景色が広がるK邸。柱、梁、床から階段、建具に至るまですべて国産ひのきを使った“ひのきづくし”の空間は、天然木ならではの濃厚な香りが漂い、思いきり深呼吸したくなる。吹抜けの開放感あふれるLDKは、キッチンの正面に畳コーナーをしつらえ、奥さまは赤ちゃんの様子を見ながら料理できる。リビングとフラットにつながる広いウッドデッキは、夫婦で景色を眺めながらコーヒーを飲んだり、子どもとシャボン玉をしたり。自然を身近に感じる別荘のようなひのきの家で、子どもたちは素直にすくすくと成長していく。

資料・カタログをもらう無料 来店予約をする
送付内容: 会社パンフレット・商品カタログ・工法、技術カタログ・施工例集・その他

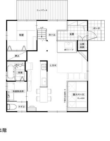
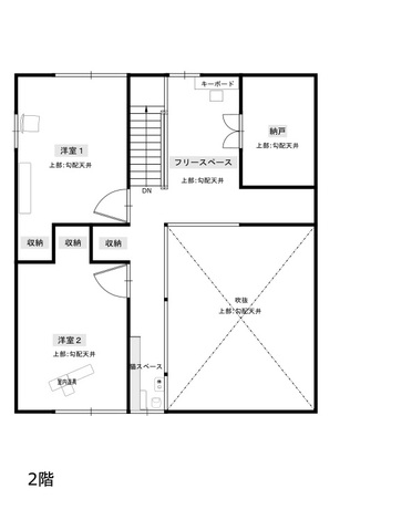
間取り

間取りタイプ
平屋
  • サイエンスホーム 自然との一体感を楽しむ「ひのきづくし」の家
  • サイエンスホーム 自然との一体感を楽しむ「ひのきづくし」の家
スタッフ写真

スタッフからのコメント

リラクゼーション効果の高いひのきを使った住まいは、子育てにぴったりです。シロアリを寄せ付けないひのきは、高温多湿の日本の気候に最適なので、建物も長持ちします。

建築アドバイザー 中村 京哉さん

物件情報

設計者名 サイエンスホーム
施工社名 サイエンスホーム
敷地面積 180.00㎡ [54,45坪]
延床面積 123.20㎡ [37.20坪] (1階 72.00㎡、2階 51.20㎡)
構造・工法 木造軸組工法(真壁工法)
竣工 2017年7月
施工期間 3か月
内部仕上げ(床) 無垢ひのき
資料・カタログをもらう無料 来店予約をする
送付内容: 会社パンフレット・商品カタログ・工法、技術カタログ・施工例集・その他

その他の新築施工例 ({{max}}件)

サイエンスホーム

外張り断熱の木の家で1,000万円台~を実現!
  • 本社所在地 静岡県浜松市中央区萩丘3-4-27-1(本部お客様係)
  • 施工対応エリア 静岡県全域、愛知県全域
  • 電話番号 050-5851-0666
  • ジャンル 新築、 土地相談

お客さまの声

お客さまの写真

チラシを見て、天然のひのきをたくさん使った家づくりに興味を持ちました。無料体験入居をしてみて、断熱性能がしっかりしていたので即決しました。私たちの気持ちを尊重し、ロケーションを活かして設計してくれたので、満足しています。長男と一緒に壁を塗ったのも良い思い出になりました。

新築したきっかけ

賃貸アパートに住んでいましたが、二人目の子どもを授かったのを機に、広い庭付き一戸建てでのびのび子育てしたいと思うようになったからです。

ロード中