静岡県西部エリア
他のエリア
工務店・新築・一戸建て・注文住宅・リノベ会社を検索できるくふうイエタテ
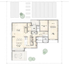
配置図
1階
114.27m² (34.56坪)
2階
46.78m² (14.15坪)
施主からの希望・要望
家主を出迎える敢えて窓を設けないクローズドstyleのファサードは、内と外を隔てる凛とした境界線。仕事と家庭、パブリックとプライベート、日常と非日常… 湖畔に広がる閑静な住宅街に悠々と聳え立つこの家は、暮らしの中の様々なonとoffを、住まう人のために優しくも頼もしく隔ててくれるバウンダリーライン。
| 階数 2階建 | 延床面積 161.05m² [48.71坪] | 敷地面積 358.84m² [108.54坪] |
| 間取り 1R |
配置図
---
1階
114.27m² [34.56坪]
2階
46.78m² [14.15坪]
|
施工面積 --- |
| 家族構成 --- | 設計者名 一級建築士 鈴木邦彰 |
それ以外 / 2階建
カフェ「山ぼうし茶房」
こだわりの珈琲をこだわりの空間で。洗い出しの床を中心としたカフェスペースは独特の落ち着きとくつろぎ感をもたらし、ゆったりと長居したくなる空間に仕上げました。 壁には珪藻土、造り付けの本棚上のカウンターには大谷石を使用しています。
それ以外・2階建
(店舗)
延床面積:149.88m² [45.33坪]
3LDK / 2階建
理想を全てつめこんだ31坪のナチュラルモダン
この2階建ての3LDK間取りは、施主の要望を満たす快適な生活を実現します。豊富な収納スペースは整理整頓に便利で、家中の物をスマートに収納できます。広々としたリビングは、くつろぎの空間として最適です。家族が集まり、ゆったりとくつろげる空間を提供します。また、キッチンと洗濯スペースは効率的に配置されており、家事をスムーズにこなせます。この間取りは、施主のニーズを満たすだけでなく、快適なライフスタイルを演出する魅力的なプランです。
3LDK・2階建
延床面積:102.22m² [30.92坪]
3LDK / 2階建
吹抜けホールから光が降り注ぐ、北欧スタイルの家
2.5階のスキップフロアを採用したゆとりのある間取り。さらに3帖の和室や書斎も完備し「居場所」をたくさん設けたことで、個々のニーズに合わせた生活スタイルを実現しました。ゆったりとくつろげるリビングは、家族や友人との賑やかな交流を可能にし、ほっと一息つけるリラックススペースとなることでしょう。
3LDK・2階建
延床面積:105.17m² [31.81坪]
2LDK / 2階建
家事動線を高めた32坪の北欧モダンスタイル
随所に配置された収納スペースのおかげで、物が散らかりにくい暮らしを実現できます。キッチンはワークトライアングルを意識したⅡ型仕様をチョイス。水回りとキッチン間の家事動線も一直線に工夫されています。さらに、趣味や仕事に集中できる書斎スペースも主寝室内に確保されており、リモートワーク等に活用ができます。また、二階の子供部屋は一続きの大部屋ですが、お子様の成長に合わせて仕切りを付けて二部屋にすることもできる可変式の間取りになっています。
2LDK・2階建
延床面積:104.96m² [31.75坪]