静岡県中部エリア

工務店・新築・一戸建て・注文住宅・リノベ会社を検索できるくふうイエタテ

注文住宅、リフォーム住宅会社を探す

住宅会社 住宅イベント モデルハウス リフォーム・リノベーション 土地・建売 住まいのプロ 動画 家づくりガイド くふうイエタテカウンター
施工対応エリア
島田~富士
電話番号
050-5851-0452
ジャンル
新築 、 リフォーム 、 土地相談
資料請求無料 検討会社に追加する
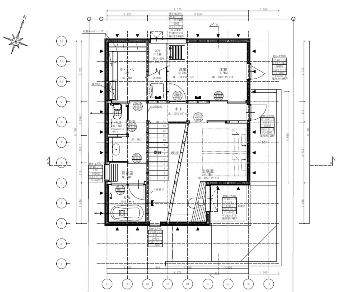
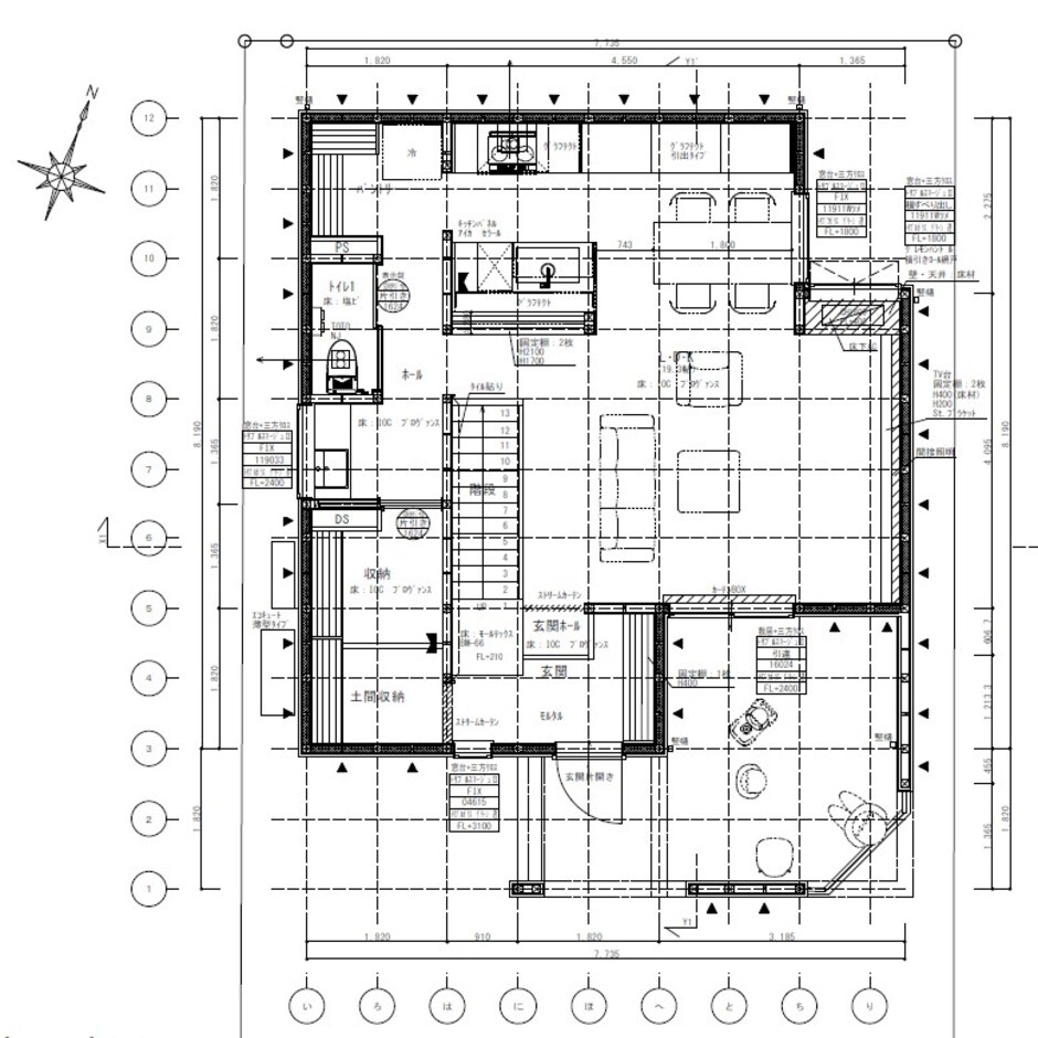
3LDK | 2階建

光と影を操った美術館のような洗練されたお家

1階

54.45m² (16.47坪)

2階

44.92m² (13.58坪)

クラフトハウス 光と影を操った美術館のような洗練されたお家 1階 チェックポイント1 チェックポイント2 玄関
  • Check.1

    季節の移ろいを感じる、光の演出

    秋から冬にかけてのある時間帯。南側の細長い窓から差し込む光が、階段の踏板をふんわり照らしてくれて、まるで季節が描くワンシーンみたい。家の中にいながら、自然の変化を楽しめるのがこの家の魅力です。


  • Check.2

    視線が抜ける、計算された開放感

    ポーチとテラスを一体化させることで、空間に自然な広がりを演出。南面を完全に閉じず、少し視線を抜くことで、外とのつながりや開放感を感じられる設計にしています。

クラフトハウス 光と影を操った美術館のような洗練されたお家 2階 チェックポイント1 チェックポイント2
  • Check.1

    上質と静けさが共存する寝室

    寝室と書斎がうまく調和した贅沢な空間で、ぐっすり眠れて、仕事も集中できる環境。忙しい毎日の中でも、リラックスできる時間と効率よく作業できる場所


  • Check.2

    洗練されたバスルームで、心地よいひとときを

    洗練された雰囲気を醸し出すバスルーム。落ち着いたトーンの内装が、まるでホテルのような非日常を演出します。毎日の入浴時間を、心と体を整える特別なひとときに

間取り提案

施主からの希望・要望

  • 自然光がたくさん入る明るい設計
  • プライバシーを確保できる
  • 音環境に配慮

スタッフからのコメント

南側が道路に面した立地ながら、視線への配慮から開口部の確保が難しい条件。しかし、巧みなプランニングにより採光をしっかり確保。外からの視線を遮りつつ、室内にはやわらかな光が届く“光と影の完全攻略”を実現した、プライバシーと快適な明るさを兼ね備えた上質な住まいです

DATA

階数 2階建 延床面積 99.36m² [30.05坪] 敷地面積 132.69m² [40.13坪]
間取り 3LDK
1階 54.45m² [16.47坪]
2階 44.92m² [13.58坪]
施工面積 102.26m² [30.93坪]
家族構成 --- 設計者名 遠藤 彰

クラフトハウスに「間取り」や「家づくりの相談」ができます。 この会社に来店予約をする

この間取りはこちらのモデルハウスでご覧いただけます

時を忘れる落ち着きの空間。美術館のような静寂さのあるモデルハウス

施主さんの暮らしに合わせたオンリーワンの住まいを実現する『クラフトハウス』。暮らしに寄り添うデザインと、ハイスペックな住宅性能が特徴の同社の家には、“建築家と建てる家”のエッセンスが詰まっている。最新のモデルハウス「SENAモデル」は、間接的に取り入れる自然光と穏やかな陰影を生み出す照明が、“暮らし”をより魅力的に表現する美術館のような空間を生み出す。外に対する開放と閉鎖の絶妙なバランスで家族が心地よく過ごせるLDK、高気密・高断熱の住宅性能が生み出す快適で静寂な空気感、ライフスタイルや家族構成の変化に柔軟に対応する可変性のある間取りなど、見どころは満載。見学予約は随時受付中。

モデルハウスを詳しくみる
  • エリア 静岡市葵区
  • 営業時間 10:00~17:00
  • 休日
  • タイプ デザイン住宅、省エネ住宅・高性能住宅、贅沢な家

似ている間取りはこちら