閉じる

片山建設

「今も未来も家族が快適に過ごせる」自然の心地よさを感じる「外断熱」の家

N邸 | 物件エリア:島田市 | 家族構成:二世帯

片山建設【収納力、趣味、自然素材】
本体価格(総施工費)

2,500~2,999万円

※金額は購入当時のものです

母と妹と一緒に暮らす実家を建替えたNさん。工務店選びの終止符を打ったのは、蒸し暑さの残る昨年9月。『片山建設』の完成見学会で訪れた家は涼しく、外断熱の効果と自然素材が持つ調湿性を実感したからだ。「伝えた希望は実用性を伴ってカタチになりました」とNさん。現在の家族の要望を重視しながらも、将来の家族構成の変化にもリフォームなしで対応するプランニングが安心と快適をもたらした。

ナチュラル 木の家

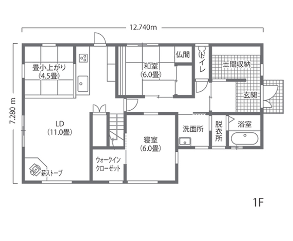
間取り 5LDK / 2階建

敷地面積 211.55㎡ [63.99坪]

延床面積 140.77㎡ [42.53坪](1階 84.46㎡、2階 56.31㎡)

施工面積 152.87㎡ [46.18坪]

竣工 2022年2月

施工期間 6か月

屋根 GL鋼板立平葺き

外壁 サイディング板(光触媒コーティング)

桧(光触媒コーティング)

内壁 漆喰塗装仕上げ

天井 杉無垢

断熱材 外断熱工法

静岡県産富士ひのき4寸角

施工社名 片山建設

施工例のご紹介

リビングの主役になった薪ストーブ。『片山建設』の事務所で心地よい暖かさを実感し、家族も導入に賛成。Nさんの念願が叶った。吹き抜けにする代わりに天井を高くすることで、明るく開放的なリビングにしたいという要望も取り入れた

リビングの主役になった薪ストーブ。『片山建設』の事務所で心地よい暖かさを実感し、家族も導入に賛成。Nさんの念願が叶った。吹き抜けにする代わりに天井を高くすることで、明るく開放的なリビングにしたいという要望も取り入れた

家全体にたっぷりと日が入るようにとの工夫と、見た目の変化を両立している外観

家全体にたっぷりと日が入るようにとの工夫と、見た目の変化を両立している外観

小上がりの畳スペースはダイニングに。和室で食事をしていた、以前の家からのスタイルを踏襲した、くつろぎの空間に

小上がりの畳スペースはダイニングに。和室で食事をしていた、以前の家からのスタイルを踏襲した、くつろぎの空間に

土間収納もたっぷりとしたスペースを確保。玄関ホールには、将来に備えて手すりも取り付けた

土間収納もたっぷりとしたスペースを確保。玄関ホールには、将来に備えて手すりも取り付けた

Nさんの寝室には薪ストーブの煙突を通し、輻射熱を暖房に利用する。各部屋の無垢材のチョイスはおまかせで

Nさんの寝室には薪ストーブの煙突を通し、輻射熱を暖房に利用する。各部屋の無垢材のチョイスはおまかせで

玄関ホールから一直線に伸びる廊下は、奥行きのある土地ならでは。1階の母の居室もプライバシーが守られる

玄関ホールから一直線に伸びる廊下は、奥行きのある土地ならでは。1階の母の居室もプライバシーが守られる

2階には将来のための子ども部屋も用意。バルコニーには専用の出入り口を設置

2階には将来のための子ども部屋も用意。バルコニーには専用の出入り口を設置

2階にはたくさんの本を収納する家族共有の書庫を設けた

2階にはたくさんの本を収納する家族共有の書庫を設けた

寝室に通っている薪ストーブの煙突

寝室に通っている薪ストーブの煙突

ナチュラルなトイレには専用手洗いやバリアフリーを考慮した手摺を設置

ナチュラルなトイレには専用手洗いやバリアフリーを考慮した手摺を設置

和室の向かいは母の居室になっている

和室の向かいは母の居室になっている

薪ストーブの周囲はタイルを採用

薪ストーブの周囲はタイルを採用

家を建ててから趣味になった、薪ストーブを楽しむことができる冬が待ち遠しい

家を建ててから趣味になった、薪ストーブを楽しむことができる冬が待ち遠しい

薪ストーブの火を楽しみながらテレビを見る。くつろぎのリビング

薪ストーブの火を楽しみながらテレビを見る。くつろぎのリビング

間取り

5LDK / 2階建

1F

1F

リビングの薪ストーブは最終間取り決定後に追加。LDKの広さを損なわず、かつ効率よく暖を取れる設置場所を調整した。タンス置き場として、あると便利な和室の板の間。この細やかな配慮に、向かい合った居室で過ごすお母さまも感動

2F

2F

子ども部屋の1室は現在は妹の個室に。将来の家族構成に変化があっても、そのまま住み継げる

お客様の声

お客様の声

Nさま

二世帯

実際に建ててみた感想

同僚に相談したところ、紹介された『片山建設』さん。他社と比較して外断熱の技術が決め手になりました。希望や気になったことは、まず相談しました。家族のためにいろいろと考え提案してくれる工務店さんなら安心です。

家を建てたきっかけ

実家が老朽化し、ずっと建替えを考えていました。窓があまりなく、日中暗い、夏暑く冬寒い環境でした。

片山建設からのコメント

代表取締役 片山 嘉浩さん

代表取締役 片山 嘉浩さん

間口が狭く奥行きが長い土地に、LDKを中心に家全体に光と風をたっぷり取り入れられるよう設計しました。現在は親子3人ですが、将来、施主さんのご結婚により家族が増えることも見据えたプランニングです。

片山建設の他の施工例

会社概要

会社名
片山建設
施工対応エリア
主に掛川市~静岡市 その他は要相談
参考坪単価
その他
会社所在地
静岡県藤枝市高柳3-29-15
電話番号
050-5851-0459
このページを共有する
LINEで送る

閲覧履歴

閲覧した工務店はまだありません

来場キャンペーン

AmazonGiftCard
住宅イベント
住宅会社
モデルハウス

いずれかに来場・来店すると

最大5,000円もらえます

プレゼント方法
STEP1 1回の来場・来店で1,000
STEP2 2回の来場・来店で2,000
STEP3 3回の来場・来店で5,000

くふうイエタテ会員登録(無料)のうえ、Webイエタテでご予約し、住宅イベントやモデルハウス、住宅会社に来場・来店するとAmazonギフト券最大5,000円分(Eメールタイプ)を 先着200名様にプレゼント!※2026年2月28日までのご来場が対象となります

応募条件

このキャンペーンは注文住宅の購入やリノベーションの施工を検討している方を対象にしております。対象外の方のご応募はご遠慮ください。当社が不正な応募と判断した場合、 住宅会社への迷惑となる行為が確認された場合にはご応募が無効となり、以降のキャンペーン参加をお断りさせていただく場合がございます。あらかじめご了承ください。

本キャンペーンはWEBくふうイエタテ会員(無料)限定のキャンペーンとなります。必ずログインしてからご予約ください。非会員や電話予約につきましては対象外となります。

しずおかオンラインおよび、くふう住まい/くふうイエタテ主催のキャンペーンに過去10回以上ご参加されている方は応募対象外とさせていただきます。

1世帯につき1IDのみが応募対象となります。また、参加回数は同一IDからの参加についてのみカウントされます。 同一世帯の方が複数IDでご予約された場合も、応募条件を満たした1IDのみが応募有効となり、それ以外のIDでのご予約・ご参加については対象外となります。 なお、同一世帯の複数のIDから予約されたイベント・モデルハウス・住宅会社につきましては合算はできかねますのでご注意ください。4回目以降の予約にはプレゼントはつきません。

ご家族複数名での見学や同じメールアドレスの利用、同じご住所にお住まい、もしくは同居をご予定している場合、本企画では、それぞれを同一世帯1組様とみなします。 また、その他入力いただいた情報により、編集部が同一世帯とみなす場合がございます。

予約後、キャンセルされた場合は無効となります。イベントへの来場が確認できなかった場合や、スタッフから十分な説明を受けず途中退場した場合など、 イベントへご参加いただいたとの判断ができかねる場合、 利用者アンケートの回答が期限内に無い場合も、無効とさせていただきます。

ギフト券はキャンペーン終了後おおよそ1ヶ月以内に順次発送の予定です。送付状況など、発送に関する個別のお問合せにつきましてはお答えできかねますので、 あらかじめご了承ください。また、ギフト券はマイページのプロフィール欄にご登録されているメールアドレスに届きます。 入力されたメールアドレスが不明な場合や、何らかの理由で送付不可能である場合、 送付が取り消され、その時点で応募自体が無効となりますのでご注意ください。

メール送付後におきまして、何らかの理由でメールが受信されなかった場合、また、受信後のメール削除や紛失などがあった場合は、 いかなる理由によりましても弊社では責任を負いかねます。ご了承ください。

記載の【キャンペーン対象期間】とは【予約のお申し込みをされた日】を指します。対象期間外に予約のお申し込みをされた場合には、キャンペーン対象外となります。 また、ご来場の有効期間は2026年3月7日までとなりますので、2026年3月8日以降に開催のイベントやモデルハウス見学への予約もキャンペーン対象外となりますので、ご注意ください。

注意事項

※本企画は、日本国内在住で契約者本人が居住するための住宅の購入を検討している一般の方を対象としております。また、契約者が法人の場合は対象外となります。

※[不動産業における景品類の提供の制限に関する公正競争規約]により、各住宅会社で本企画とは別に行っているプレゼント企画の賞品と本キャンペーンの賞品の両方は受け取れない場合がございます。 詳しくはくふうイエタテ編集部にお問合せください。

※携帯電話(スマートフォン以外)・PHSからの応募はできません。またスマートフォンの場合も、一部対応できない機種があります。 応募可能なインターネット接続環境や端末は、お客さまご自身でご用意ください。また、通信料はお客さま負担となります。

※ご家族複数名での見学や同じメールアドレスの利用、同じご住所にお住まい、もしくは同居を予定している場合、本企画では、それぞれを同一世帯1組様とみなします。 なお、入力いただいた情報により、編集部が同一世帯とみなす場合がございます。また、本人以外の方のメールアドレスでの応募、代行での参加手続きは無効といたします。

※未成年もしくは学生の方のみでのモデルハウス見学もしくはイベントへの参加は、キャンペーンの対象外となりますのでご注意ください。

※本企画は、当社の都合により、キャンペーン期間に関係なく、事情によりキャンペーンを中止する場合がございます。 あらかじめご了承ください。当社は、本企画の変更・終了等により生じたいかなる損害等についても、一切責任を負うものではありません。

※ご入力いただきましたメールアドレスに不備がある場合、当選を無効とさせていただきます。