静岡県中部エリア
他のエリア
工務店・新築・一戸建て・注文住宅・リノベ会社を検索できるくふうイエタテ
5LDK / 2階建
プラン35-間口7.7m(4.2間) 2階建て太陽光発電 延床面積145㎡(43.8坪)
2階を90センチ跳ねだして造り、その下を自転車やバイク置き場つくりました。 階段を建物中央に作った訳は2階に上がると分かります。 上がりきった瞬間に見えるもの、部屋のドア4つ・トイレドア・洗面。 無駄な廊下部分を最小限にしています。
5LDK・2階建
延床面積:145m² [43.86坪]
5LDK / 3階建
プラン19-鉄骨3階建二世帯住宅 間口5.4m(3間) 3階建て 延床面積182㎡(55坪)
重量鉄骨の3階建て、二世帯住宅のプランニング。 1階はご両親用のLDK・寝室・お風呂・洗面洗濯・トイレ。 2階は4人家族用のLDK・洗面洗濯室・トイレと寝室・・・と来客用の和室まで完備! 3階はお孫さん達のお部屋。 バルコニーも9帖分ですから贅沢な空間です。 そして、9帖の屋上ではバーベキューも楽しめます♪
5LDK・3階建
延床面積:182m² [55.05坪]
5LDK / 2階建
プラン13-敷地36坪 間口7.8m(4.3間) 2階建て 延床面積110㎡(33.2坪)
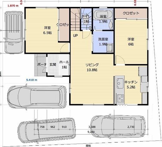
幅10m、奥行き12mの土地36坪の土地に 車4台駐車させて、残りの敷地で5LDKを作ろう♪ プロジェクト始動。 みんなが集う1階にリビングは10.8帖とキッチンが5.2帖。 合わせて16帖確保。 2階のバルコニーも8帖分と広くしました。
5LDK・2階建
延床面積:110m² [33.27坪]
5LDK / 3階建
プラン11-間口4.5m(2.5間) 3階建て 延床面積112㎡(33.8坪)
3階建て住宅、 南側には出窓を5つ取り付けます♪ ただ、南隣に平屋のお宅が隣接しているので、どうしても1階だけは暗く、日当たりが良いのは2階と3階だけです。 なので、昼間でも暗い1階には 夜帰ってくる御主人の部屋と 客間の和室を配置。 2階にLDK、 3階に奥さんと娘さん達の洋間を3つ造りました。
5LDK・3階建
延床面積:112m² [33.87坪]
5LDK / 2階建
プラン3-間口7.2m(4間) 2階建て5LDK 延床面積148㎡(44.8坪)
2階ホールからもう一つ階段を上がったところに、16帖の小屋裏収納スペース。 屋根の裏なので天井は低め(1.4m)とは言え 16帖もあれば、普段使わないものを何でも入れておけそうです。
5LDK・2階建
延床面積:148m² [44.77坪]