静岡県中部エリア
他のエリア
工務店・新築・一戸建て・注文住宅・リノベ会社を検索できるくふうイエタテ
1階
2階
3階
施主からの希望・要望
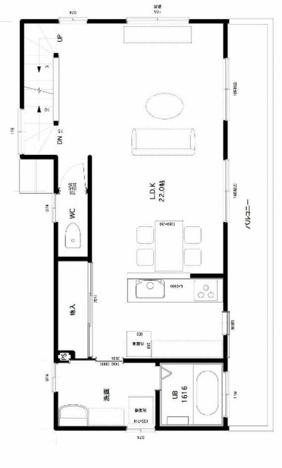
1階はどうしても暗くなるので、玄関とシューズクロークと寝室8帖とトイレのみ。 2階が22帖のLDKと洗面・お風呂・トイレ。 バルコニーも南側に広くとりましたので洗濯物も干しやすいです。 3階には、6帖のこども部屋3室確保しました。
| 階数 3階建 | 延床面積 159m² [48.09坪] | 敷地面積 --- |
| 間取り 4LDK |
1階
---
2階
---
3階
---
|
施工面積 --- |
| 家族構成 --- | 設計者名 (株)建築システム |
それ以外 / 3階建
プラン25-敷地11.7坪 間口4.4m(2.4間)3階建収益物件 延床面積92㎡(27.9坪)
土地39㎡は坪数に直すと11.7坪の極小敷地。 収益物件として1階は貸事務所、2階3階はワンルームマンションとしたプランニングに挑戦!
それ以外・3階建
延床面積:92m² [27.83坪]
3LDK / 3階建
プラン28-間口7.2m(4.0間)3階建店舗併用 延床面積144㎡(43.5坪)
店舗併用住宅プランです。 1階で飲食業を計画、2階と3階は3LDKの間取りで住まいます。 2階にキッチン・ダイニング・リビング・お風呂・洗面・洗濯・トイレ・物干しバルコニーと 主な生活動線を全て集約できました。 キッチンに立った時の正面がテレビですから、家事をしながらでも団欒に加われます。 3階は寝室と子ども部屋2つ取れました。
3LDK・3階建
延床面積:144m² [43.56坪]
4LDK / 3階建
プラン26-3階建店舗併用 間口5.9m(3.2間) 延床面積173㎡(52.3坪)
1階が事務所、2~3階を住まいにした案です。 事務所併用とは言え、無機質なビルっぽい外観にしたくないので 2階バルコニーに丸みををつけて優しいフォルムに工夫。 1階ミーティング室15帖、その奥の事務室14帖。トイレ・給湯・洗面も完備。 2階へは住宅専用の玄関があって家族4人が暮らせるスペース。 LDK16帖にプラスして畳コーナー4.5帖♪
4LDK・3階建
延床面積:173m² [52.33坪]
4LDK / 3階建
プラン29-間口4.9m(2.7間)3階建ビルトインガレージ 延床面積257㎡(77.8坪)
街中のビル群の隙間に計画のビルトインガレージ3階建てです。 駐車スペースはMAX4台まで可能。その奥が玄関で、収納庫も広く設計されています。 2階のLDKは40帖の広さがありますから10人、15人集まっても大丈夫♪ 【EV】の表示はホームエレベーターです。 3階は3室+書斎で、屋根裏の収納庫は18帖(天井は1.4m)確保しました。
4LDK・3階建
延床面積:257m² [77.74坪]