静岡県中部エリア
他のエリア
工務店・新築・一戸建て・注文住宅・リノベ会社を検索できるくふうイエタテ
1階
2階
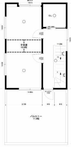
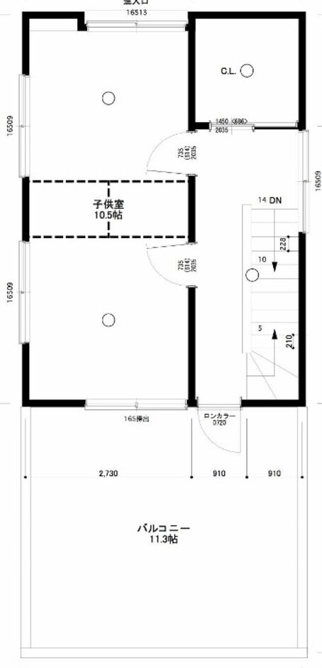
3階
施主からの希望・要望
建物内部の1階は インナーガレージと、 基本夜しか使わない寝室&書斎&納戸をまとめて集約してあとはトイレ。 日当たりの良い2階にLDK、3階に子供部屋2室配置。 3階のバルコニーはなんと11帖の広さで 洗濯干しだけじゃもったいないので、友達呼んでBBQ大会やれそうです。 しかもその上、屋上スペースもありますから、家庭菜園や近所の花火大会2つも この高さからなら十分見物できそうです♪
| 階数 3階建 | 延床面積 120m² [36.3坪] | 敷地面積 --- |
| 間取り 3LDK |
1階
---
2階
---
3階
---
|
施工面積 --- |
| 家族構成 --- | 設計者名 (株)建築システム |
4LDK / 3階建
プラン26-3階建店舗併用 間口5.9m(3.2間) 延床面積173㎡(52.3坪)
1階が事務所、2~3階を住まいにした案です。 事務所併用とは言え、無機質なビルっぽい外観にしたくないので 2階バルコニーに丸みををつけて優しいフォルムに工夫。 1階ミーティング室15帖、その奥の事務室14帖。トイレ・給湯・洗面も完備。 2階へは住宅専用の玄関があって家族4人が暮らせるスペース。 LDK16帖にプラスして畳コーナー4.5帖♪
4LDK・3階建
延床面積:173m² [52.33坪]
4LDK / 3階建
プラン29-間口4.9m(2.7間)3階建ビルトインガレージ 延床面積257㎡(77.8坪)
街中のビル群の隙間に計画のビルトインガレージ3階建てです。 駐車スペースはMAX4台まで可能。その奥が玄関で、収納庫も広く設計されています。 2階のLDKは40帖の広さがありますから10人、15人集まっても大丈夫♪ 【EV】の表示はホームエレベーターです。 3階は3室+書斎で、屋根裏の収納庫は18帖(天井は1.4m)確保しました。
4LDK・3階建
延床面積:257m² [77.74坪]
3LDK / 3階建
プラン28-間口7.2m(4.0間)3階建店舗併用 延床面積144㎡(43.5坪)
店舗併用住宅プランです。 1階で飲食業を計画、2階と3階は3LDKの間取りで住まいます。 2階にキッチン・ダイニング・リビング・お風呂・洗面・洗濯・トイレ・物干しバルコニーと 主な生活動線を全て集約できました。 キッチンに立った時の正面がテレビですから、家事をしながらでも団欒に加われます。 3階は寝室と子ども部屋2つ取れました。
3LDK・3階建
延床面積:144m² [43.56坪]
7LDK / 3階建
プラン31-間口4.8m(2.6間) 3階建て二世帯住宅 延床面積172㎡(52.0坪)
四世代同居のプランです。 1階は玄関入ると、御両親それぞれの部屋とおばあちゃんの部屋。 もちろんトイレや洗面所も確保してあります。 2階はみんなが集うLDKや水まわり設備と夫婦寝室。 3階が子供部屋3室。 今回の居室7部屋は5.5~6帖平均で統一。 LDKは20帖。大人数が集合しても安心です。
7LDK・3階建
延床面積:172m² [52.03坪]