静岡県中部エリア
他のエリア
工務店・新築・一戸建て・注文住宅・リノベ会社を検索できるくふうイエタテ
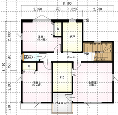
1F
55.18m² (16.69坪)
2F
52.99m² (16.02坪)
施主からの希望・要望
私たちは、性能・デザイン・価格すべての要望を叶えた❝本当に価値のある住まい❞を日々追求し、常にお客様目線での家づくりをご提案しています。お気軽に「静岡展示場」へお越しください。
| 階数 2階建 | 延床面積 108.17m² [32.72坪] | 敷地面積 --- |
| 間取り 3LDK |
1F
55.18m² [16.69坪]
2F
52.99m² [16.02坪]
|
施工面積 --- |
| 家族構成 --- | 設計者名 --- |
3LDK / 2階建
家事がスムーズに進む!快適計画の3LDK
私たちは、性能・デザイン・価格すべての要望を叶えた❝本当に価値のある住まい❞を日々追求し、常にお客様目線での家づくりをしています。ぜひ、お気軽に「静岡展示場」へお越しください。
3LDK・2階建
延床面積:96.88m² [29.3坪]
3LDK / 2階建
吹抜けがある、光がたくさん入る家
私たちは、性能・デザイン・価格すべての要望を叶えた❝本当に価値のある住まい❞を日々追求し、常にお客様目線での家づくりをしています。ぜひ、お気軽に「静岡展示場」へお越しください。
3LDK・2階建
延床面積:99.62m² [30.13坪]
4LDK / 2階建
家族みんなの“希望”が詰まった、暮らし上手な家
私たちは、性能・デザイン・価格すべての要望を叶えた❝本当に価値のある住まい❞を日々追求し、常にお客様目線での家づくりをしています。ぜひ、お気軽に「静岡展示場」へお越しください。
4LDK・2階建
延床面積:161.46m² [48.84坪]
4LDK / 2階建
「子どもと一緒に育つ家」―5人家族にぴったりの間取り
私たちは、性能・デザイン・価格すべての要望を叶えた❝本当に価値のある住まい❞を日々追求し、常にお客様目線での家づくりをしています。ぜひ、お気軽に「静岡展示場」へお越しください。
4LDK・2階建
延床面積:123.23m² [37.27坪]
【完全予約制】エネルギーも、暮らしも、効率よく心地よく@清水区西久保〈完成見学会〉
【完全予約制】365日、家族が心地よく暮らせる「性能美の家」@駿河区高松〈完成見学会〉
【モデルハウス】完全自由設計&高性能な家