静岡県中部エリア

工務店・新築・一戸建て・注文住宅・リノベ会社を検索できるくふうイエタテ

注文住宅、リフォーム住宅会社を探す

住宅会社 住宅イベント モデルハウス リフォーム・リノベーション 土地・建売 住まいのプロ 動画 家づくりガイド くふうイエタテカウンター
施工対応エリア
菊川~富士
電話番号
050-5851-0462
ジャンル
新築 、 リフォーム 、 土地相談
資料請求無料 検討会社に追加する

つながりも便利も楽しさも叶った! サッカー好き、共働き夫婦の家

お気入り
クリップ
F邸  物件エリア:焼津市  家族構成:夫+妻+長男
ホームプラザ大東【デザイン住宅、子育て、収納力】大きく開かれた窓から光と開放感が運ばれ、実際の広さ以上の大らかさで満たされるLDK。梁やカウンターには濃いブラウンを選び、落ち着きを添えた。床は掃除のしやすいタイプを選択。建具も溝や段差のない吊り戸が使われている。展示場を巡っている際に気に入ったハンモックを採用
ホームプラザ大東【デザイン住宅、子育て、収納力】「子どもが大きくなっても自然に顔を合わせるようにしたい」というご主人の希望で階段はリビングインスタイルに。宿題だけでなく、パソコンや仕事にも使えるよう、カウンターは長めにしてもらった。教科書などを置ける棚の下の壁は、マグネットがつくようになっている
ホームプラザ大東【デザイン住宅、子育て、収納力】天井の高さと色を変え、穏やかに役割が分割されたキッチン。玄関の出入りから階段の上り下り、庭で遊ぶ姿や和室でのお昼寝の様子まで、家事をしながら確認することができる。奥の造作棚は高さ可変で、下部にゴミ箱を置くことも想定されている
ホームプラザ大東【デザイン住宅、子育て、収納力】広さ、環境、価格のバランスに優れた土地を同社が探してくれた。1階の窓は電動シャッター付き。2階はどの部屋もベランダにつながり、布団を干しやすいつくり。光触媒の働きで汚れを分解し、色あせもしにくい外壁を採用。ライフサイクルコストを抑えることができる
ホームプラザ大東【デザイン住宅、子育て、収納力】帰宅を軽やかな気分にしてくれる明るい玄関。シューズクロークの両側に棚が備えられ、靴や雨具に加え、ベビーカー、三輪車、サッカーグッズなどをたっぷり収納。常に玄関のキレイを保つことができる。姿見や左手の飾り棚も取り付けてもらった
ホームプラザ大東【デザイン住宅、子育て、収納力】タイルでかわいさを添えた造作洗面台は、朝の準備で渋滞しないよう幅が広く取られた。流しも医療用の大きなサイズのものが選ばれている。左手には室内物干しとアイロン掛け用のカウンターが備えられた家事室。浴室から外の物干し場までが一直線で結ばれ、洗濯の効率を高めている
ホームプラザ大東【デザイン住宅、子育て、収納力】キッチン横に設けられた和室は、LDKとのつながりを考慮し、シンプルかつ爽やかにまとめられた。来客時の客間としてはもちろん、お子さまのお昼寝や遊びの場、3人目の子ども部屋、将来の夫婦の寝室など、家族構成の変化や成長を受け止めるスペースとして機能する
ホームプラザ大東【デザイン住宅、子育て、収納力】キッチン裏手に用意されたパントリー兼収納庫。食品や飲料のストックだけでなく、ティッシュ、トイレットペーパー、洗剤などの日用品、さらには掃除道具や書類関係までたっぷり収納でき、LDKのスッキリに貢献する
大きく開かれた窓から光と開放感が運ばれ、実際の広さ以上の大らかさで満たされるLDK。梁やカウンターには濃いブラウンを選び、落ち着きを添えた。床は掃除のしやすいタイプを選択。建具も溝や段差のない吊り戸が使われている。展示場を巡っている際に気に入ったハンモックを採用
「子どもが大きくなっても自然に顔を合わせるようにしたい」というご主人の希望で階段はリビングインスタイルに。宿題だけでなく、パソコンや仕事にも使えるよう、カウンターは長めにしてもらった。教科書などを置ける棚の下の壁は、マグネットがつくようになっている
天井の高さと色を変え、穏やかに役割が分割されたキッチン。玄関の出入りから階段の上り下り、庭で遊ぶ姿や和室でのお昼寝の様子まで、家事をしながら確認することができる。奥の造作棚は高さ可変で、下部にゴミ箱を置くことも想定されている
広さ、環境、価格のバランスに優れた土地を同社が探してくれた。1階の窓は電動シャッター付き。2階はどの部屋もベランダにつながり、布団を干しやすいつくり。光触媒の働きで汚れを分解し、色あせもしにくい外壁を採用。ライフサイクルコストを抑えることができる
帰宅を軽やかな気分にしてくれる明るい玄関。シューズクロークの両側に棚が備えられ、靴や雨具に加え、ベビーカー、三輪車、サッカーグッズなどをたっぷり収納。常に玄関のキレイを保つことができる。姿見や左手の飾り棚も取り付けてもらった
タイルでかわいさを添えた造作洗面台は、朝の準備で渋滞しないよう幅が広く取られた。流しも医療用の大きなサイズのものが選ばれている。左手には室内物干しとアイロン掛け用のカウンターが備えられた家事室。浴室から外の物干し場までが一直線で結ばれ、洗濯の効率を高めている
キッチン横に設けられた和室は、LDKとのつながりを考慮し、シンプルかつ爽やかにまとめられた。来客時の客間としてはもちろん、お子さまのお昼寝や遊びの場、3人目の子ども部屋、将来の夫婦の寝室など、家族構成の変化や成長を受け止めるスペースとして機能する
キッチン裏手に用意されたパントリー兼収納庫。食品や飲料のストックだけでなく、ティッシュ、トイレットペーパー、洗剤などの日用品、さらには掃除道具や書類関係までたっぷり収納でき、LDKのスッキリに貢献する

場所は閑静な住宅地。来客用に4台の車が停められる通路の先に、緑鮮やかな庭をもつF邸が現れた。「『ホームプラザ大東』さんでなければ、この土地、この家は実現しなかったと思います」。そう語るF夫妻の笑顔は、3つの満足によってもたらされている。1つ目は“デザイン”への満足。ナチュラルさと落ち着きが溶けあうLDK、クロスやタイルによるプライベート空間のアレンジなど、インスタで集めた「こうしたい」が形になった。2つ目は“暮らし心地”への満足。リビング階段と長いデスクがつながりを育み、家事効率を高める工夫や機能的な収納が共働きの奥さまの負担を軽減している。そして3つ目は“費用”への満足。土地からの一貫サポートにより予算がトータルでコントロールされたことで、優先度の高い希望を叶えることができた。庭の人工芝もその1つ。「家族みんなでボールを蹴り合えたら」。サッカーを通じて出会ったおふたりが、その夢を叶える日もそう遠くはなさそうだ。

資料・カタログをもらう無料 来店予約をする
お届けするカタログ・資料の内容
会社案内・リノベーションのメニュー紹介 ホームプラザ大東のこだわりをまとめた会社案内と、施工例をまとめたハンドアウト、リノベーションメニューを紹介する小冊子などを併せてお送りさせて頂きます。また、完成見学会などのイベントがある場合は、ご案内も同封します。リノベーションから新築まで、十人十色のライフスタイルにあわせた私たちの家づくりを知って頂けますと嬉しいです!
資料・カタログをもらう
送付資料

間取り

間取りタイプ
2階建
(シューズクローク、ハンモック、和室)
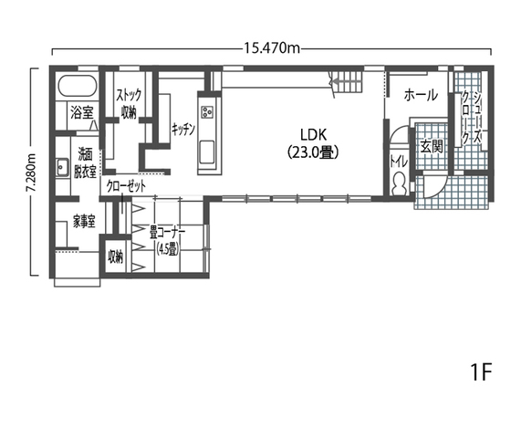
  • 1F
    ホームプラザ大東 つながりも便利も楽しさも叶った! サッカー好き、共働き夫婦の家 1F

    玄関を入ると通り抜け可能なシューズクロークには、ベビーカーやサッカーグッズまでたっぷり収納が可能。キッチン横に設けられた和室は、来客時の客間や、子供のお昼寝や遊びの場にも

  • 2F
    ホームプラザ大東 つながりも便利も楽しさも叶った! サッカー好き、共働き夫婦の家 2F

    寝室と子ども室には、大容量のウォークインクローゼットや収納スペースを用意。バルコニーを広くもうけ、洗濯物を干したり、子どもの遊び場としても多様に活用できる

スタッフ写真

スタッフからのコメント

サッカーを通じて知り合い、土地探しから家づくりまで携らせていただきました。近い将来、家族みんなでボールを蹴り合う様子を拝見するのを楽しみにしています!

代表取締役社長 福田 聡一朗さん

物件情報

本体価格 2500万〜2999万 ※金額は購入当時のものです
設計者名 ホームプラザ大東
施工社名 ホームプラザ大東
敷地面積 333.45㎡[100.74坪]
延床面積 139.11㎡[42.08坪](1階 81.15㎡[24.55坪]、2階 57.96㎡[17.53坪])
構造・工法 木造軸組工法
竣工 2020年8月
外部仕上げ(屋根) ガルバリウム鋼板 立平葺き
外部仕上げ(外壁) KMEW 光セラ
内部仕上げ(床) Panasonic
内部仕上げ(内壁) クロス
内部仕上げ(天井) クロス
内部仕上げ(断熱材) ウレタン吹付
使用メーカー(バス) TOTO
使用メーカー(トイレ) TOTO
使用メーカー(キッチン) クリナップ
使用メーカー(照明) ODELIC
使用メーカー(窓・サッシ) YKK
資料・カタログをもらう無料 来店予約をする
お届けするカタログ・資料の内容
会社案内・リノベーションのメニュー紹介 ホームプラザ大東のこだわりをまとめた会社案内と、施工例をまとめたハンドアウト、リノベーションメニューを紹介する小冊子などを併せてお送りさせて頂きます。また、完成見学会などのイベントがある場合は、ご案内も同封します。リノベーションから新築まで、十人十色のライフスタイルにあわせた私たちの家づくりを知って頂けますと嬉しいです!
資料・カタログをもらう
送付資料

その他の新築施工例 ({{max}}件)

ホームプラザ大東

私らしくおしゃれに暮らす 遊び心のある家づくり
  • 本社所在地 静岡県藤枝市大東町905-1
  • 施工対応エリア 菊川~富士
  • 電話番号 050-5851-0462
  • ジャンル 新築、 リフォーム、 土地相談

お客さまの声

お客さまの写真

『ホームプラザ大東』さんに依頼した1番の理由は、一緒にボールを蹴る仲間、先輩としての信頼です。希望に合う土地が手に入るよう動いてくれたこと、そして要望を少しでも叶えようとしてくれる姿勢に安心感を持ちました。私たちは妥協して後悔したくなかったので、「ここは削ってもいい」「これは絶対叶えたい」というジャッジを大切にしました。予算面で難しい場面では、「こういう方法もあるよ」というプロの提案がありがたかったです。

新築したきっかけ

結婚した当初から、いつかはと思っていました。フットサルを通じて福田社長と知り合い、土地や家について会話を交わすうちに、思いが具体的になっていきました。

ロード中