静岡県東部エリア

工務店・新築・一戸建て・注文住宅・リノベ会社を検索できるくふうイエタテ

注文住宅、リフォーム住宅会社を探す

住宅会社 住宅イベント モデルハウス リフォーム・リノベーション 土地・建売 住まいのプロ 動画 家づくりガイド くふうイエタテカウンター
施工対応エリア
静岡県東部(会社より車で1時間以内)
電話番号
055-981-4476
ジャンル
新築 、 リフォーム 、 土地相談
資料請求無料 検討会社に追加する
3LDK | 2階建

おしゃれアロー

家族構成:夫・妻・長男・長女

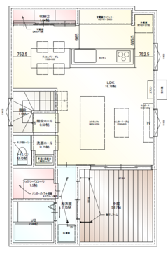
1階

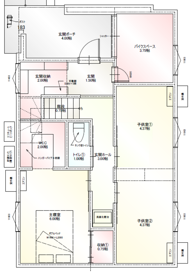
2階

Touch House(タッチハウス) おしゃれアロー 1階
Touch House(タッチハウス) おしゃれアロー 2階

間取り提案

施主からの希望・要望

  • 家事が効率的にできる
  • プライバシーを確保できる
  • 防犯対策

スタッフからのコメント

洗濯ものが3歩で干せて6歩でしまえる楽々動線の家。プライバシー性と日当たりを手に入れる生活を手に入れてください。

DATA

階数 2階建 延床面積 104.45m² [31.59坪] 敷地面積 113.4m² [34.3坪]
間取り 3LDK (総二階建のデザイン×コスパ最強の丁度良い注文住宅です。)
1階 ---
2階 ---
施工面積 114.52m² [34.64坪]
家族構成 夫・妻・長男・長女 設計者名 佐野貴章
##パティエ ##デザイン ##総二階 ##中庭 ##家事導線

Touch House(タッチハウス)に「間取り」や「家づくりの相談」ができます。 この会社に来店予約をする

似ている間取りはこちら