静岡県東部エリア

工務店・新築・一戸建て・注文住宅・リノベ会社を検索できるくふうイエタテ

注文住宅、リフォーム住宅会社を探す

住宅会社 住宅イベント モデルハウス リフォーム・リノベーション 土地・建売 住まいのプロ 動画 家づくりガイド くふうイエタテカウンター
施工対応エリア
静岡県東部(会社より車で1時間以内)
電話番号
055-981-4476
ジャンル
新築 、 リフォーム 、 土地相談
資料請求無料 検討会社に追加する
3LDK | 2階建

シンプルスクエア

家族構成:夫・妻・長男・長女

1階 

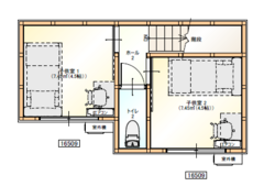
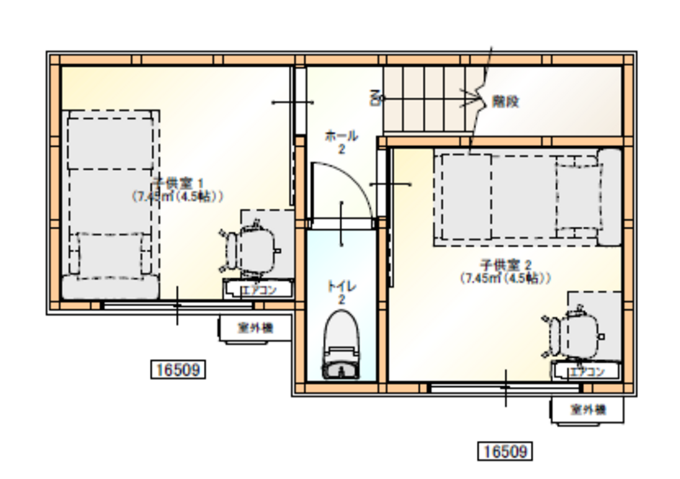
2階

Touch House(タッチハウス) シンプルスクエア 1階 
Touch House(タッチハウス) シンプルスクエア 2階

間取り提案

施主からの希望・要望

  • ゆったりとくつろげるリビング
  • 収納スペースが豊富で整理整頓しやすい
  • プライバシーを確保できる

スタッフからのコメント

四方を囲まれた中庭だから実現できる防犯性とプライバシー性と日当たりを実現できる間取 風を感じる休日のひと時を想像してください。

DATA

階数 2階建 延床面積 91.08m² [27.55坪] 敷地面積 156.7m² [47.4坪]
間取り 3LDK (一部二階建ての家族にちょうど良いコンパクトなお家)
1階  ---
2階 ---
施工面積 101.53m² [30.71坪]
家族構成 夫・妻・長男・長女 設計者名 佐野貴章
##パティエ ##中庭 ##一部二階建て

Touch House(タッチハウス)に「間取り」や「家づくりの相談」ができます。 この会社に来店予約をする

似ている間取りはこちら