山梨県エリア

工務店・新築・一戸建て・注文住宅・リノベ会社を検索できるくふうイエタテ

注文住宅、リフォーム住宅会社を探す

住宅会社 住宅イベント モデルハウス 家づくりガイド くふうイエタテカウンター

山梨県の間取り検索 結果一覧

7 件の結果がヒットしました。

施工価格

広さ

間取りタイプ

階数

家族構成

こだわりポイント

テイスト

建てられた年代

施主の趣味

会社施工エリア

  • 10件表示
  • 25件表示
  • 50件表示
STK HOUSING 家族構成:
コンパクトで快適な暮らしの平屋

スタイリッシュなラップサイディングとレッドシダーを合わせた外観。コンパクトで暮らしやすい、ムダのない動線の平屋。自然を感じられるタイルデッキや階段のない安心感が、毎日を心地よく包みます。「未来パ... 続きを見る

間取り

3LDK/平屋

延床面積

86.12m² [26.05坪]

STK HOUSING 家族構成:
生活感を感じさせない上質な住まい

収納に徹底的にこだわり、白を基調に素材や風合いで奥行きを演出したお家。生活感を感じさせない美しさを実現するため、収納の配置やサイズを現場で何度も打ち合わせをし、細部までこだわりました。シンプルな... 続きを見る

間取り

3LDK/2階建(3S)

延床面積

134.56m² [40.7坪]

STK HOUSING 家族構成:
暮らしやすいがデザインされた家族想いのママイエ

グレーを基調としたシンプルモダンなデザインが特徴のスタイリッシュな住まいです。間取りは家事動線に優れ、子ども部屋やリモートワーク用の部屋など家族のライフスタイルに合ったSTK HOUSINGオリ... 続きを見る

間取り

4LDK/2階建

延床面積

115.92m² [35.06坪]

STK HOUSING 家族構成:
毎日をアクティブに楽しむ尽くす、屋上のある家

アウトドアテイストなグリーンのガルバリウムの外観が魅力の住まい。広々とした玄関からリビング・キッチンへとつながる快適な回遊動線を実現。小上がりのタタミルームには足を伸ばせるワークスペースを設け、... 続きを見る

間取り

4LDK/3階建(屋上)

延床面積

125.04m² [37.82坪]

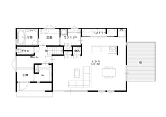
STK HOUSING 家族構成:
暮らしに寄り添う動線でストレスフリーな住まい

玄関を入ると右手に広々としたシューズクローク、左手にはキッチン直結のパントリーがあり、正面にはリビング。回遊できる動線でストレスフリーな設計です。奥には洗面・ランドリースペースがあり、ランドリー... 続きを見る

間取り

2LDK/2階建

延床面積

121.72m² [36.82坪]

STK HOUSING 家族構成:
光と風が暮らしに寄り添う住まい

アメリカ西海岸のリゾートラグナビーチを彷彿とさせるSTKオリジナルシリーズの「LAGUNA」自然に溶け込むナチュラルさや、遊びを取り入れたカジュアルなデザインが魅力です。リビングには開放的な窓か... 続きを見る

間取り

3LDK/2階建

延床面積

95.47m² [28.87坪]

STK HOUSING 家族構成:
無垢材と磁器タイルが彩る上質な大人の邸宅

無垢材×磁器タイル床の組み合わせにより、モダン的でありながら木の温もりも感じられるワンランク上のおとなの暮らし。高さ2400㎜のハイドアや高さ2500を超えるリビングの窓の採用、さらに天窓の設置... 続きを見る

間取り

3LDK/2階建(2S)

延床面積

140.05m² [42.36坪]

7 件の結果がヒットしました。