山梨県エリア
他のエリア
工務店・新築・一戸建て・注文住宅・リノベ会社を検索できるくふうイエタテ
3LDK間取り
外観イメージ
スマート家事室®
施主からの希望・要望
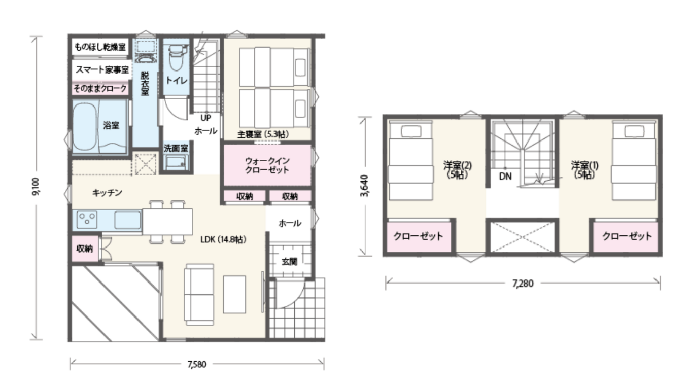
3LDKを確保しながら、1階での生活をベースにしたシンプルな間取り。 1フロアに日々の暮らしを凝縮することは、安心感につながるだけではなく、掃除や洗濯といった家事の負担を大きく軽減。これは、数十年先にはとても重要なことです。 リビング+主寝室+水廻りを1階に配置。平屋のように暮らせるから、掃除や洗濯などの家事が格段に楽になって、家族とも家事を共有しやすくなります。 さらに「スマート家事室」があることで、洗濯の家事負担を軽減。将来を見据えた動線を考えておくことは安心感にも繋がります。 2階のお部屋は、ライフスタイルに合わせて子ども部屋や客間、趣味・収納部屋など使い方を変えられたりと、 「長いスパンでの暮らしやすさ」を大切に考えています。 *----------------------* ●山梨県注文住宅着工棟数 12年間連続 第1位🥇 ●耐震等級3以上の超耐震バランス構造®︎ ●トップレベルの高気密/数値で見せてお約束 電気代が月々8,568円もお得なまほうびん住宅💡 ❁2023年顧客アンケートより❁ 「当社を知人に紹介しますか」…100% 「大工の仕事ぶりについての満足度」…97.8% おかげさまで、近年の受注の5割がご紹介です🙇 山梨県で家づくりを始めようと思ったら… グローバルハウスへお気軽にご相談ください😊 *----------------------*
| 階数 1.5階建 | 延床面積 82.39m² [24.92坪] | 敷地面積 --- |
| 間取り 3LDK |
3LDK間取り
---
外観イメージ
---
スマート家事室®
---
|
施工面積 --- |
| 家族構成 --- | 設計者名 --- |
3LDK / 1.5階建
【1.5階/3LDK/ 24.42坪】「スマート家事室」つきの家事短の家
3LDKを確保しながら、1階での生活をベースにしたシンプルな間取り。 1フロアに日々の暮らしを凝縮することは、安心感につながるだけではなく、掃除や洗濯といった家事の負担を大きく軽減。これは、数十年先にはとても重要なことです。 リビング+主寝室+水廻りを1階に配置。平屋のように暮らせるから、掃除や洗濯などの家事が格段に楽になって、家族とも家事を共有しやすくなります。 さらに「スマート家事室」があることで、洗濯の家事負担を軽減。将来を見据えた動線を考えておくことは安心感にも繋がります。 2階のお部屋は、ライフスタイルに合わせて子ども部屋や客間、趣味・収納部屋など使い方を変えられたりと、 「長いスパンでの暮らしやすさ」を大切に考えています。 *----------------------* ●山梨県注文住宅着工棟数 12年間連続 第1位🥇 ●耐震等級3以上の超耐震バランス構造®︎ ●トップレベルの高気密/数値で見せてお約束 電気代が月々8,568円もお得なまほうびん住宅💡 ❁2023年顧客アンケートより❁ 「当社を知人に紹介しますか」…100% 「大工の仕事ぶりについての満足度」…97.8% おかげさまで、近年の受注の5割がご紹介です🙇 山梨県で家づくりを始めようと思ったら… グローバルハウスへお気軽にご相談ください😊 *----------------------*
3LDK・1.5階建
延床面積:79.08m² [23.92坪]
3LDK / 1.5階建
【1.5階/3LDK/26坪】スマート家事室付き1.5階
26.30坪ながらも16.3帖のLDKや各居室の収納もしっかりあります。 グローバルハウスが特許を取得した「スマート家事室®」が標準装備。 *----------------------* ●山梨県注文住宅着工棟数 12年間連続 第1位🥇 ●耐震等級3以上の超耐震バランス構造®︎ ●トップレベルの高気密/数値で見せてお約束 電気代が月々8,568円もお得なまほうびん住宅💡 ❁2023年顧客アンケートより❁ 「当社を知人に紹介しますか」…100% 「大工の仕事ぶりについての満足度」…97.8% おかげさまで、近年の受注の5割がご紹介です🙇 山梨県で家づくりを始めようと思ったら… グローバルハウスへお気軽にご相談ください😊 *----------------------*
3LDK・1.5階建
【平屋生活】1.5階の暮らし方無料相談会
平屋×二階建て×小屋裏の家【3棟同時見学会】
昭和町/『スマート家事室』のある家を見に行こう 【見学・相談会】