閉じる

モデスト

スタイリッシュなモダン空間で過ごす特別な暮らし

N邸 | 物件エリア:前橋市 | 家族構成:夫婦+子ども

モデスト|
本体価格(総施工費)

3,000~3,499万円

※金額は購入当時のものです

この住宅はスタイリッシュさが際立つモダンデザインを採用している。玄関アプローチは、シンプルなタイル仕上げと直線的なフォルムで訪れる人を迎える。玄関ホールは木目調の収納と石材を用いた壁が高級感を演出し、自然光が注ぎ込む明るい空間だ。リビングは自然光をたっぷりと取り込み、モダンな家具とウッドフローリングで落ち着きを感じさせる。LDKは広く明るく、木目調の天井とモダンなキッチンが家族の団らんを支える。また、バスルームはダークトーンのタイルと光沢のあるパネルで構成され、リラックスした時間を約束する。

シンプルモダン スタイリッシュ ホテルライク
  • 直線的フォルムとタイル仕上げの玄関

  • 自然光と調和するモダンなリビング

  • 高級感あふれるダークトーンのバスルーム

間取り 4LDK / 2階建

構造・工法 木造軸組工法

敷地面積 220.19m² [66.6坪]

延床面積 137.45m² [41.57坪]

施工面積 163.14m² [49.34坪]

オーダー 完全自由設計(フルオーダー)

竣工 2023年8月

施工期間 5ヶ月

施工社名 株式会社モデスト

施工例のご紹介

モダンなデザインの玄関アプローチ。シンプルなタイル仕上げと直線的なフォルムがスタイリッシュさを演出している。

玄関

モダンなデザインの玄関アプローチ。シンプルなタイル仕上げと直線的なフォルムがスタイリッシュさを演出している。

高級感のある玄関ホール。木目調の収納と石材を使った壁がアクセントとなり、モダンな印象を与える。自然光が差し込む明るい空間。

玄関ホール

高級感のある玄関ホール。木目調の収納と石材を使った壁がアクセントとなり、モダンな印象を与える。自然光が差し込む明るい空間。

明るい自然光が差し込むリビング。モダンな家具とウッドフローリングが調和し、落ち着いた雰囲気を演出している。

リビング

明るい自然光が差し込むリビング。モダンな家具とウッドフローリングが調和し、落ち着いた雰囲気を演出している。

モダンなデザインのLDK。木目調の天井が温かみを演出し、大きな窓からはたっぷりと自然光が入り込む明るい空間。

LDK

モダンなデザインのLDK。木目調の天井が温かみを演出し、大きな窓からはたっぷりと自然光が入り込む明るい空間。

広々としたLDK空間。照明が部屋全体を柔らかく照らし、木目調の天井とフローリングが暖かさを演出している。モダンで洗練されたデザインのキッチンとリビングエリアが一体となり、家族の団らんに最適。

LDK

広々としたLDK空間。照明が部屋全体を柔らかく照らし、木目調の天井とフローリングが暖かさを演出している。モダンで洗練されたデザインのキッチンとリビングエリアが一体となり、家族の団らんに最適。

広々とした洗面スペースで、明るい照明と大きな鏡が使いやすさを演出している。清潔感溢れる木目調の収納が、空間に温かみを加えている。

洗面スペース

広々とした洗面スペースで、明るい照明と大きな鏡が使いやすさを演出している。清潔感溢れる木目調の収納が、空間に温かみを加えている。

モダンなデザインのバスルーム。ダークトーンのタイルと光沢のあるパネルが高級感を演出し、リラックスできる空間となっている。

バスルーム

モダンなデザインのバスルーム。ダークトーンのタイルと光沢のあるパネルが高級感を演出し、リラックスできる空間となっている。

スーツが整然と吊るされたウォークインクローゼット。広々とした空間で、衣類がしっかりと収納できる設計。

ウォークインクローゼット

スーツが整然と吊るされたウォークインクローゼット。広々とした空間で、衣類がしっかりと収納できる設計。

コンパクトながら機能的なランドリールーム。洗濯機が効率的に配置され、使いやすさが考慮された設計である。

ランドリールーム

コンパクトながら機能的なランドリールーム。洗濯機が効率的に配置され、使いやすさが考慮された設計である。

明るい採光が特徴の廊下。手すりもモダンなデザインで、スタイリッシュな空間を演出している。

廊下

明るい採光が特徴の廊下。手すりもモダンなデザインで、スタイリッシュな空間を演出している。

明るい寝室。黄色のカーテンがアクセントとなり、シンプルながらも温かみのある空間が広がる。充分な収納スペースも確保されている。

寝室

明るい寝室。黄色のカーテンがアクセントとなり、シンプルながらも温かみのある空間が広がる。充分な収納スペースも確保されている。

大きな窓から自然光が差し込む開放的なリビング。高い天井と広々としたスペースが心地よい空間を作り出している。

リビング

大きな窓から自然光が差し込む開放的なリビング。高い天井と広々としたスペースが心地よい空間を作り出している。

広々とした開放感のあるLDK空間。木目調の床と天井が温かみを加え、モダンなインテリアデザインが施されている。大きな窓からは自然光がたっぷり注ぐ。

LDK

広々とした開放感のあるLDK空間。木目調の床と天井が温かみを加え、モダンなインテリアデザインが施されている。大きな窓からは自然光がたっぷり注ぐ。

開放的な吹き抜けが特徴のLDK。リビングには大画面テレビが配置され、家族がくつろげる空間を演出している。明るい自然光が差し込み、温かみのある床材が雰囲気を引き立てている。

LDK

開放的な吹き抜けが特徴のLDK。リビングには大画面テレビが配置され、家族がくつろげる空間を演出している。明るい自然光が差し込み、温かみのある床材が雰囲気を引き立てている。

モダンなデザインのLDK。広々とした空間にダイニングセットが配置され、床の異素材がアクセントとなっている。優雅な生活を演出するインテリア。

LDK

モダンなデザインのLDK。広々とした空間にダイニングセットが配置され、床の異素材がアクセントとなっている。優雅な生活を演出するインテリア。

モダンなデザインの住宅外観。シンプルな形状と美しいライトアップが特徴的で、夜の街並みに映える。

外観

モダンなデザインの住宅外観。シンプルな形状と美しいライトアップが特徴的で、夜の街並みに映える。

大きな窓からの自然光が魅力的なリビングスペース。シンプルなデザインと落ち着いたカラーの家具が、リラックスできる空間を演出している。

リビング

大きな窓からの自然光が魅力的なリビングスペース。シンプルなデザインと落ち着いたカラーの家具が、リラックスできる空間を演出している。

コンパクトな空間にスリムなデザインのトイレを設置。壁面収納と自然光が心地よい明るさをもたらし、清潔感あふれる空間となっている。

トイレ

コンパクトな空間にスリムなデザインのトイレを設置。壁面収納と自然光が心地よい明るさをもたらし、清潔感あふれる空間となっている。

モダンなデザインの二階建て住宅の外観。シンプルな直線が際立ち、広いウッドデッキと大きな窓が生活空間に明るさと開放感をもたらす。

外観

モダンなデザインの二階建て住宅の外観。シンプルな直線が際立ち、広いウッドデッキと大きな窓が生活空間に明るさと開放感をもたらす。

シンプルでモダンなデザインの住宅外観。直線的なラインと白を基調としたカラーが、洗練された印象を与えている。

外観

シンプルでモダンなデザインの住宅外観。直線的なラインと白を基調としたカラーが、洗練された印象を与えている。

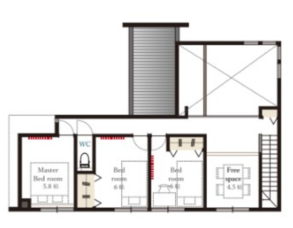
間取り

4LDK / 2階建

1階

1階

2階

2階

モデストの他の施工例

会社概要

会社名
モデスト
施工対応エリア
群馬県全域
参考坪単価
50万円〜80万円
会社所在地
群馬県太田市大原町2256-18
電話番号
0120-302-082
このページを共有する
LINEで送る

閲覧履歴

閲覧した工務店はまだありません

来場キャンペーン

AmazonGiftCard
住宅イベント
住宅会社
モデルハウス

いずれかに来場・来店すると

最大5,000円もらえます

プレゼント方法
STEP1 1回の来場・来店で1,000
STEP2 2回の来場・来店で2,000
STEP3 3回の来場・来店で5,000

くふうイエタテ会員登録(無料)のうえ、Webイエタテでご予約し、住宅イベントやモデルハウス、住宅会社に来場・来店するとAmazonギフト券最大5,000円分(Eメールタイプ)を 先着200名様にプレゼント!※2026年2月28日までのご来場が対象となります

応募条件

このキャンペーンは注文住宅の購入やリノベーションの施工を検討している方を対象にしております。対象外の方のご応募はご遠慮ください。当社が不正な応募と判断した場合、 住宅会社への迷惑となる行為が確認された場合にはご応募が無効となり、以降のキャンペーン参加をお断りさせていただく場合がございます。あらかじめご了承ください。

本キャンペーンはWEBくふうイエタテ会員(無料)限定のキャンペーンとなります。必ずログインしてからご予約ください。非会員や電話予約につきましては対象外となります。

しずおかオンラインおよび、くふう住まい/くふうイエタテ主催のキャンペーンに過去10回以上ご参加されている方は応募対象外とさせていただきます。

1世帯につき1IDのみが応募対象となります。また、参加回数は同一IDからの参加についてのみカウントされます。 同一世帯の方が複数IDでご予約された場合も、応募条件を満たした1IDのみが応募有効となり、それ以外のIDでのご予約・ご参加については対象外となります。 なお、同一世帯の複数のIDから予約されたイベント・モデルハウス・住宅会社につきましては合算はできかねますのでご注意ください。4回目以降の予約にはプレゼントはつきません。

ご家族複数名での見学や同じメールアドレスの利用、同じご住所にお住まい、もしくは同居をご予定している場合、本企画では、それぞれを同一世帯1組様とみなします。 また、その他入力いただいた情報により、編集部が同一世帯とみなす場合がございます。

予約後、キャンセルされた場合は無効となります。イベントへの来場が確認できなかった場合や、スタッフから十分な説明を受けず途中退場した場合など、 イベントへご参加いただいたとの判断ができかねる場合、 利用者アンケートの回答が期限内に無い場合も、無効とさせていただきます。

ギフト券はキャンペーン終了後おおよそ1ヶ月以内に順次発送の予定です。送付状況など、発送に関する個別のお問合せにつきましてはお答えできかねますので、 あらかじめご了承ください。また、ギフト券はマイページのプロフィール欄にご登録されているメールアドレスに届きます。 入力されたメールアドレスが不明な場合や、何らかの理由で送付不可能である場合、 送付が取り消され、その時点で応募自体が無効となりますのでご注意ください。

メール送付後におきまして、何らかの理由でメールが受信されなかった場合、また、受信後のメール削除や紛失などがあった場合は、 いかなる理由によりましても弊社では責任を負いかねます。ご了承ください。

記載の【キャンペーン対象期間】とは【予約のお申し込みをされた日】を指します。対象期間外に予約のお申し込みをされた場合には、キャンペーン対象外となります。 また、ご来場の有効期間は2026年3月7日までとなりますので、2026年3月8日以降に開催のイベントやモデルハウス見学への予約もキャンペーン対象外となりますので、ご注意ください。

注意事項

※本企画は、日本国内在住で契約者本人が居住するための住宅の購入を検討している一般の方を対象としております。また、契約者が法人の場合は対象外となります。

※[不動産業における景品類の提供の制限に関する公正競争規約]により、各住宅会社で本企画とは別に行っているプレゼント企画の賞品と本キャンペーンの賞品の両方は受け取れない場合がございます。 詳しくはくふうイエタテ編集部にお問合せください。

※携帯電話(スマートフォン以外)・PHSからの応募はできません。またスマートフォンの場合も、一部対応できない機種があります。 応募可能なインターネット接続環境や端末は、お客さまご自身でご用意ください。また、通信料はお客さま負担となります。

※ご家族複数名での見学や同じメールアドレスの利用、同じご住所にお住まい、もしくは同居を予定している場合、本企画では、それぞれを同一世帯1組様とみなします。 なお、入力いただいた情報により、編集部が同一世帯とみなす場合がございます。また、本人以外の方のメールアドレスでの応募、代行での参加手続きは無効といたします。

※未成年もしくは学生の方のみでのモデルハウス見学もしくはイベントへの参加は、キャンペーンの対象外となりますのでご注意ください。

※本企画は、当社の都合により、キャンペーン期間に関係なく、事情によりキャンペーンを中止する場合がございます。 あらかじめご了承ください。当社は、本企画の変更・終了等により生じたいかなる損害等についても、一切責任を負うものではありません。

※ご入力いただきましたメールアドレスに不備がある場合、当選を無効とさせていただきます。